こだわり条件で再検索

キーワード
坪数
(面積)
賃料+共益費
賃料+共益費
(坪当たり)
最寄駅
徒歩
築年数




用途





快適


安全


[]を含むの賃貸オフィス・賃貸事務所 6668 棟 ( 16310 区画)

物件No 0063575
住所 埼玉県さいたま市南区文蔵1-17-10
最寄駅
竣工年 1991年8月
規模 地上4階
階数 坪数 賃料+共益費
(坪単価)
敷金・保証金 用途 入居日 詳細 お気に入り
追加
2階
申込有
107.96坪 1,295,520円(税別)
(12,000円/坪)
4ヶ月
事務所
相談 お問合せ お気に入り追加

担当者のコメント

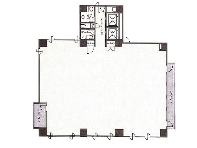
一ツ木通り沿い角地の物件です。室内は無柱でレイアウトがしやすいです。南浦和で中々出てこない100坪クラスのオフィスです。

物件No 0057146
住所 千葉県八街市文違301−252
最寄駅
竣工年 2007年1月
規模 地上1階
※レンタルオフィスの募集状況は流動的なため下記は仮表示です。最新の募集状況はお問合せ下さい。
※また、レンタルオフィスの面積は仮の数値です。実際の面積とは異なりますのでご注意ください
階数 坪数 賃料+共益費
(坪単価)
敷金・保証金 用途 入居日 詳細 お気に入り
追加
1階
A棟
32坪 相談 相談
事務所
店舗
倉庫・工場
レンタルオフィス
相談 お問合せ お気に入り追加
1階
B棟
64坪 相談 相談
事務所
店舗
倉庫・工場
レンタルオフィス
相談 お問合せ お気に入り追加

担当者のコメント

飲食店や物流倉庫におすすめ物件。東関道自動車道(酒々井IC)まで8.7km。駐車場も広く、酒々井プレミアムアウトレットなど商業施設も周辺に充実しています。

階数 坪数 賃料+共益費
(坪単価)
敷金・保証金 用途 入居日 詳細 お気に入り
追加
2階 30.04坪 相談 相談
事務所
即日 お問合せ お気に入り追加
2階
統合案
113.96坪 相談 相談
事務所
即日 お問合せ お気に入り追加
2階 83.92坪 相談 相談
事務所
即日 お問合せ お気に入り追加

担当者のコメント

明治安田生命十三ビルは、十三駅から徒歩5分の大型オフィスビルです。共用部を中心に置いたコの字型の貸室形状です。お部屋を分割すると綺麗な四角形になるため、分割して使うのに適しています。

物件No 0058932
住所 千葉県柏市新十余二9-1
最寄駅
竣工年 2023年12月
規模 地上4階
※当物件は特殊物件のため、最新の募集状況に関しましてはお問合せ頂けますようお願い致します。
階数 坪数 賃料+共益費
(坪単価)
敷金・保証金 用途 入居日 詳細 お気に入り
追加
1階 1564.49坪 相談 相談
事務所
倉庫・工場
その他
即日 お問合せ お気に入り追加
1階
一棟
6268.36坪 相談 相談
事務所
倉庫・工場
その他
即日 お問合せ お気に入り追加
2階 1567.95坪 相談 相談
事務所
倉庫・工場
その他
即日 お問合せ お気に入り追加
3階 1567.95坪 相談 相談
事務所
倉庫・工場
その他
即日 お問合せ お気に入り追加
4階 1567.95坪 相談 相談
事務所
倉庫・工場
その他
即日 お問合せ お気に入り追加

担当者のコメント

松戸・柏エリアにあるヒューリックロジスティクス柏は、2023年12月に建てられた地上4階の建物です。新耐震構造かつ機械警備もあり安心です。また、24時間の使用可能となっています。事務所、倉庫・工場、その他をお探しの方にはぴったりの物件です。
最寄り駅はつくばエクスプレス柏たなか駅です。エレベータ2基を完備しています。

物件No 0017167
住所 千葉県千葉市中央区新千葉1-4-2
最寄駅
竣工年 2013年10月
規模 地上11階
階数 坪数 賃料+共益費
(坪単価)
敷金・保証金 用途 入居日 詳細 お気に入り
追加
2階
2-3
23.99坪 相談 12ヶ月
店舗
即日 お問合せ お気に入り追加
3階
3-1
17.47坪 相談 12ヶ月
店舗
即日 お問合せ お気に入り追加

担当者のコメント

千葉駅直結の物件。利便性重視の方に最適。
千葉駅徒歩1分。デッキでつながっており、雨の日でも快適にアクセスできます。
2013年竣工のオフィスビルで、ビルの正面にはバスロータリーがあります。低層階は飲食店などの店舗が入居しており便利です。エレベーターは2基、個別空調でトイレは男女別で室外にあります。

物件No 0017168
住所 千葉県千葉市中央区新千葉1-4-3
最寄駅
竣工年 2013年9月
規模 地上11階 地下1階
階数 坪数 賃料+共益費
(坪単価)
敷金・保証金 用途 入居日 詳細 お気に入り
追加
10階 65坪 相談 12ヶ月
事務所
即日 お問合せ お気に入り追加
11階 185.31坪 相談 12ヶ月
事務所
即日 お問合せ お気に入り追加

担当者のコメント

千葉駅直結の好立地物件です。周辺のビルにも劣らない設備やスペックが備えられています。立地・グレードをお求めの方におすすめです。

物件No 0035440
住所 千葉県千葉市中央区新千葉1-7-3
最寄駅
竣工年 2013年10月
規模 地上6階
階数 坪数 賃料+共益費
(坪単価)
敷金・保証金 用途 入居日 詳細 お気に入り
追加
4階 43.3坪 相談 8ヶ月
事務所
2026年4月 お問合せ お気に入り追加

担当者のコメント

千葉駅エリアにあるCSB新千葉ビルは、2013年10月に建てられた地上6階の建物です。新耐震構造かつ機械警備もあり安心です。また、24時間の使用可能となっています。事務所をお探しの方にはぴったりの物件です。
最寄り駅はJR中央・総武線千葉駅、京成千葉線京成千葉駅です。最短の駅からは徒歩3分と駅から近いことも魅力です。OAフロア、個別空調、エレベータ2基を完備しています。また駐車場も完備しています。

物件No 0017170
住所 千葉県千葉市中央区新千葉2-1-5
最寄駅
竣工年 1969年9月
規模 地上4階
階数 坪数 賃料+共益費
(坪単価)
敷金・保証金 用途 入居日 詳細 お気に入り
追加
3階
303
24.65坪 175,550円(税別)
(7,122円/坪)
4ヶ月
事務所
店舗
即日 お問合せ お気に入り追加
4階
402
9.27坪 67,890円(税別)
(7,324円/坪)
4ヶ月
事務所
店舗
2026年1月 お問合せ お気に入り追加
4階
403
24坪 171,000円(税別)
(7,125円/坪)
4ヶ月
事務所
店舗
即日 お問合せ お気に入り追加

担当者のコメント

小川第1ビルは、1969年9月に建てられた地上4階の建物です。旧耐震構造です。また、24時間の使用可能となっています。事務所、店舗をお探しの方にはぴったりの物件です。
最寄り駅はJR総武本線千葉駅です。最短の駅からは徒歩1分と駅から近いことも魅力です。個別空調を完備しています。

物件No 0017169
住所 千葉県千葉市中央区新千葉2-12-1
最寄駅
竣工年 1988年1月
規模 地上8階
階数 坪数 賃料+共益費
(坪単価)
敷金・保証金 用途 入居日 詳細 お気に入り
追加
7階 56坪 728,000円(税別)
(13,000円/坪)
8ヶ月
事務所
2025年12月 お問合せ お気に入り追加

担当者のコメント

千葉駅すぐの物件です。設備が整っていて快適にご利用できます。間取りも整形でレイアウトがしやすいです。

物件No 0017173
住所 千葉県千葉市中央区新千葉2-7-2
最寄駅
竣工年 1990年9月
規模 地上10階 地下1階
階数 坪数 賃料+共益費
(坪単価)
敷金・保証金 用途 入居日 詳細 お気に入り
追加
1階
101~104
90.57坪 1,539,690円(税別)
(17,000円/坪)
10ヶ月
事務所
店舗
即日 お問合せ お気に入り追加
3階
301
24.68坪 320,840円(税別)
(13,000円/坪)
10ヶ月
事務所
即日 お問合せ お気に入り追加
4階
403
23.23坪 301,990円(税別)
(13,000円/坪)
10ヶ月
事務所
即日 お問合せ お気に入り追加

担当者のコメント

千葉エリアの新耐震基準の大型オフィスビル
新千葉駅徒歩4分、千葉駅徒歩6分の貸事務所
新耐震基準の大型オフィスビルです。新千葉駅、千葉駅からほど近い距離にございますが近隣は比較的落ち着いた環境になっております。エントランスやトイレは大理石調になっており、高級感も感じられるビルです。

Copyright(C) Quick Consulting Co.,LTD. All right reserved.