こだわり条件で再検索

キーワード
坪数
(面積)
賃料+共益費
賃料+共益費
(坪当たり)
最寄駅
徒歩
築年数




用途





快適


安全


[]を含むの賃貸オフィス・賃貸事務所 6580 棟 ( 15984 区画)

物件No 0006425
住所 東京都港区麻布台1-7-3
最寄駅
竣工年 1992年10月
規模 地上9階
階数 坪数 賃料+共益費
(坪単価)
敷金・保証金 用途 入居日 詳細 お気に入り
追加
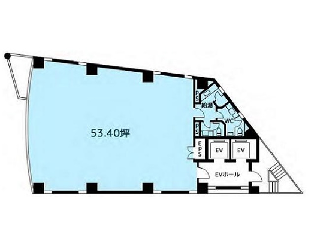
3階 53.69坪 相談 5ヶ月
事務所
2026年5月 お問合せ お気に入り追加

担当者のコメント

赤坂・青山・六本木エリアにあるVORT神谷町Ⅱは、1992年10月に建てられた地上9階の建物です。新耐震構造かつ機械警備もあり安心です。また、24時間の使用可能となっています。事務所をお探しの方にはぴったりの物件です。
最寄り駅は東京メトロ日比谷線神谷町駅、都営大江戸線赤羽橋駅です。最短の駅からは徒歩3分と駅から近いことも魅力です。OAフロア、個別空調、エレベータ2基を完備しています。また駐車場も完備しています。

物件No 0000331
住所 埼玉県さいたま市大宮区土手町1-38-1
最寄駅
竣工年 1992年10月
規模 地上10階
階数 坪数 賃料+共益費
(坪単価)
敷金・保証金 用途 入居日 詳細 お気に入り
追加
5階 9.01坪 相談 12ヶ月
事務所
即日 お問合せ お気に入り追加

担当者のコメント

アソルティ大宮ル・ノードは1992年竣工のオフィスビルでございます。
充実した設備と駐車場が備わっております。
北大宮からは徒歩4分。コストパフォーマンスも良好です。

物件No 0031172
住所 大阪府豊中市新千里東町1-5-3
最寄駅
竣工年 1992年10月
規模 地上22階 地下2階
階数 坪数 賃料+共益費
(坪単価)
敷金・保証金 用途 入居日 詳細 お気に入り
追加
2階 63.17坪 相談 相談
事務所
店舗
相談 お問合せ お気に入り追加
4階
館内先行有
43.94坪 相談 相談
事務所
相談 お問合せ お気に入り追加
15階 91.52坪 相談 相談
事務所
相談 お問合せ お気に入り追加

担当者のコメント

千里朝日阪急ビルは、千里中央駅のランドマークタワーです。有名企業様も多く入居されています。1フロア183坪ですが、約40坪のスパンで分割可能な構造ですので、分割もご相談下さい。

階数 坪数 賃料+共益費
(坪単価)
敷金・保証金 用途 入居日 詳細 お気に入り
追加
3階
申込有
50.19坪 727,755円(税別)
(14,500円/坪)
6ヶ月
事務所
即日 お問合せ お気に入り追加

担当者のコメント

レンガ調の外観が特徴的です。エントランスは綺麗で清潔感があります。貸室も整形でレイアウトがしやすい間取りです。

物件No 0029422
住所 福岡県福岡市中央区天神3-4-2
最寄駅
竣工年 1992年10月
規模 地上8階
階数 坪数 賃料+共益費
(坪単価)
敷金・保証金 用途 入居日 詳細 お気に入り
追加
3階 43.56坪 566,280円(税別)
(13,000円/坪)
8ヶ月
事務所
店舗
即日 お問合せ お気に入り追加
4階 43.56坪 566,280円(税別)
(13,000円/坪)
8ヶ月
事務所
店舗
2025年10月 お問合せ お気に入り追加
7階 43.56坪 566,280円(税別)
(13,000円/坪)
8ヶ月
事務所
店舗
即日 お問合せ お気に入り追加

担当者のコメント

高橋天神ビルは、天神三丁目エリアにある1フロアー1テナントの物件となります。場所は、オフィスが建ち並ぶ昭和通りに面しております。周辺環境としましては、コンビニ・飲食店等も多くある便利な立地となっております。貸室内は、1フロアー占有となっておりますので、事務所のみならず、クリニック等にも最適な物件となっています。最寄駅は地下鉄天神駅徒歩2分です。

物件No 0030814
住所 東京都文京区小日向4-5-16
最寄駅
竣工年 1992年10月
規模 地上10階 地下1階
階数 坪数 賃料+共益費
(坪単価)
敷金・保証金 用途 入居日 詳細 お気に入り
追加
6階 112.58坪 1,519,830円(税別)
(13,500円/坪)
12ヶ月
事務所
即日 お問合せ お気に入り追加

担当者のコメント

ツインヒルズ茗荷谷は、1992年10月に建てられた地上10階地下1階の建物です。新耐震構造かつ機械警備もあり安心です。また、24時間の使用可能となっています。事務所をお探しの方にはぴったりの物件です。
最寄り駅は東京メトロ丸ノ内線茗荷谷駅です。最短の駅からは徒歩4分と駅から近いことも魅力です。OAフロア、個別空調、エレベータ1基を完備しています。また駐車場も完備しています。

階数 坪数 賃料+共益費
(坪単価)
敷金・保証金 用途 入居日 詳細 お気に入り
追加
8階
商談中
55.99坪 相談 相談
事務所
2026年4月 お問合せ お気に入り追加
21階 20.74坪 相談 相談
事務所
2026年4月 お問合せ お気に入り追加

担当者のコメント

中之島インテスビルは、中之島エリアの大規模オフィスビルです。2700㎜の天井高と、開放感ある眺望が魅力的です。駅からは遠い立地ですが、その分賃料がリーズナブルですし、シャトルバスもございます。

物件No 0022734
住所 大阪府大阪市淀川区西中島3-10-12
最寄駅
竣工年 1992年10月
規模 地上8階 地下1階
階数 坪数 賃料+共益費
(坪単価)
敷金・保証金 用途 入居日 詳細 お気に入り
追加
6階
602
24.36坪 267,960円(税別)
(11,000円/坪)
3ヶ月
事務所
2025年10月 お問合せ お気に入り追加

担当者のコメント

サムティ西中島ビルは西中島南方駅より徒歩3分のオフィスビルです。駅から近く、大通りに面しているので通勤や来客の際に便利です。御堂筋線と阪急線の2線を利用でき、新大阪駅も徒歩圏です。

2879 MKビル

階数 坪数 賃料+共益費
(坪単価)
敷金・保証金 用途 入居日 詳細 お気に入り
追加
4階
申込有
20.45坪 300,000円(税別)
(14,670円/坪)
8ヶ月
事務所
2026年3月 お問合せ お気に入り追加

担当者のコメント

四谷・市ヶ谷・飯田橋エリアにあるMKビルは、1992年10月に建てられた地上7階の建物です。新耐震構造かつ機械警備もあり安心です。また、24時間の使用可能となっています。事務所をお探しの方にはぴったりの物件です。
最寄り駅は東京メトロ丸ノ内線四谷三丁目駅、都営新宿線曙橋駅、JR中央線(快速)四ツ谷駅、JR中央・総武線四ツ谷駅と交通の便の良い立地です。最短の駅からは徒歩1分と駅から近いことも魅力です。個別空調、エレベータ1基を完備しています。

物件No 0051212
住所 東京都渋谷区恵比寿南1-20-6
最寄駅
竣工年 1992年10月
規模 地上6階 地下1階
※レンタルオフィスの募集状況は流動的なため下記は仮表示です。最新の募集状況はお問合せ下さい。
※また、レンタルオフィスの面積は仮の数値です。実際の面積とは異なりますのでご注意ください
階数 坪数 賃料+共益費
(坪単価)
敷金・保証金 用途 入居日 詳細 お気に入り
追加
4階
1名用
2坪 相談 相談
レンタルオフィス
相談 お問合せ お気に入り追加
4階
4名用
8坪 相談 相談
レンタルオフィス
相談 お問合せ お気に入り追加
4階
2名用
4坪 相談 相談
レンタルオフィス
相談 お問合せ お気に入り追加

担当者のコメント

恵比寿・代官山・広尾エリアにあるリージャス(第21荒井ビル)は、1992年10月に建てられた地上6階地下1階の建物です。新耐震構造かつ機械警備もあり安心です。また、24時間の使用可能となっています。レンタルオフィスをお探しの方にはぴったりの物件です。
最寄り駅はJR埼京線恵比寿駅、JR山手線恵比寿駅、JR湘南新宿ライン恵比寿駅、東京メトロ日比谷線恵比寿駅と交通の便の良い立地です。最短の駅からは徒歩5分と駅から近いことも魅力です。OAフロア、個別空調、エレベータ2基を完備しています。

Copyright(C) Quick Consulting Co.,LTD. All right reserved.