小川第1ビル
| 物件名 | 小川第1ビル | ||
|---|---|---|---|
| 住所 | 千葉県千葉市中央区新千葉2-1-5 | ||
| 最寄駅 | |||
| 竣工年 | 1969年9月 | ||
| 規模 | 地上4階 | ||
| 空調 | 個別空調 | OAフロア | その他 |
| EV | トイレ | 男女別・室外 | |
| 駐車場 | 無し | 24時間使用 | 使用可 |
| 耐震 | 旧耐震基準 | 機械警備 | 無し |
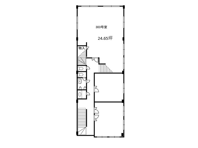
募集概要
| 階数 |
3階
303
|
|---|---|
| 坪数 | 24.65坪 |
| 用途 | 事務所 , 店舗 |
| 月額(賃料+共益費) (税別) | 175,550円 |
| 坪単価(賃料+共益費) (税別) | 7,122円/坪 |
| 賃料(税別) |
172,550円 (7,000円/坪) |
| 共益費(税別) |
3,000円 (122円/坪) |
| 敷金 | 4ヶ月 |
| 礼金 | 無し |
| 償却 | 要確認 |
| 入居可能日 | 即日 |
| 空室確認日 | 2025/12/09 |
その他空室情報
| 階数 | 坪数 |
賃料 (税別) |
共益費 (税別) |
敷金・保証金 | 入居日 | 詳細 |
お気に入り 追加 |
|---|---|---|---|---|---|---|---|
|
4階
403
|
24坪 |
168,000円 (7,000円/坪) |
3,000円 (125円/坪) |
4ヶ月 | 即日 |
|
|
|
4階
402
|
9.27坪 |
64,890円 (7,000円/坪) |
3,000円 (324円/坪) |
4ヶ月 | 2026年1月 |
|
|









