こだわり条件で再検索

坪数
(面積)
賃料+共益費
賃料+共益費
(坪当たり)
最寄駅
徒歩
築年数




用途





快適


安全


の賃貸オフィス・賃貸事務所 6088 棟 ( 15190 区画)

階数 坪数 賃料+共益費
(坪単価)
敷金・保証金 用途 入居日 詳細 お気に入り
追加
4階
401
29.06坪 392,310円(税別)
(13,500円/坪)
6ヶ月
事務所
相談 お問合せ お気に入り追加

担当者のコメント

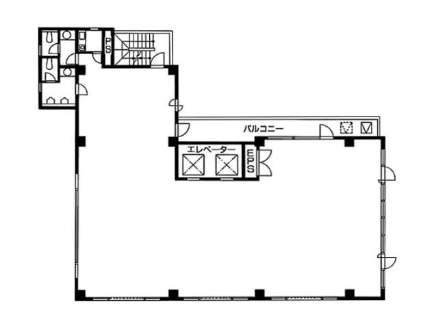
福島区エリアにあるサンアールビル福島11号館は、1991年8月に建てられた地上5階の建物です。新耐震構造で安心です。また、24時間の使用可能となっています。事務所をお探しの方にはぴったりの物件です。
最寄り駅は阪神本線福島駅、JR東西線新福島駅、JR大阪環状線福島駅、京阪中之島線中之島駅、京阪中之島線渡辺橋駅と交通の便の良い立地です。最短の駅からは徒歩3分と駅から近いことも魅力です。個別空調、エレベータ1基を完備しています。

物件No 0035209
住所 福岡県北九州市小倉北区米町1-1-1
最寄駅
竣工年 1974年1月
規模 地上10階 地下2階
階数 坪数 賃料+共益費
(坪単価)
敷金・保証金 用途 入居日 詳細 お気に入り
追加
7階
GH
25.6坪 256,000円(税別)
(10,000円/坪)
6ヶ月
事務所
2026年4月 お問合せ お気に入り追加

担当者のコメント

モノレール「平和通」より徒歩3分。小倉駅に繋がる大通り沿いの物件になります。耐震工事済の物件になります。茶色と硝子の外観が印象に残るオフィスビルです。利便性も良くオフィスの設備も整った基準階面積200坪強の正統派オフィスです。様々な大きさのオフィスに対応しております。是非一度お問い合わせください。

物件No 0031800
住所 福岡県北九州市小倉北区紺屋町12-4
最寄駅
竣工年 1986年1月
規模 地上9階
階数 坪数 賃料+共益費
(坪単価)
敷金・保証金 用途 入居日 詳細 お気に入り
追加
2階
分割③
135.94坪 相談 12ヶ月
事務所
即日 お問合せ お気に入り追加
2階
分割②
159.43坪 相談 12ヶ月
事務所
即日 お問合せ お気に入り追加
2階
分割④
135.45坪 相談 12ヶ月
事務所
即日 お問合せ お気に入り追加
2階
分割①
162.22坪 相談 12ヶ月
事務所
即日 お問合せ お気に入り追加
2階 190.38坪 相談 12ヶ月
事務所
即日 お問合せ お気に入り追加
3階 23.97坪 相談 12ヶ月
事務所
即日 お問合せ お気に入り追加
3階 54.91坪 相談 12ヶ月
事務所
即日 お問合せ お気に入り追加
3階
先行有
30.94坪 相談 12ヶ月
事務所
即日 お問合せ お気に入り追加
5階 26.27坪 相談 12ヶ月
事務所
即日 お問合せ お気に入り追加

担当者のコメント

北九州高速鉄道「平和通」より徒歩7分。小文字通り沿いのオフィスビルのご紹介です。小倉エリアでは数少ない重厚感ある正統派オフィスビルです。設備面でも問題なく、快適なオフィス環境で仕事に集中する事ができます。共用部も手入れが行き届いており小倉エリアで物件をお探しのお客様には是非ご紹介したい物件になります。

物件No 0031808
住所 福岡県北九州市小倉北区堺町1-6-15
最寄駅
竣工年 2000年8月
規模 地上9階
階数 坪数 賃料+共益費
(坪単価)
敷金・保証金 用途 入居日 詳細 お気に入り
追加
7階
①(北側)申込有
35.69坪 499,660円(税別)
(14,000円/坪)
12ヶ月
事務所
即日 お問合せ お気に入り追加

担当者のコメント

北九州高速鉄道「平和通」より徒歩4分。「小文字通り」沿いのオフィスビルのご紹介になります。周辺はオフィスや店舗が建ち並びます。小倉エリアでも賑わうビジネス街にあるビルになり、スタイリッシュな外観や清潔感のある共用部は来る人に好印象を与えます。小倉エリアで物件をお探しのお客様は是非一度お問い合わせください。

物件No 0031804
住所 福岡県北九州市小倉北区紺屋町9-1
最寄駅
竣工年 1973年12月
規模 地上12階 地下2階
階数 坪数 賃料+共益費
(坪単価)
敷金・保証金 用途 入居日 詳細 お気に入り
追加
1階 20.94坪 相談 24ヶ月
事務所
店舗
即日 お問合せ お気に入り追加
1階 26.26坪 相談 24ヶ月
事務所
店舗
即日 お問合せ お気に入り追加
1階 76.19坪 相談 24ヶ月
事務所
店舗
即日 お問合せ お気に入り追加
1階 123.39坪 相談 24ヶ月
事務所
店舗
即日 お問合せ お気に入り追加
5階 22.44坪 相談 12ヶ月
事務所
2026年4月 お問合せ お気に入り追加
7階 29.36坪 相談 12ヶ月
事務所
即日 お問合せ お気に入り追加
8階 110.32坪 相談 12ヶ月
事務所
即日 お問合せ お気に入り追加
8階 83.87坪 相談 12ヶ月
事務所
即日 お問合せ お気に入り追加
10階 29.36坪 相談 12ヶ月
事務所
2026年3月 お問合せ お気に入り追加

担当者のコメント

小倉エリアにある明治安田生命小倉ビルは、1973年12月に建てられた地上12階地下2階の建物です。耐震補強済で機械警備もあります。事務所、店舗をお探しの方にはぴったりの物件です。
最寄り駅は北九州高速鉄道小倉駅、JR鹿児島本線小倉駅、JR日豊本線小倉駅と交通の便の良い立地です。最短の駅からは徒歩10分と駅から近いことも魅力です。個別空調、エレベータ4基を完備しています。また駐車場も完備しています。

物件No 0031850
住所 福岡県北九州市小倉北区米町1-3-1
最寄駅
竣工年 1973年11月
規模 地上7階 地下1階
階数 坪数 賃料+共益費
(坪単価)
敷金・保証金 用途 入居日 詳細 お気に入り
追加
4階 26坪 相談 相談
事務所
即日 お問合せ お気に入り追加

担当者のコメント

小倉エリアにある明治安田生命北九州ビルは、1973年11月に建てられた地上7階地下1階の建物です。旧耐震構造で機械警備もあります。事務所をお探しの方にはぴったりの物件です。
最寄り駅は北九州高速鉄道小倉駅、JR日豊本線小倉駅、JR鹿児島本線小倉駅と交通の便の良い立地です。最短の駅からは徒歩5分と駅から近いことも魅力です。OAフロア、個別空調、エレベータ2基を完備しています。また駐車場も完備しています。

物件No 0031806
住所 福岡県北九州市小倉北区堺町1-2-16
最寄駅
竣工年 1979年9月
規模 地上10階 地下1階
階数 坪数 賃料+共益費
(坪単価)
敷金・保証金 用途 入居日 詳細 お気に入り
追加
3階 46.4坪 相談 12ヶ月
事務所
2027年8月 お問合せ お気に入り追加
3階
先行有
21.42坪 相談 12ヶ月
事務所
即日 お問合せ お気に入り追加
3階
先行有
41.12坪 相談 相談
事務所
即日 お問合せ お気に入り追加
4階 21.42坪 相談 相談
事務所
即日 お問合せ お気に入り追加

担当者のコメント

小倉エリアにある十八銀行第一生命共同ビルは、1979年9月に建てられた地上10階地下1階の建物です。耐震補強済で機械警備もあります。また、24時間の使用可能となっています。事務所をお探しの方にはぴったりの物件です。
最寄り駅は北九州高速鉄道小倉駅、JR鹿児島本線小倉駅、JR日豊本線小倉駅と交通の便の良い立地です。最短の駅からは徒歩8分と駅から近いことも魅力です。OAフロア、個別空調、エレベータ3基を完備しています。また駐車場も完備しています。

物件No 0022114
住所 大阪府大阪市北区中之島4-3-25
最寄駅
竣工年 2007年11月
規模 地上11階 地上1階
階数 坪数 賃料+共益費
(坪単価)
敷金・保証金 用途 入居日 詳細 お気に入り
追加
10階
H
33.38坪 500,700円(税別)
(15,000円/坪)
12ヶ月
事務所
相談 お問合せ お気に入り追加

担当者のコメント

フジヒサFJ中之島ビルは、中之島駅から徒歩2分、なにわ筋に面した賃貸オフィスビルです。2007年竣工と、比較的築浅で全体的に清潔感がございます。貸室も無柱で天井も高く開放的です。

物件No 0026787
住所 東京都中央区八丁堀3-27-4
最寄駅
竣工年 1996年8月
規模 地上8階
階数 坪数 賃料+共益費
(坪単価)
敷金・保証金 用途 入居日 詳細 お気に入り
追加
2階
セットアップ
65.7坪 1,248,300円(税別)
(19,000円/坪)
相談
事務所
2026年9月 お問合せ お気に入り追加

担当者のコメント

最寄りの八丁堀駅から徒歩1分、JR側のB4出口から出ると便利です。セットアップ仕様で移転時にかかる費用と時間を削減できます。

物件No 0034291
住所 愛知県名古屋市名東区本郷3-135
最寄駅
竣工年 1995年12月
規模 地上9階 地下1階
階数 坪数 賃料+共益費
(坪単価)
敷金・保証金 用途 入居日 詳細 お気に入り
追加
7階
1フロア
42.9坪 454,740円(税別)
(10,600円/坪)
10ヶ月
事務所
2026年4月 お問合せ お気に入り追加

担当者のコメント

名東区貸事務所。
地下鉄東山線「本郷」駅より徒歩5分圏内、東名高速道路名古屋インター・名二環本郷インターすぐの好立地!
ビル設備に駐車場もございますのでお車をご利用される企業様にもオススメです。

Copyright(C) Quick Consulting Co.,LTD. All right reserved.