八重洲桜川ビル
| 物件名 | 八重洲桜川ビル | ||
|---|---|---|---|
| 住所 | 東京都中央区八丁堀3-27-4 | ||
| 最寄駅 | |||
| 竣工年 | 1996年8月 | ||
| 規模 | 地上8階 | ||
| 空調 | 個別空調 | OAフロア | OAフロア |
| EV | 2 基 | トイレ | 男女別・室内 |
| 駐車場 | 有り | 24時間使用 | 使用可 |
| 耐震 | 新耐震基準 | 機械警備 | 有り |
募集概要
| 階数 |
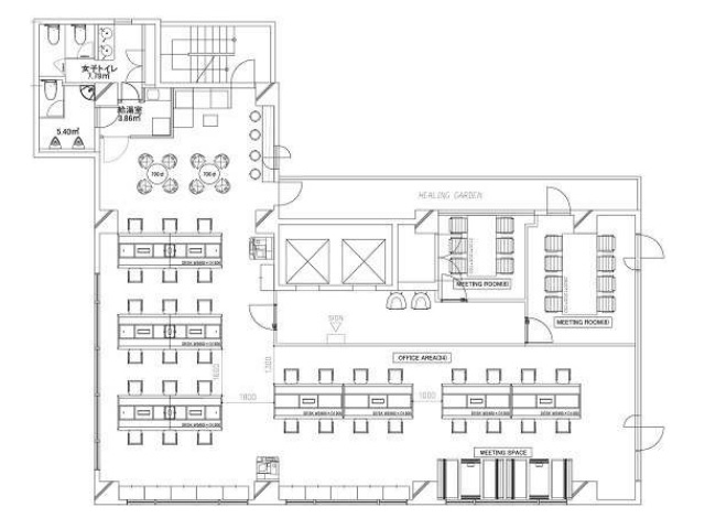
2階
セットアップ
|
|---|---|
| 坪数 | 65.7坪 |
| 用途 | 事務所 |
| 月額(賃料+共益費) (税別) | 1,248,300円 |
| 坪単価(賃料+共益費) (税別) | 19,000円/坪 |
| 賃料(税別) |
1,248,300円 (19,000円/坪) |
| 共益費(税別) | 賃料に含む |
| 敷金 | 相談 |
| 礼金 | 無し |
| 償却 | 無し |
| 入居可能日 | 2026年9月 |
| 空室確認日 | 2026/03/25 |









