こだわり条件で再検索

キーワード
坪数
(面積)
賃料+共益費
賃料+共益費
(坪当たり)
最寄駅
徒歩
築年数




用途





快適


安全


[]を含むの賃貸オフィス・賃貸事務所 6554 棟 ( 15916 区画)

物件No 0023285
住所 東京都大田区大森北1-1-2
最寄駅
竣工年 1968年6月
規模 地上9階 地下2階
階数 坪数 賃料+共益費
(坪単価)
敷金・保証金 用途 入居日 詳細 お気に入り
追加
B1階
A
46.92坪 844,560円(税別)
(18,000円/坪)
12ヶ月
店舗
即日 お問合せ お気に入り追加
B1階 83.9坪 1,510,200円(税別)
(18,000円/坪)
12ヶ月
店舗
即日 お問合せ お気に入り追加
B1階
B
36.98坪 665,640円(税別)
(18,000円/坪)
12ヶ月
店舗
即日 お問合せ お気に入り追加

担当者のコメント

YK-15ビルは、1968年6月に建てられた地上9階地下2階の建物です。旧耐震構造です。また、24時間の使用可能となっています。店舗をお探しの方にはぴったりの物件です。
最寄り駅はJR京浜東北線大森駅、京急本線大森海岸駅です。最短の駅からは徒歩1分と駅から近いことも魅力です。OAフロア、個別空調、エレベータ3基を完備しています。

物件No 0023284
住所 東京都大田区大森北1-11-5
最寄駅
竣工年 1986年2月
規模 地上7階 地上1階
階数 坪数 賃料+共益費
(坪単価)
敷金・保証金 用途 入居日 詳細 お気に入り
追加
4階 121.5坪 1,215,000円(税別)
(10,000円/坪)
4ヶ月
事務所
即日 お問合せ お気に入り追加
7階 121.5坪 1,215,000円(税別)
(10,000円/坪)
4ヶ月
事務所
即日 お問合せ お気に入り追加

担当者のコメント

共和七番館は、1986年2月に建てられた地上7階地上1階の建物です。新耐震構造かつ機械警備もあり安心です。また、24時間の使用可能となっています。事務所をお探しの方にはぴったりの物件です。
最寄り駅はJR京浜東北線大森駅です。最短の駅からは徒歩3分と駅から近いことも魅力です。OAフロア、個別空調、エレベータ2基を完備しています。また機械式の駐車場も完備しています。

物件No 0040372
住所 東京都大田区大森北1-17-2
最寄駅
竣工年 1988年12月
規模 地上8階 地下2階
階数 坪数 賃料+共益費
(坪単価)
敷金・保証金 用途 入居日 詳細 お気に入り
追加
6階
分割案
46.82坪 相談 12ヶ月
事務所
相談 お問合せ お気に入り追加
6階
分割案
58.04坪 相談 12ヶ月
事務所
相談 お問合せ お気に入り追加
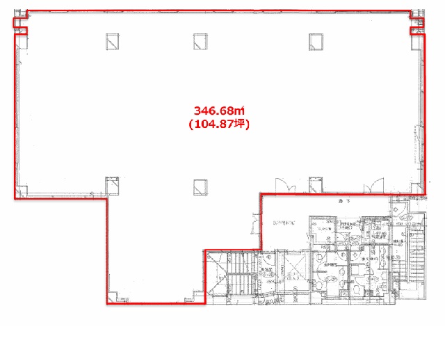
6階 104.87坪 相談 12ヶ月
事務所
2026年2月 お問合せ お気に入り追加

担当者のコメント

大森センタービルは、大森海岸通り沿いに位置するオフィスビルになります。大きな交差点付近で視認性に長けております。グレー色の落ち着いた外観が特徴です。

物件No 0061718
住所 東京都大田区大森北1-4-1
最寄駅
竣工年 1963年8月
規模 地上8階
階数 坪数 賃料+共益費
(坪単価)
敷金・保証金 用途 入居日 詳細 お気に入り
追加
3階 26坪 650,000円(税別)
(25,000円/坪)
5ヶ月
事務所
店舗
即日 お問合せ お気に入り追加
4階 26坪 650,000円(税別)
(25,000円/坪)
5ヶ月
事務所
店舗
即日 お問合せ お気に入り追加

担当者のコメント

にある桂昇大森駅前ビルは、1963年8月に建てられた地上8階の建物です。旧耐震構造で機械警備もあります。また、24時間の使用可能となっています。事務所、店舗をお探しの方にはぴったりの物件です。
最寄り駅はJR京浜東北線大森駅です。最短の駅からは徒歩1分と駅から近いことも魅力です。エレベータ1基を完備しています。

物件No 0023295
住所 東京都大田区大森北1-5-1
最寄駅
竣工年 1989年7月
規模 地上11階 地下2階
階数 坪数 賃料+共益費
(坪単価)
敷金・保証金 用途 入居日 詳細 お気に入り
追加
3階
申込有
29.08坪 相談 12ヶ月
事務所
2025年12月 お問合せ お気に入り追加
3階
申込有
121.76坪 相談 12ヶ月
事務所
2025年12月 お問合せ お気に入り追加

担当者のコメント

JRE大森駅東口ビルは、1989年7月に建てられた地上11階地下2階の建物です。新耐震構造かつ機械警備もあり安心です。また、24時間の使用可能となっています。事務所をお探しの方にはぴったりの物件です。
最寄り駅はJR京浜東北線大森駅です。最短の駅からは徒歩1分と駅から近いことも魅力です。OAフロア、個別空調、エレベータ5基を完備しています。また駐車場も完備しています。

物件No 0035503
住所 東京都大田区大森北3-4-5
最寄駅
竣工年 1992年6月
規模 地上8階
階数 坪数 賃料+共益費
(坪単価)
敷金・保証金 用途 入居日 詳細 お気に入り
追加
3階 35.19坪 427,273円(税別)
(12,142円/坪)
8ヶ月
事務所
即日 お問合せ お気に入り追加
4階 38.09坪 454,546円(税別)
(11,933円/坪)
8ヶ月
事務所
2026年2月 お問合せ お気に入り追加
7階 38.09坪 454,546円(税別)
(11,933円/坪)
8ヶ月
事務所
即日 お問合せ お気に入り追加

担当者のコメント

平安ビルは、1992年6月に建てられた地上8階の建物です。新耐震構造かつ機械警備もあり安心です。また、24時間の使用可能となっています。事務所をお探しの方にはぴったりの物件です。
最寄り駅はJR京浜東北線大森駅、京急本線平和島駅です。最短の駅からは徒歩5分と駅から近いことも魅力です。OAフロア、個別空調、エレベータ1基を完備しています。

物件No 0023304
住所 東京都大田区大森本町1-6-1
最寄駅
竣工年 1993年5月
規模 地上7階
階数 坪数 賃料+共益費
(坪単価)
敷金・保証金 用途 入居日 詳細 お気に入り
追加
2階
C
130.09坪 相談 12ヶ月
事務所
即日 お問合せ お気に入り追加
3階 342.12坪 相談 12ヶ月
事務所
即日 お問合せ お気に入り追加
7階 342.12坪 相談 12ヶ月
事務所
即日 お問合せ お気に入り追加

担当者のコメント

大森パークビルは、1993年5月に建てられた地上7階の建物です。新耐震構造で安心です。また、24時間の使用可能となっています。事務所をお探しの方にはぴったりの物件です。
最寄り駅は京急本線大森海岸駅、JR京浜東北線大森駅です。最短の駅からは徒歩3分と駅から近いことも魅力です。OAフロア、エレベータ3基を完備しています。また機械式の駐車場も完備しています。

物件No 0039260
住所 福岡県福岡市南区大楠2-6-9
最寄駅
竣工年 1990年10月
規模 地上4階
階数 坪数 賃料+共益費
(坪単価)
敷金・保証金 用途 入居日 詳細 お気に入り
追加
3階
1フロア
26.3坪 180,000円(税別)
(6,844円/坪)
3ヶ月
事務所
2026年1月 お問合せ お気に入り追加
4階
1フロア
26.3坪 180,000円(税別)
(6,844円/坪)
3ヶ月
事務所
即日 お問合せ お気に入り追加

担当者のコメント

4面採光の明るい事務所です。

物件No 0038421
住所 福岡県福岡市南区大橋-1-1
最寄駅
竣工年 1988年3月
規模 地上7階
階数 坪数 賃料+共益費
(坪単価)
敷金・保証金 用途 入居日 詳細 お気に入り
追加
2階 25.57坪 270,000円(税別)
(10,559円/坪)
6ヶ月
事務所
店舗
2026年1月 お問合せ お気に入り追加

担当者のコメント

福岡市その他エリアにあるメモリープラザ大橋ビルは、1988年3月に建てられた地上7階の建物です。新耐震構造で安心です。事務所、店舗をお探しの方にはぴったりの物件です。
最寄り駅は西鉄天神大牟田線大橋駅です。最短の駅からは徒歩5分と駅から近いことも魅力です。個別空調、エレベータ1基を完備しています。

物件No 0064678
住所 福岡県福岡市南区大橋1-3-3
最寄駅
竣工年 2025年3月
規模 地上6階
階数 坪数 賃料+共益費
(坪単価)
敷金・保証金 用途 入居日 詳細 お気に入り
追加
1階
1-C・D
47.28坪 1,040,160円(税別)
(22,000円/坪)
相談
店舗
即日 お問合せ お気に入り追加
1階
1-D
23.8坪 523,600円(税別)
(22,000円/坪)
相談
店舗
即日 お問合せ お気に入り追加
1階
1-B
28.26坪 621,720円(税別)
(22,000円/坪)
相談
店舗
即日 お問合せ お気に入り追加
1階
1-C
23.48坪 516,560円(税別)
(22,000円/坪)
相談
店舗
即日 お問合せ お気に入り追加
3階
3-B
32.29坪 581,220円(税別)
(18,000円/坪)
相談
事務所
店舗
即日 お問合せ お気に入り追加
3階
3-A
40.66坪 731,880円(税別)
(18,000円/坪)
相談
事務所
店舗
即日 お問合せ お気に入り追加
3階
3-A・B
72.95坪 1,313,100円(税別)
(18,000円/坪)
相談
事務所
店舗
即日 お問合せ お気に入り追加
4階
4-B 検討中
33.14坪 596,520円(税別)
(18,000円/坪)
相談
事務所
店舗
即日 お問合せ お気に入り追加

担当者のコメント

”暮らし”を豊かに”えん”を繋ぐ
福岡市南区に新たなふれあいの場が誕生
大橋駅前ロータリー沿いの立地に公募による市有地の再開発事業
施設内自走式駐車場(87台)を備え、緑と花に覆われた外観が特徴です。
屋上広場など共用部には賑わいがあふれ、各種イベントによる集客も見込めます。
世界的園芸デザイナーの石原和幸氏がプランニングを担当した唯一無二の複合ビルです。

Copyright(C) Quick Consulting Co.,LTD. All right reserved.