ビアビアンカマツヲ
| 物件名 | ビアビアンカマツヲ | ||
|---|---|---|---|
| 住所 | 広島県広島市中区大手町5-7-2 | ||
| 最寄駅 | |||
| 竣工年 | 1983年3月 | ||
| 規模 | 地上13階 | ||
| 空調 | 無し | OAフロア | タイルカーペット / Pタイル |
| EV | 1 基 | トイレ | 男女別・室外 |
| 駐車場 | 無し | 24時間使用 | 使用可 |
| 耐震 | 新耐震基準 | 機械警備 | 無し |
募集概要
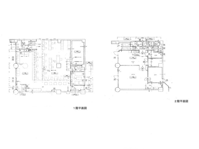
| 階数 |
1階
1-2F
|
|---|---|
| 坪数 | 108.65坪 |
| 用途 | 店舗 |
| 月額(賃料+共益費) (税別) | 1,000,000円 |
| 坪単価(賃料+共益費) (税別) | 9,204円/坪 |
| 賃料(税別) |
1,000,000円 (9,204円/坪) |
| 共益費(税別) | 賃料に含む |
| 敷金 | 6ヶ月 |
| 礼金 | 1ヶ月 |
| 償却 | |
| 入居可能日 | 2026年2月 |
| 空室確認日 | 2025/11/07 |
その他空室情報
| 階数 | 坪数 |
賃料 (税別) |
共益費 (税別) |
敷金・保証金 | 入居日 | 詳細 |
お気に入り 追加 |
|---|---|---|---|---|---|---|---|
|
2階
0201
|
93.51坪 |
550,000円 (5,882円/坪) |
賃料に含む | 8ヶ月 | 即日 |
|
|
|
3階
0301
|
45.19坪 |
361,520円 (8,000円/坪) |
賃料に含む | 10ヶ月 | 即日 |
|
|









