こだわり条件で再検索

キーワード
坪数
(面積)
賃料+共益費
賃料+共益費
(坪当たり)
最寄駅
徒歩
築年数




用途





快適


安全


[]を含むの賃貸オフィス・賃貸事務所 6429 棟 ( 15606 区画)

階数 坪数 賃料+共益費
(坪単価)
敷金・保証金 用途 入居日 詳細 お気に入り
追加
7階 54.13坪 相談 相談
事務所
2026年4月 お問合せ お気に入り追加

担当者のコメント

地下鉄「呉服町」駅目の前。2020年2月竣工予定の新築オフィスビル「ディーライフプレイス呉服町」です。街並みの連続性に寄与する水平連窓、落ち着きあるモノトーン調を採用し「街並みに溶け込む普遍性のある外観デザイン」建設地は、福岡市博多区綱場町1丁目で、明治通りと大博通りの交差点に位置すます。敷地面積は約340坪。延床面積は約2611坪を予定しています。

階数 坪数 賃料+共益費
(坪単価)
敷金・保証金 用途 入居日 詳細 お気に入り
追加
4階
(先)セットアップ
62.04坪 1,116,720円(税別)
(18,000円/坪)
6ヶ月
事務所
即日 お問合せ お気に入り追加

担当者のコメント

複数駅から徒歩圏内と便利な立地です。エントランスは綺麗で清潔感があります。間取りは整形でレイアウトがしやすいです。

物件No 0046686
住所 鹿児島県鹿児島市大黒町2-11
最寄駅
竣工年 1995年9月
規模 地上6階
階数 坪数 賃料+共益費
(坪単価)
敷金・保証金 用途 入居日 詳細 お気に入り
追加
3階
AB
55.85坪 相談 3ヶ月
事務所
即日 お問合せ お気に入り追加
4階
AB
55.85坪 相談 3ヶ月
事務所
即日 お問合せ お気に入り追加

担当者のコメント

鹿児島市電「いづろ通」より徒歩3分。大門口通り沿いのオフィス物件です。個性的な外観が目に留まる物件です。グレーの落ち着いた色をまとったオフィスになります。「いづろ」の交差点より1ブロック先に進んだ場所にあり、利便性も良いオフィスです。是非一度お問い合わせください。

物件No 0046651
住所 東京都豊島区東池袋2-39-2
最寄駅
竣工年 1974年11月
規模 地上11階
階数 坪数 賃料+共益費
(坪単価)
敷金・保証金 用途 入居日 詳細 お気に入り
追加
8階
先行有
25.35坪 304,200円(税別)
(12,000円/坪)
6ヶ月
事務所
2026年5月 お問合せ お気に入り追加

担当者のコメント

池袋エリアにある大住ビルは、1974年11月に建てられた地上11階の建物です。旧耐震構造で機械警備もあります。また、24時間の使用可能となっています。事務所をお探しの方にはぴったりの物件です。
最寄り駅は東京メトロ有楽町線東池袋駅、JR山手線大塚駅、JR山手線池袋駅と交通の便の良い立地です。最短の駅からは徒歩6分と駅から近いことも魅力です。個別空調、エレベータ1基を完備しています。

物件No 0046587
住所 東京都千代田区神田三崎町1-1-4
最寄駅
竣工年 1988年10月
規模 地上6階
階数 坪数 賃料+共益費
(坪単価)
敷金・保証金 用途 入居日 詳細 お気に入り
追加
3階 37坪 462,500円(税別)
(12,500円/坪)
6ヶ月
事務所
相談 お問合せ お気に入り追加

担当者のコメント

飯田橋・水道橋・神保町エリアにあるMK’88ビルは、1988年10月に建てられた地上6階の建物です。新耐震構造かつ機械警備もあり安心です。また、24時間の使用可能となっています。事務所をお探しの方にはぴったりの物件です。
最寄り駅はJR中央・総武線水道橋駅、東京メトロ半蔵門線神保町駅です。最短の駅からは徒歩4分と駅から近いことも魅力です。個別空調、エレベータ1基を完備しています。

階数 坪数 賃料+共益費
(坪単価)
敷金・保証金 用途 入居日 詳細 お気に入り
追加
10階 251.6坪 相談 相談
事務所
2026年6月 お問合せ お気に入り追加
10階 117.68坪 相談 相談
事務所
2026年6月 お問合せ お気に入り追加
10階 79.59坪 相談 相談
事務所
2026年6月 お問合せ お気に入り追加
10階 54.43坪 相談 相談
事務所
2026年6月 お問合せ お気に入り追加

担当者のコメント

赤坂・青山・六本木エリアにあるthe ARGYLE aoyamaは、2020年5月に建てられた地上20階地下2階の建物です。新耐震構造かつ機械警備もあり安心です。また、24時間の使用可能となっています。事務所をお探しの方にはぴったりの物件です。
最寄り駅は東京メトロ銀座線外苑前駅、東京メトロ千代田線表参道駅、東京メトロ半蔵門線表参道駅、東京メトロ銀座線表参道駅と交通の便の良い立地です。最短の駅からは徒歩3分と駅から近いことも魅力です。OAフロア、個別空調、エレベータ4基を完備しています。

階数 坪数 賃料+共益費
(坪単価)
敷金・保証金 用途 入居日 詳細 お気に入り
追加
5階 33.32坪 475,000円(税別)
(14,256円/坪)
2,850,000円
事務所
店舗
即日 お問合せ お気に入り追加
6階 31.86坪 440,000円(税別)
(13,810円/坪)
2,640,000円
事務所
店舗
即日 お問合せ お気に入り追加

担当者のコメント

三宮・元町・神戸駅エリアにあるIRSX(建成ビル)は、1980年11月に建てられた地上7階の建物です。旧耐震構造です。事務所、店舗をお探しの方にはぴったりの物件です。
最寄り駅は神戸市営地下鉄山手線三宮駅、神戸新交通ポートアイランド線三宮駅、阪神本線三宮駅、神戸高速東西線三宮駅、阪急神戸本線三宮駅と交通の便の良い立地です。最短の駅からは徒歩5分と駅から近いことも魅力です。エレベータ2基を完備しています。

階数 坪数 賃料+共益費
(坪単価)
敷金・保証金 用途 入居日 詳細 お気に入り
追加
2階
南A
47.62坪 666,680円(税別)
(14,000円/坪)
10ヶ月
事務所
店舗
即日 お問合せ お気に入り追加

担当者のコメント

伏見・栄エリアにあるさくらHills NISHIKI Platinum Residenceは、2020年2月に建てられた地上14階地下1階の建物です。新耐震構造で安心です。事務所、店舗をお探しの方にはぴったりの物件です。
最寄り駅は名古屋市営地下鉄鶴舞線伏見駅、名古屋市営地下鉄東山線伏見駅、名古屋市営地下鉄桜通線丸の内駅、名古屋市営地下鉄東山線栄駅、名古屋市営地下鉄名城線栄駅と交通の便の良い立地です。最短の駅からは徒歩1分と駅から近いことも魅力です。エレベータ2基を完備しています。

階数 坪数 賃料+共益費
(坪単価)
敷金・保証金 用途 入居日 詳細 お気に入り
追加
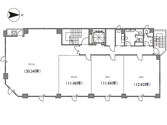
2階
203
12.63坪 164,190円(税別)
(13,000円/坪)
12ヶ月
事務所
2026年3月 お問合せ お気に入り追加
2階
202
11.69坪 151,970円(税別)
(13,000円/坪)
12ヶ月
事務所
2026年3月 お問合せ お気に入り追加

担当者のコメント

三宮・元町・神戸駅エリアにある栄ビルディングは、1982年8月に建てられた地上8階の建物です。また、24時間の使用可能となっています。事務所をお探しの方にはぴったりの物件です。
最寄り駅はJR東海道本線神戸駅、神戸高速東西線西元町駅、神戸市営地下鉄海岸線(夢かもめ)みなと元町駅、神戸高速東西線花隈駅と交通の便の良い立地です。最短の駅からは徒歩2分と駅から近いことも魅力です。個別空調、エレベータ1基を完備しています。また駐車場も完備しています。

物件No 0046469
住所 兵庫県尼崎市御園町24
最寄駅
竣工年 1969年10月
規模 地上9階 地下1階
階数 坪数 賃料+共益費
(坪単価)
敷金・保証金 用途 入居日 詳細 お気に入り
追加
2階
204・205
32.8坪 246,000円(税別)
(7,500円/坪)
8ヶ月
事務所
2026年5月 お問合せ お気に入り追加
2階
206
16.4坪 123,000円(税別)
(7,500円/坪)
8ヶ月
事務所
即日 お問合せ お気に入り追加
5階
504
16.4坪 123,000円(税別)
(7,500円/坪)
事務所
2026年2月 お問合せ お気に入り追加
5階
501-502
39.7坪 297,750円(税別)
(7,500円/坪)
8ヶ月
事務所
即日 お問合せ お気に入り追加
7階
706
16.4坪 123,000円(税別)
(7,500円/坪)
8ヶ月
事務所
2026年1月 お問合せ お気に入り追加
8階
803
16.4坪 123,000円(税別)
(7,500円/坪)
8ヶ月
事務所
即日 お問合せ お気に入り追加
9階
905
16.4坪 123,000円(税別)
(7,500円/坪)
8ヶ月
事務所
即日 お問合せ お気に入り追加

担当者のコメント

尼崎第1ビルは、1969年10月に建てられた地上9階地下1階の建物です。また、24時間の使用可能となっています。事務所をお探しの方にはぴったりの物件です。
最寄り駅は阪神本線尼崎駅です。最短の駅からは徒歩1分と駅から近いことも魅力です。個別空調、エレベータ2基を完備しています。また駐車場も完備しています。

Copyright(C) Quick Consulting Co.,LTD. All right reserved.