尼崎第1ビル
| 物件名 | 尼崎第1ビル | ||
|---|---|---|---|
| 住所 | 兵庫県尼崎市御園町24 | ||
| 最寄駅 | |||
| 竣工年 | 1969年10月 | ||
| 規模 | 地上9階 地下1階 | ||
| 空調 | 個別空調 | OAフロア | タイルカーペット |
| EV | 2 基 | トイレ | 男女別・室外 |
| 駐車場 | 有り | 24時間使用 | 使用可 |
| 耐震 | 機械警備 | 有り | |
募集概要
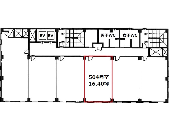
| 階数 |
5階
504
|
|---|---|
| 坪数 | 16.4坪 |
| 用途 | 事務所 |
| 月額(賃料+共益費) (税別) | 123,000円 |
| 坪単価(賃料+共益費) (税別) | 7,500円/坪 |
| 賃料(税別) |
123,000円 (7,500円/坪) |
| 共益費(税別) | 賃料に含む |
| 敷金 | |
| 礼金 | |
| 償却 | 無し |
| 入居可能日 | 2026年2月 |
| 空室確認日 | 2025/10/08 |
その他空室情報
| 階数 | 坪数 |
賃料 (税別) |
共益費 (税別) |
敷金・保証金 | 入居日 | 詳細 |
お気に入り 追加 |
|---|---|---|---|---|---|---|---|
|
2階
204・205
|
32.8坪 |
246,000円 (7,500円/坪) |
賃料に含む | 8ヶ月 | 2026年5月 |
|
|
|
2階
206
|
16.4坪 |
123,000円 (7,500円/坪) |
賃料に含む | 8ヶ月 | 即日 |
|
|
|
5階
501-502
|
39.7坪 |
297,750円 (7,500円/坪) |
賃料に含む | 8ヶ月 | 即日 |
|
|
|
7階
706
|
16.4坪 |
123,000円 (7,500円/坪) |
賃料に含む | 8ヶ月 | 2026年1月 |
|
|
|
8階
803
|
16.4坪 |
123,000円 (7,500円/坪) |
賃料に含む | 8ヶ月 | 即日 |
|
|
|
9階
905
|
16.4坪 |
123,000円 (7,500円/坪) |
賃料に含む | 8ヶ月 | 即日 |
|
|
|
9階
906 先行有
|
16.4坪 |
123,000円 (7,500円/坪) |
賃料に含む | 8ヶ月 | 即日 |
|
|









