アミング潮江ウエスト2番館
| 物件名 | アミング潮江ウエスト2番館 | ||
|---|---|---|---|
| 住所 | 兵庫県尼崎市潮江1-16-1 | ||
| 最寄駅 | |||
| 竣工年 | 1999年9月 | ||
| 規模 | 地上19階 地下2階 | ||
| 空調 | 個別空調 | OAフロア | |
| EV | 3 基 | トイレ | 男女別・室外 |
| 駐車場 | 24時間使用 | 使用不可 | |
| 耐震 | 新耐震基準 | 機械警備 | 有り |
募集概要
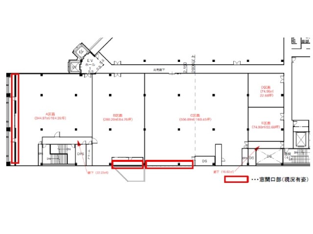
| 階数 |
3階
302C
|
|---|---|
| 坪数 | 112.39坪 |
| 用途 | 事務所 , 店舗 |
| 月額(賃料+共益費) (税別) | 1,573,460円 |
| 坪単価(賃料+共益費) (税別) | 14,000円/坪 |
| 賃料(税別) |
1,573,460円 (14,000円/坪) |
| 共益費(税別) | 賃料に含む |
| 敷金 | 6ヶ月 |
| 礼金 | 無し |
| 償却 | 無し |
| 入居可能日 | 2026年3月 |
| 空室確認日 | 2025/12/03 |









