レイヴェル31
| 物件名 | レイヴェル31 | ||
|---|---|---|---|
| 住所 | 千葉県柏市柏2-8-16 | ||
| 最寄駅 | |||
| 竣工年 | 2004年10月 | ||
| 規模 | 地上6階 | ||
| 空調 | 無し | OAフロア | スケルトン |
| EV | 2 基 | トイレ | 無し |
| 駐車場 | 有り | 24時間使用 | 使用可 |
| 耐震 | 新耐震基準 | 機械警備 | 調査中 |
募集概要
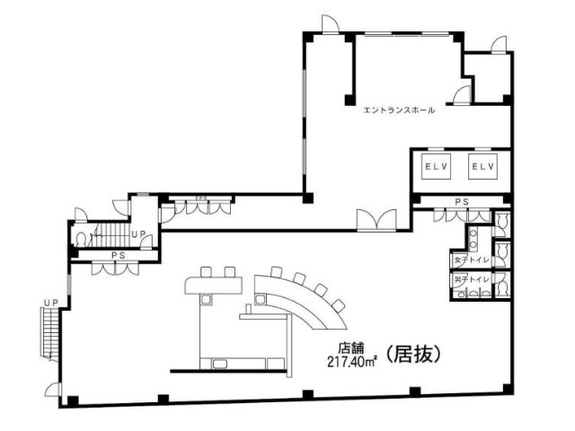
| 階数 | 2階 |
|---|---|
| 坪数 | 65.76坪 |
| 用途 | 店舗 |
| 月額(賃料+共益費) (税別) | 1,348,080円 |
| 坪単価(賃料+共益費) (税別) | 20,500円/坪 |
| 賃料(税別) |
1,183,680円 (18,000円/坪) |
| 共益費(税別) |
164,400円 (2,500円/坪) |
| 敷金 | 10ヶ月 |
| 礼金 | 無し |
| 償却 | 無し |
| 入居可能日 | 即日 |
| 空室確認日 | 2025/10/14 |
その他空室情報
| 階数 | 坪数 |
賃料 (税別) |
共益費 (税別) |
敷金・保証金 | 入居日 | 詳細 |
お気に入り 追加 |
|---|---|---|---|---|---|---|---|
| 1階 | 59.99坪 |
1,199,800円 (20,000円/坪) |
149,975円 (2,500円/坪) |
10ヶ月 | 即日 |
|
|









