日発ビル
| 物件名 | 日発ビル | ||
|---|---|---|---|
| 住所 | 千葉県松戸市本町1-12 | ||
| 最寄駅 | |||
| 竣工年 | 1978年10月 | ||
| 規模 | 地上7階 | ||
| 空調 | 無し | OAフロア | スケルトン |
| EV | 1 基 | トイレ | 男女共用・室内 |
| 駐車場 | 無し | 24時間使用 | 使用可 |
| 耐震 | 旧耐震基準 | 機械警備 | 無し |
募集概要
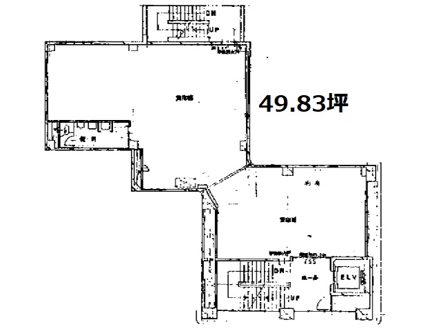
| 階数 | 2階 |
|---|---|
| 坪数 | 49.83坪 |
| 用途 | 店舗 |
| 月額(賃料+共益費) (税別) | 872,000円 |
| 坪単価(賃料+共益費) (税別) | 17,499円/坪 |
| 賃料(税別) |
700,000円 (14,048円/坪) |
| 共益費(税別) |
172,000円 (3,452円/坪) |
| 敷金 | 10ヶ月 |
| 礼金 | 無し |
| 償却 | 無し |
| 入居可能日 | 相談 |
| 空室確認日 | 2025/11/19 |









