文化エステート四谷ビル
| 物件名 | 文化エステート四谷ビル | ||
|---|---|---|---|
| 住所 | 東京都新宿区四谷3-5 | ||
| 最寄駅 | |||
| 竣工年 | 1962年4月 | ||
| 規模 | 地上7階 地下1階 | ||
| 空調 | 個別空調 | OAフロア | OAフロア / スケルトン |
| EV | 2 基 | トイレ | 男女別・室外 |
| 駐車場 | 無し | 24時間使用 | 使用可 |
| 耐震 | 耐震補強済 | 機械警備 | 有り |
募集概要
| 階数 |
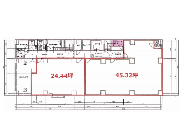
B1階
スケルトン
|
|---|---|
| 坪数 | 24.44坪 |
| 用途 | 店舗 |
| 月額(賃料+共益費) (税別) | 相談 |
| 坪単価(賃料+共益費) (税別) | 相談 |
| 賃料(税別) | 相談 |
| 共益費(税別) | 賃料に含む |
| 敷金 | 15ヶ月 |
| 礼金 | 無し |
| 償却 | 無し |
| 入居可能日 | 即日 |
| 空室確認日 | 2026/04/15 |









