肥後橋第21松屋ビル
| 物件名 | 肥後橋第21松屋ビル | ||
|---|---|---|---|
| 住所 | 大阪府大阪市西区江戸堀1-10-1 | ||
| 最寄駅 | |||
| 竣工年 | 2002年7月 | ||
| 規模 | 地上11階 地上1階 | ||
| 空調 | 個別空調 | OAフロア | OAフロア |
| EV | 1 基 | トイレ | 男女別・室外 |
| 駐車場 | 無し | 24時間使用 | 使用可 |
| 耐震 | 新耐震基準 | 機械警備 | 有り |
募集概要
| 階数 |
5階
501
|
|---|---|
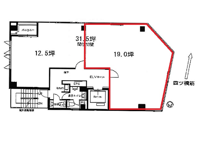
| 坪数 | 19坪 |
| 用途 | 事務所 |
| 月額(賃料+共益費) (税別) | 285,000円 |
| 坪単価(賃料+共益費) (税別) | 15,000円/坪 |
| 賃料(税別) |
247,000円 (13,000円/坪) |
| 共益費(税別) |
38,000円 (2,000円/坪) |
| 敷金 | 800,000円 |
| 礼金 | 600000円 |
| 償却 | 敷引 |
| 入居可能日 | 2026年4月 |
| 空室確認日 | 2025/11/04 |
その他空室情報
| 階数 | 坪数 |
賃料 (税別) |
共益費 (税別) |
敷金・保証金 | 入居日 | 詳細 |
お気に入り 追加 |
|---|---|---|---|---|---|---|---|
|
2階
201・202
|
31.5坪 |
409,500円 (13,000円/坪) |
63,000円 (2,000円/坪) |
1,400,000円 | 相談 |
|
|









