こだわり条件で再検索

  • 大阪メトロ四つ橋線肥後橋駅
変更
坪数
(面積)
賃料+共益費
賃料
(坪当たり)
最寄駅
徒歩
築年数




快適


安全


お電話でのお問い合わせ
06-6147-9791

肥後橋第21松屋ビル

物件No 0018701
住所 大阪府大阪市西区江戸堀1-10-1
最寄駅
竣工年 2002年7月
規模 地上11階 地上1階
階数 坪数 賃料
(税別)
共益費
(税別)
敷金・保証金 入居日 詳細 お気に入り
追加
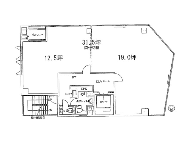
2階
201・202
31.5坪 409,500円
(13,000円/坪)
63,000円
(2,000円/坪)
1,400,000円 相談 お問合せ お気に入り追加
6階
602
12.5坪 162,500円
(13,000円/坪)
25,000円
(2,000円/坪)
600,000円 2026年7月 お問合せ お気に入り追加

担当者のコメント

四ツ橋沿いに面しているオフィスビル。
四ツ橋筋沿いに面しており、四つ橋線肥後橋駅徒歩2分の立地。
1階にカフェ、場所説明もしやすく周辺環境も便利な環境です。
2000年以降に建てられたオフィスになり、エントランス、共用部
室内も綺麗なオフィスビルです。

Copyright(C) Quick Consulting Co.,LTD. All right reserved.