松岡セントラルビル
| 物件名 | 松岡セントラルビル | ||
|---|---|---|---|
| 住所 | 東京都新宿区西新宿1-7-1 | ||
| 最寄駅 | |||
| 竣工年 | 1969年12月 | ||
| 規模 | 地上9階 地下4階 | ||
| 空調 | セントラル空調 | OAフロア | OAフロア | 
| EV | 4 基 | トイレ | 男女別・室外 | 
| 駐車場 | 有り | 24時間使用 | 使用可 | 
| 耐震 | 新耐震基準相当 | 機械警備 | 無し | 
募集概要
| 階数 | 3階 | 
|---|---|
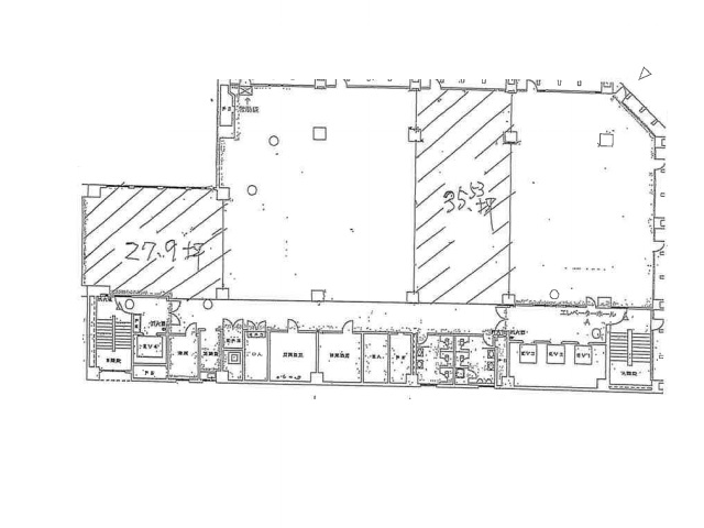
| 坪数 | 35.53坪 | 
| 用途 | 事務所 | 
| 月額(賃料+共益費) (税別) | 1,136,960円 | 
| 坪単価(賃料+共益費) (税別) | 32,000円/坪 | 
| 賃料(税別) | 959,310円 (27,000円/坪) | 
| 共益費(税別) | 177,650円 (5,000円/坪) | 
| 敷金 | 10ヶ月 | 
| 礼金 | 無し | 
| 償却 | 無し | 
| 入居可能日 | 即日 | 
| 空室確認日 | 2025/10/16 | 
その他空室情報
| 階数 | 坪数 | 賃料 (税別) | 共益費 (税別) | 敷金・保証金 | 入居日 | 詳細 | お気に入り 追加 | 
|---|---|---|---|---|---|---|---|
| 3階 | 27.9坪 | 697,500円 (25,000円/坪) | 139,500円 (5,000円/坪) | 10ヶ月 | 即日 |   |   | 




 
					
 
							 
							 
							 
							 
							 
							 
							 
							 
							 
							 
							

 
						 
											
 
											 
											 
											 エリア検索
					エリア検索
				 
                



