タイム24ビル
| 物件名 | タイム24ビル | ||
|---|---|---|---|
| 住所 | 東京都江東区青海2-4-32 | ||
| 最寄駅 | |||
| 竣工年 | 1996年1月 | ||
| 規模 | 地上19階 地下1階 | ||
| 空調 | セントラル空調 | OAフロア | OAフロア |
| EV | 15 基 | トイレ | 男女別・室外 |
| 駐車場 | 有り | 24時間使用 | 使用可 |
| 耐震 | 新耐震基準 | 機械警備 | 有り |
募集概要
| 階数 |
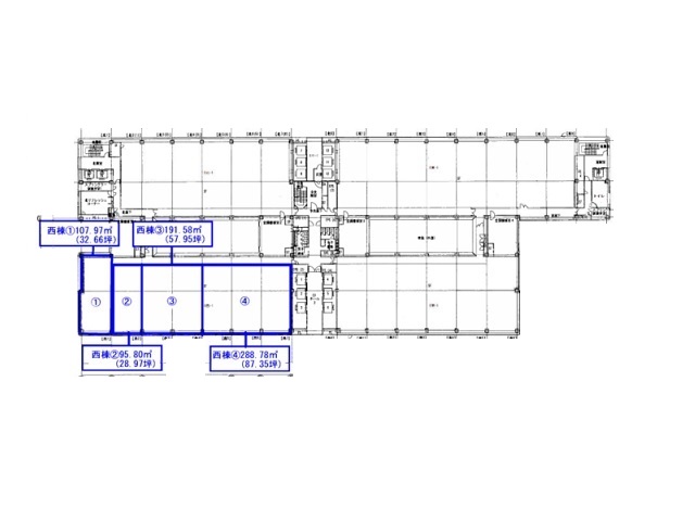
6階
西棟①
|
|---|---|
| 坪数 | 28.97坪 |
| 用途 | 事務所 |
| 月額(賃料+共益費) (税別) | 相談 |
| 坪単価(賃料+共益費) (税別) | 相談 |
| 賃料(税別) | 相談 |
| 共益費(税別) | 賃料に含む |
| 敷金 | 相談 |
| 礼金 | 無し |
| 償却 | 無し |
| 入居可能日 | 相談 |
| 空室確認日 | 2025/11/07 |
その他空室情報
| 階数 | 坪数 |
賃料 (税別) |
共益費 (税別) |
敷金・保証金 | 入居日 | 詳細 |
お気に入り 追加 |
|---|---|---|---|---|---|---|---|
|
4階
西棟
|
64.58坪 | 相談 | 賃料に含む | 相談 | 即日 |
|
|
| 4階 | 87.35坪 | 相談 | 賃料に含む | 相談 | 相談 |
|
|
|
7階
北棟
|
86.92坪 | 相談 | 賃料に含む | 相談 | 即日 |
|
|
|
7階
南
|
28.97坪 | 相談 | 賃料に含む | 相談 | 相談 |
|
|
|
7階
東
|
158.67坪 | 相談 | 賃料に含む | 相談 | 相談 |
|
|
|
7階
南
|
58.37坪 | 相談 | 賃料に含む | 相談 | 相談 |
|
|
| 7階 | 115.61坪 | 相談 | 賃料に含む | 相談 | 相談 |
|
|
|
8階
東棟
|
243.56坪 | 相談 | 賃料に含む | 相談 | 相談 |
|
|
|
10階
北
|
107.52坪 | 相談 | 賃料に含む | 相談 | 即日 |
|
|
|
10階
西①
|
64.58坪 | 相談 | 賃料に含む | 相談 | 即日 |
|
|
| 10階 | 28.97坪 | 相談 | 賃料に含む | 相談 | 相談 |
|
|









