貸事務所・レンタルオフィス・オフィス移転ならQuickService
担当者のコメント
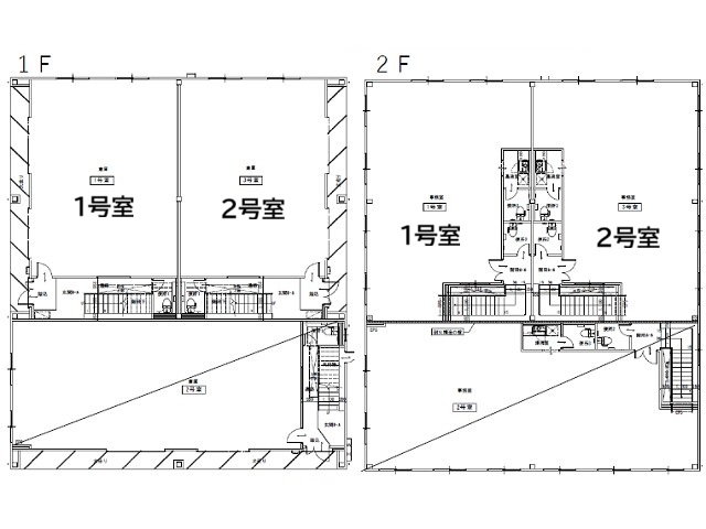
福岡市その他エリアにある三弘エアポートビルⅡは、1995年8月に建てられた地上2階の建物です。新耐震構造で安心です。また、24時間の使用可能となっています。事務所、倉庫・工場をお探しの方にはぴったりの物件です。最寄り駅はJR鹿児島本線竹下駅です。個別空調を完備しています。また平置きの駐車場も完備しています。
宮崎にあるひむかワールドビルは、2018年6月に建てられた地上6階の建物です。新耐震構造かつ機械警備もあり安心です。また、24時間の使用可能となっています。事務所をお探しの方にはぴったりの物件です。最寄り駅はJR日豊本線宮崎駅です。OAフロア、個別空調、エレベータ2基を完備しています。また駐車場も完備しています。
小倉エリアにあるオフィスパレア宗像Ⅰは、2025年1月に建てられた地上2階の建物です。新耐震構造かつ機械警備もあり安心です。事務所、倉庫・工場をお探しの方にはぴったりの物件です。最寄り駅はJR鹿児島本線東郷駅です。OAフロア、個別空調を完備しています。また平置きの駐車場も完備しています。
小倉エリアにあるオフィスパレア八幡西Ⅰ A棟は、2024年10月に建てられた地上2階の建物です。新耐震構造かつ機械警備もあり安心です。事務所、倉庫・工場をお探しの方にはぴったりの物件です。最寄り駅は筑豊電気鉄道楠橋駅です。OAフロア、個別空調を完備しています。また平置きの駐車場も完備しています。
小倉エリアにあるオフィスパレア八幡西Ⅰ B棟は、2024年10月に建てられた地上2階の建物です。新耐震構造かつ機械警備もあり安心です。事務所、倉庫・工場をお探しの方にはぴったりの物件です。最寄り駅は筑豊電気鉄道楠橋駅です。OAフロア、個別空調を完備しています。また平置きの駐車場も完備しています。
仙台物流センターは、1968年11月に建てられた地上階の建物です。倉庫・工場、事務所をお探しの方にはぴったりの物件です。最寄り駅はJR仙石線福田町駅です。
福岡市その他エリアにあるシークエンス原は、2025年3月に建てられた地上3階の建物です。新耐震構造で安心です。事務所、店舗をお探しの方にはぴったりの物件です。最寄り駅は福岡市営地下鉄七隈線野芥駅、福岡市営地下鉄七隈線賀茂駅、福岡市営地下鉄七隈線次郎丸駅と交通の便の良い立地です。また平置きの駐車場も完備しています。
小倉エリアにある清原ビルは、1978年に建てられた地上5階の建物です。旧耐震構造です。また、24時間の使用可能となっています。店舗をお探しの方にはぴったりの物件です。最寄り駅はJR香椎線酒殿駅、JR香椎線須恵駅です。また駐車場も完備しています。
岩手にあるサンサは、2006年11月に建てられた地上2階の建物です。新耐震構造で安心です。店舗をお探しの方にはぴったりの物件です。最寄り駅はJR東北本線岩手飯岡駅です。エレベータ2基を完備しています。また駐車場も完備しています。
進化するウォーターフロント。「アイランドシティ 香椎照葉」のオフィス物件です。自然に囲まれた素晴らしい環境でビジネスを展開する、最新オフィスビルのご紹介です。こちらのエリアで物件をお探しのお客様にはぜひ一度ご検討頂きたい物件になります。