こだわり条件で再検索

坪数
(面積)
賃料+共益費
賃料+共益費
(坪当たり)
最寄駅
徒歩
築年数




用途





快適


安全


の賃貸オフィス・賃貸事務所 6559 棟 ( 15891 区画)

物件No 0000819
住所 神奈川県横浜市神奈川区新浦島町1-1-32
最寄駅
竣工年 1993年11月
規模 地上18階 地下1階
階数 坪数 賃料+共益費
(坪単価)
敷金・保証金 用途 入居日 詳細 お気に入り
追加
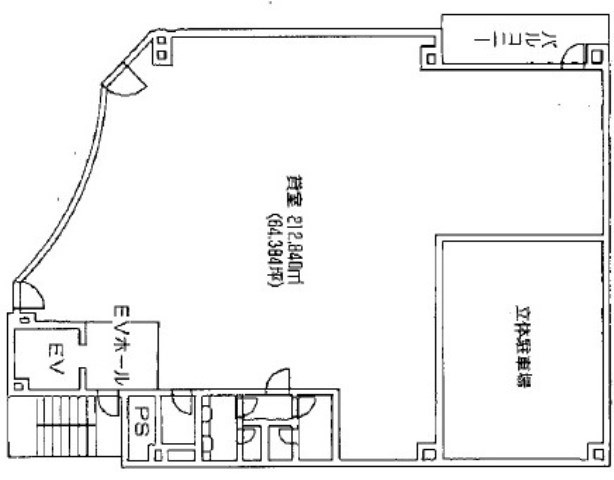
3階
(申)低層棟③
213.87坪 相談 12ヶ月
事務所
その他
即日 お問合せ お気に入り追加
5階
申込有
24.51坪 相談 12ヶ月
事務所
その他
相談 お問合せ お気に入り追加
5階
申込有
36.19坪 相談 12ヶ月
事務所
その他
相談 お問合せ お気に入り追加
5階
ABC
399.4坪 相談 12ヶ月
事務所
その他
相談 お問合せ お気に入り追加
9階
BC
111.51坪 相談 12ヶ月
事務所
即日 お問合せ お気に入り追加

担当者のコメント

様々な施設を備えた大型オフィスビルです。食堂、カフェ、貸会議室、コンビニ、みずほ銀行ATMなどビジネスを支援する施設が充実しております。ビルスペックも高いため、駅からはやや離れているものの快適にご利用いただけます。眺望良好(富士山が見えます!)フレキシブルなレイアウトが可能なハイスペックタワーオフィス!

物件No 0034510
住所 東京都立川市錦町3-6-6
最寄駅
竣工年 1987年3月
規模 地上8階 地下1階
階数 坪数 賃料+共益費
(坪単価)
敷金・保証金 用途 入居日 詳細 お気に入り
追加
2階
A
83.5坪 743,150円(税別)
(8,900円/坪)
6ヶ月
事務所
相談 お問合せ お気に入り追加
4階
40.66坪 387,273円(税別)
(9,525円/坪)
6ヶ月
事務所
即日 お問合せ お気に入り追加

担当者のコメント

立川エリアのオフィスビルです。
空調等のリニューアルも行っており、メンテナンスも充分です。
賃料も相場より抑えられる物件です。

階数 坪数 賃料+共益費
(坪単価)
敷金・保証金 用途 入居日 詳細 お気に入り
追加
3階 64.38坪 相談 12ヶ月
事務所
2026年6月 お問合せ お気に入り追加
4階 64.38坪 相談 12ヶ月
事務所
2026年6月 お問合せ お気に入り追加

担当者のコメント

中区上幟町の中規模サイズの貸事務所
広島駅から徒歩6分です。新幹線、JR線、路面電車が利用でき出張や営業に便利です
1993年竣工の新耐震ビルです。城南通りに面し、上柳橋西詰交差点の角地に位置しています。1階にコンビニが入居し、曲線の外観が特徴的で来訪者にも分かりやすいです。個別空調や機械警備等設備は整っています。

物件No 0009620
住所 東京都渋谷区渋谷3-1-9
最寄駅
竣工年 1988年4月
規模 地上6階 地下1階
階数 坪数 賃料+共益費
(坪単価)
敷金・保証金 用途 入居日 詳細 お気に入り
追加
6階 22.26坪 422,940円(税別)
(19,000円/坪)
6ヶ月
事務所
2025年11月 お問合せ お気に入り追加

担当者のコメント

渋谷エリアにある渋谷第3KKビルは、1988年4月に建てられた地上6階地下1階の建物です。新耐震構造で安心です。また、24時間の使用可能となっています。事務所をお探しの方にはぴったりの物件です。
最寄り駅はJR山手線渋谷駅、東京メトロ銀座線表参道駅、東急東横線代官山駅と交通の便の良い立地です。最短の駅からは徒歩8分と駅から近いことも魅力です。個別空調、エレベータ1基を完備しています。

物件No 0030707
住所 広島県福山市霞町1-1-1
最寄駅
竣工年 1970年9月
規模 地上8階
階数 坪数 賃料+共益費
(坪単価)
敷金・保証金 用途 入居日 詳細 お気に入り
追加
5階
501
31.13坪 相談 12ヶ月
事務所
即日 お問合せ お気に入り追加
6階
601-1
15.83坪 相談 12ヶ月
事務所
即日 お問合せ お気に入り追加
6階
602
26.6坪 相談 12ヶ月
事務所
即日 お問合せ お気に入り追加
6階
605
40坪 相談 12ヶ月
事務所
即日 お問合せ お気に入り追加
6階
601-2
15.3坪 相談 12ヶ月
事務所
即日 お問合せ お気に入り追加
7階
708
9.2坪 相談 12ヶ月
事務所
即日 お問合せ お気に入り追加
7階
702
55.3坪 相談 12ヶ月
事務所
即日 お問合せ お気に入り追加

担当者のコメント

地上8階建ての大型オフィスビル
JR山陽本線「福山駅」より徒歩約8分の立地です。
築年数は少々経過していますが耐震補強済みです。ビルの1~3階部分には銀行、他フロアにも優良企業が入居しています。また、OAフロアの設置や光ファイバーも対応しており良好なオフィス環境です。

物件No 0013032
住所 茨城県水戸市南町2-6-13
最寄駅
竣工年 1989年2月
規模 地上8階 地下1階
階数 坪数 賃料+共益費
(坪単価)
敷金・保証金 用途 入居日 詳細 お気に入り
追加
2階 56.81坪 相談 相談
事務所
店舗
即日 お問合せ お気に入り追加
2階 40.55坪 相談 相談
事務所
即日 お問合せ お気に入り追加
2階 41.72坪 相談 相談
事務所
即日 お問合せ お気に入り追加

担当者のコメント

茨城にある損保ジャパン日本興亜水戸ビルは、1989年2月に建てられた地上8階地下1階の建物です。新耐震構造かつ機械警備もあり安心です。また、24時間の使用可能となっています。事務所、店舗をお探しの方にはぴったりの物件です。
最寄り駅はJR常磐線水戸駅です。最短の駅からは徒歩8分と駅から近いことも魅力です。個別空調、エレベータ3基を完備しています。また駐車場も完備しています。

物件No 0021257
住所 大阪府大阪市中央区本町橋2-26
最寄駅
竣工年 要確認
規模 地上8階 地上階
階数 坪数 賃料+共益費
(坪単価)
敷金・保証金 用途 入居日 詳細 お気に入り
追加
4階 18.41坪 184,100円(税別)
(10,000円/坪)
12ヶ月
事務所
即日 お問合せ お気に入り追加

担当者のコメント

谷町・OBPエリアにある内本町ヤマトビルは、要確認に建てられた地上8階地上階の建物です。新耐震構造かつ機械警備もあり安心です。また、24時間の使用可能となっています。事務所をお探しの方にはぴったりの物件です。
最寄り駅は大阪メトロ中央線堺筋本町駅です。最短の駅からは徒歩8分と駅から近いことも魅力です。個別空調を完備しています。また駐車場も完備しています。

物件No 0032482
住所 愛知県名古屋市中区栄1-29-19
最寄駅
竣工年 1993年2月
規模 地上8階
階数 坪数 賃料+共益費
(坪単価)
敷金・保証金 用途 入居日 詳細 お気に入り
追加
7階
1フロア
85.56坪 898,380円(税別)
(10,500円/坪)
12ヶ月
事務所
即日 お問合せ お気に入り追加

担当者のコメント

栄1丁目貸事務所。
若宮大通沿い角地に位置し、ガラス張りでスタイリッシュな外観。
各種支店や営業所、お車をご利用の企業様にもオススメです。

物件No 0036483
住所 東京都江東区冬木13-1
最寄駅
竣工年 1997年1月
規模 地上5階
階数 坪数 賃料+共益費
(坪単価)
敷金・保証金 用途 入居日 詳細 お気に入り
追加
3階
302
13.92坪 200,000円(税別)
(14,368円/坪)
無し
その他
即日 お問合せ お気に入り追加
5階
501
18.82坪 250,000円(税別)
(13,284円/坪)
無し
その他
2026年1月 お問合せ お気に入り追加

担当者のコメント

事務所も可能なマンションです。新しい働き方に如何でしょうか。
在宅勤務・テレワークにおすすめです。
定期借家でマンスリー住居可能な物件となりますのでお気軽にお問い合わせください。

物件No 0038269
住所 秋田県秋田市中通4-1-2
最寄駅
竣工年 1993年6月
規模 地上6階 地下1階
階数 坪数 賃料+共益費
(坪単価)
敷金・保証金 用途 入居日 詳細 お気に入り
追加
4階
G
3.68坪 60,000円(税別)
(16,304円/坪)
3ヶ月
事務所
2025年12月 お問合せ お気に入り追加
4階 6.8坪 75,000円(税別)
(11,029円/坪)
3ヶ月
事務所
即日 お問合せ お気に入り追加
4階
C
11.05坪 110,500円(税別)
(10,000円/坪)
3ヶ月
事務所
即日 お問合せ お気に入り追加
5階
G
3.68坪 60,000円(税別)
(16,304円/坪)
3ヶ月
事務所
即日 お問合せ お気に入り追加

担当者のコメント

中央通り沿い角地の物件です。窓面が大きく室内は明るく開放感があります。共用ラウンジなどもあり設備が充実しています。

Copyright(C) Quick Consulting Co.,LTD. All right reserved.