こだわり条件で再検索

坪数
(面積)
賃料+共益費
賃料+共益費
(坪当たり)
最寄駅
徒歩
築年数




用途





快適


安全


の賃貸オフィス・賃貸事務所 6542 棟 ( 15871 区画)

階数 坪数 賃料+共益費
(坪単価)
敷金・保証金 用途 入居日 詳細 お気に入り
追加
4階 22.42坪 相談 10ヶ月
事務所
即日 お問合せ お気に入り追加

担当者のコメント

福島区エリアにある中央ビルは、1989年8月に建てられた地上5階の建物です。新耐震構造かつ機械警備もあり安心です。また、24時間の使用可能となっています。事務所をお探しの方にはぴったりの物件です。
最寄り駅は大阪メトロ千日前線玉川駅、JR大阪環状線野田駅、大阪メトロ千日前線阿波座駅、京阪中之島線中之島駅、大阪メトロ中央線阿波座駅と交通の便の良い立地です。最短の駅からは徒歩5分と駅から近いことも魅力です。個別空調、エレベータ1基を完備しています。また駐車場も完備しています。

物件No 0018500
住所 東京都台東区柳橋2-19-6
最寄駅
竣工年 1987年5月
規模 地上12階 地下1階
階数 坪数 賃料+共益費
(坪単価)
敷金・保証金 用途 入居日 詳細 お気に入り
追加
1階
申込有
246.06坪 相談 相談
事務所
2025年11月 お問合せ お気に入り追加

担当者のコメント

浅草橋・蔵前エリアにある柳橋ファーストビルは、1987年5月に建てられた地上12階地下1階の建物です。新耐震構造かつ機械警備もあり安心です。また、24時間の使用可能となっています。事務所をお探しの方にはぴったりの物件です。
最寄り駅は都営浅草線浅草橋駅、JR中央・総武線浅草橋駅、JR中央・総武線両国駅と交通の便の良い立地です。最短の駅からは徒歩5分と駅から近いことも魅力です。OAフロア、セントラル空調、エレベータ4基を完備しています。また機械式の駐車場も完備しています。

物件No 0009910
住所 東京都渋谷区神宮前4-4-13
最寄駅
竣工年 1990年10月
規模 地上4階
階数 坪数 賃料+共益費
(坪単価)
敷金・保証金 用途 入居日 詳細 お気に入り
追加
3階 45.37坪 相談 12ヶ月
事務所
相談 お問合せ お気に入り追加

担当者のコメント

原宿・代々木・初台エリアにある神宮前柴田ビルは、1990年10月に建てられた地上4階の建物です。新耐震構造で安心です。また、24時間の使用可能となっています。事務所をお探しの方にはぴったりの物件です。
最寄り駅は東京メトロ銀座線表参道駅、東京メトロ千代田線表参道駅、東京メトロ半蔵門線表参道駅と交通の便の良い立地です。最短の駅からは徒歩5分と駅から近いことも魅力です。個別空調、エレベータ1基を完備しています。

階数 坪数 賃料+共益費
(坪単価)
敷金・保証金 用途 入居日 詳細 お気に入り
追加
2階 259.19坪 相談 相談
事務所
相談 お問合せ お気に入り追加

担当者のコメント

1フロア260坪、硬派な雰囲気のオフィスビルです。周辺の雰囲気も静かで落ち着いております。コの字型の貸室形状で、扉も4つございますので、部署を分けたり、大きな会議室を設けたりするのに都合が良さそうです。

階数 坪数 賃料+共益費
(坪単価)
敷金・保証金 用途 入居日 詳細 お気に入り
追加
2階
フルセットアップ
45坪 相談 相談
事務所
即日 お問合せ お気に入り追加
6階 45坪 相談 相談
事務所
2026年4月 お問合せ お気に入り追加

担当者のコメント

ステータスなど魅力の多いハイグレードオフィスビルです。執務スペースは無柱空間でレイアウトも考えやすいです。最寄り駅は岩本町駅でJR線、日比谷線、つくばエクスプレスが使える秋葉原駅も近い距離です。

物件No 0025928
住所 東京都中央区日本橋大伝馬町14-15
最寄駅
竣工年 1991年8月
規模 地上9階 地下2階
階数 坪数 賃料+共益費
(坪単価)
敷金・保証金 用途 入居日 詳細 お気に入り
追加
8階 170.27坪 相談 12ヶ月
事務所
相談 お問合せ お気に入り追加

担当者のコメント

緑通り沿い角地の物件です。3面採光で室内は明るく開放感があります。複数駅から徒歩圏内で設備もハイグレードで快適にご利用できます。

物件No 0016358
住所 東京都千代田区大手町2-1-1
最寄駅
竣工年 1994年2月
規模 地上27階 地下5階
階数 坪数 賃料+共益費
(坪単価)
敷金・保証金 用途 入居日 詳細 お気に入り
追加
1階
申込有
230.42坪 相談 12ヶ月
事務所
2026年6月 お問合せ お気に入り追加
2階
申込有
240.59坪 相談 12ヶ月
事務所
2026年6月 お問合せ お気に入り追加
5階
③申込有
118.51坪 相談 12ヶ月
事務所
2026年6月 お問合せ お気に入り追加
5階
①申込有
131.52坪 相談 12ヶ月
事務所
2026年6月 お問合せ お気に入り追加
7階
申込有
47.02坪 相談 12ヶ月
事務所
即日 お問合せ お気に入り追加
17階
申込有
370坪 相談 12ヶ月
事務所
2026年6月 お問合せ お気に入り追加

担当者のコメント

丸の内・大手町・有楽町・霞ヶ関エリアにある大成大手町ビル(旧:大手町野村ビル)は、1994年2月に建てられた地上27階地下5階の建物です。新耐震構造かつ機械警備もあり安心です。また、24時間の使用可能となっています。事務所をお探しの方にはぴったりの物件です。
最寄り駅は東京メトロ丸ノ内線大手町駅、東京メトロ東西線大手町駅、JR山手線東京駅、JR京浜東北線東京駅と交通の便の良い立地です。最短の駅からは徒歩1分と駅から近いことも魅力です。OAフロア、セントラル空調、エレベータ12基を完備しています。また駐車場も完備しています。

階数 坪数 賃料+共益費
(坪単価)
敷金・保証金 用途 入居日 詳細 お気に入り
追加
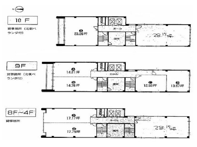
9階
902
14.78坪 相談 相談
事務所
即日 お問合せ お気に入り追加

担当者のコメント

静かなオフィス環境をお探しの企業様にオススメのビル
大阪市営地下鉄御堂筋線「西中島南方駅」から徒歩5分、地下鉄御堂筋線「新大阪」駅から徒歩6分の立地
築年数は経っておりますが、清掃管理が行き届いておりエントランス・共用部ともに清潔感がありオススメの物件です。

階数 坪数 賃料+共益費
(坪単価)
敷金・保証金 用途 入居日 詳細 お気に入り
追加
8階 21.5坪 236,500円(税別)
(11,000円/坪)
10ヶ月
事務所
相談 お問合せ お気に入り追加

担当者のコメント

上本町NEXTAGEビルは、鶴橋駅から徒歩4分、千日前通に面した賃貸オフィスビルです。

物件No 0014518
住所 東京都千代田区岩本町3-11-6
最寄駅
竣工年 2010年1月
規模 地上8階
階数 坪数 賃料+共益費
(坪単価)
敷金・保証金 用途 入居日 詳細 お気に入り
追加
2階 131.25坪 相談 相談
事務所
2026年1月 お問合せ お気に入り追加
4階 131.25坪 相談 相談
事務所
2026年1月 お問合せ お気に入り追加
5階 131.25坪 相談 相談
事務所
2026年1月 お問合せ お気に入り追加
6階 131.25坪 相談 相談
事務所
2026年1月 お問合せ お気に入り追加

担当者のコメント

ガラスのカーテンウォールの外観。エントランスオートロックの為、セキュリティー面も充実しております。柳原通り沿いの立地で、周辺はオフィスビルが立ち並ぶエリア。

Copyright(C) Quick Consulting Co.,LTD. All right reserved.