こだわり条件で再検索

坪数
(面積)
賃料+共益費
賃料+共益費
(坪当たり)
最寄駅
徒歩
築年数




用途





快適


安全


の賃貸オフィス・賃貸事務所 6069 棟 ( 15045 区画)

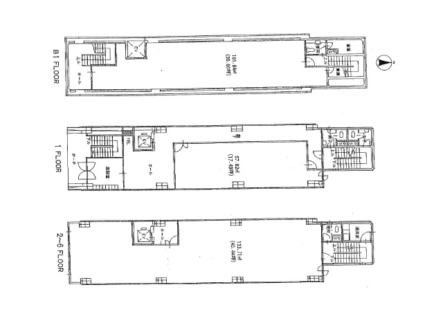
物件No 0036683
住所 京都府京都市下京区五条通室町西入ル東錺屋町171
最寄駅
竣工年 1973年
規模 地上6階 地下1階
階数 坪数 賃料+共益費
(坪単価)
敷金・保証金 用途 入居日 詳細 お気に入り
追加
3階 40坪 相談 1,500,000円
事務所
即日 お問合せ お気に入り追加

担当者のコメント

京都駅前エリアにある高橋第十二ビルは、1973年に建てられた地上6階地下1階の建物です。旧耐震構造です。事務所をお探しの方にはぴったりの物件です。
最寄り駅は京阪本線清水五条駅、京都市営地下鉄烏丸線五条駅、京都市営地下鉄烏丸線四条駅、阪急京都本線烏丸駅、阪急京都本線大宮駅と交通の便の良い立地です。最短の駅からは徒歩3分と駅から近いことも魅力です。エレベータ1基を完備しています。また駐車場も完備しています。

物件No 0043178
住所 東京都港区赤坂8-5-40
最寄駅
竣工年 1973年
規模 地上7階 地下1階
※レンタルオフィスの募集状況は流動的なため下記は仮表示です。最新の募集状況はお問合せ下さい。
※また、レンタルオフィスの面積は仮の数値です。実際の面積とは異なりますのでご注意ください
階数 坪数 賃料+共益費
(坪単価)
敷金・保証金 用途 入居日 詳細 お気に入り
追加
2階
250
21.65坪 550,000円(税別)
(25,404円/坪)
3ヶ月
事務所
レンタルオフィス
即日 お問合せ お気に入り追加

担当者のコメント

赤坂・青山・六本木エリアにあるPEGSUS AOYAMA (ペガサス青山)は、1973年に建てられた地上7階地下1階の建物です。耐震補強済で機械警備もあります。また、24時間の使用可能となっています。事務所、レンタルオフィスをお探しの方にはぴったりの物件です。
最寄り駅は東京メトロ半蔵門線青山一丁目駅です。最短の駅からは徒歩2分と駅から近いことも魅力です。個別空調、エレベータ2基を完備しています。

物件No 0011228
住所 東京都新宿区高田馬場2-14-2
最寄駅
竣工年 1972年9月
規模 地上11階 地下1階
階数 坪数 賃料+共益費
(坪単価)
敷金・保証金 用途 入居日 詳細 お気に入り
追加
3階
301
148.5坪 2,673,000円(税別)
(18,000円/坪)
6ヶ月
事務所
2026年6月 お問合せ お気に入り追加
7階
706
17坪 238,000円(税別)
(14,000円/坪)
6ヶ月
事務所
2026年4月 お問合せ お気に入り追加
9階
906
17坪 238,000円(税別)
(14,000円/坪)
6ヶ月
事務所
2026年4月 お問合せ お気に入り追加

担当者のコメント

早稲田通り沿いの物件です。看板が多く視認性が良いです。1フロア約148坪ほどありますが、募集時期によっては分割した小型フロアもございます。

物件No 0013349
住所 静岡県静岡市葵区昭和町9-5
最寄駅
竣工年 1972年9月
規模 地上8階
階数 坪数 賃料+共益費
(坪単価)
敷金・保証金 用途 入居日 詳細 お気に入り
追加
2階
1フロア
56.93坪 284,000円(税別)
(4,989円/坪)
相談
事務所
即日 お問合せ お気に入り追加
3階
西
19.36坪 109,000円(税別)
(5,630円/坪)
5ヶ月
事務所
即日 お問合せ お気に入り追加
6階
1フロア
58.55坪 334,000円(税別)
(5,705円/坪)
5ヶ月
事務所
即日 お問合せ お気に入り追加
8階
33.88坪 198,000円(税別)
(5,844円/坪)
5ヶ月
事務所
即日 お問合せ お気に入り追加

担当者のコメント

静岡エリア、昭和通り沿いに面したオフィスビルでございます。
JR東海道本線「静岡」駅より徒歩5分のアクセス。
築年数は経過していますが、アスベスト調査・耐震診断調査も実施されている物件です。

物件No 0006556
住所 東京都港区六本木5-2-1
最寄駅
竣工年 1972年9月
規模 地上9階 地下1階
階数 坪数 賃料+共益費
(坪単価)
敷金・保証金 用途 入居日 詳細 お気に入り
追加
6階
602
33坪 860,000円(税別)
(26,061円/坪)
6ヶ月
事務所
即日 お問合せ お気に入り追加

担当者のコメント

赤坂・青山・六本木エリアにあるほうらいやビルは、1972年9月に建てられた地上9階地下1階の建物です。旧耐震構造で機械警備もあります。また、24時間の使用可能となっています。事務所をお探しの方にはぴったりの物件です。
最寄り駅は東京メトロ日比谷線六本木駅、都営大江戸線六本木駅、東京メトロ千代田線乃木坂駅と交通の便の良い立地です。最短の駅からは徒歩2分と駅から近いことも魅力です。OAフロア、個別空調、エレベータ1基を完備しています。また駐車場も完備しています。

物件No 0024112
住所 東京都中央区銀座4-9-5
最寄駅
竣工年 1972年9月
規模 地上9階
階数 坪数 賃料+共益費
(坪単価)
敷金・保証金 用途 入居日 詳細 お気に入り
追加
5階
A先行
48.61坪 996,505円(税別)
(20,500円/坪)
10ヶ月
事務所
即日 お問合せ お気に入り追加

担当者のコメント

銀座エリアにある銀昭ビルは、1972年9月に建てられた地上9階の建物です。耐震補強済で機械警備もあります。また、24時間の使用可能となっています。事務所をお探しの方にはぴったりの物件です。
最寄り駅は東京メトロ日比谷線東銀座駅、東京メトロ銀座線銀座駅、都営浅草線東銀座駅と交通の便の良い立地です。最短の駅からは徒歩1分と駅から近いことも魅力です。OAフロア、個別空調、エレベータ1基を完備しています。

物件No 0045666
住所 神奈川県横浜市中区尾上町5-73
最寄駅
竣工年 1972年9月
規模 地上6階 地下1階
階数 坪数 賃料+共益費
(坪単価)
敷金・保証金 用途 入居日 詳細 お気に入り
追加
4階 22坪 253,000円(税別)
(11,500円/坪)
10ヶ月
事務所
店舗
即日 お問合せ お気に入り追加

担当者のコメント

関内駅から徒歩3分。馬車道駅も徒歩圏内である為、JRだけでなく、東横線直通のみなとみらい線も利用可能です。

物件No 0006719
住所 香川県高松市寿町1-1-12
最寄駅
竣工年 1972年9月
規模 地上9階 地下2階
階数 坪数 賃料+共益費
(坪単価)
敷金・保証金 用途 入居日 詳細 お気に入り
追加
2階 14.49坪 144,900円(税別)
(10,000円/坪)
6ヶ月
事務所
即日 お問合せ お気に入り追加
3階 28.22坪 282,200円(税別)
(10,000円/坪)
6ヶ月
事務所
即日 お問合せ お気に入り追加
3階 14.49坪 144,900円(税別)
(10,000円/坪)
6ヶ月
事務所
2026年8月 お問合せ お気に入り追加

担当者のコメント

地上9階建て大型オフィスビル
琴電琴平線「高松築港駅」より徒歩約2分の好立地です。
1972年9月竣工で、向かいには高松城跡が眺められます。周辺は、飲食店も多く人通りが多いです。館内設備は、個別空調、OAフロア採用、光ファイバーに対応しており快適にお仕事していただけます。

物件No 0004821
住所 東京都港区西新橋1-5-14
最寄駅
竣工年 1972年9月
規模 地上10階 地下1階
階数 坪数 賃料+共益費
(坪単価)
敷金・保証金 用途 入居日 詳細 お気に入り
追加
9階 60.3坪 相談 相談
事務所
即日 お問合せ お気に入り追加

担当者のコメント

外堀通り沿いの賃貸オフィス物件。
内幸町駅徒歩3分、新橋駅8分、霞が関駅7分、虎ノ門駅4分と複数路線利用可能な立地です。
港区西新橋住所、1フロア1テナント型の貸事務所物件です。外堀通り沿いに面し、複数路線利用可能なほか郵便局が隣接しており、便利な立地環境です。管理状況も良く、耐震補強工事がされている他エントランス・トイレ・空調のリニューアルと照明のLED化もされています。

物件No 0047231
住所 愛知県名古屋市名東区高社1-263
最寄駅
竣工年 1972年9月
規模 地上6階
階数 坪数 賃料+共益費
(坪単価)
敷金・保証金 用途 入居日 詳細 お気に入り
追加
2階
20.13坪 195,000円(税別)
(9,687円/坪)
10ヶ月
事務所
2026年3月 お問合せ お気に入り追加
3階
13.98坪 130,000円(税別)
(9,299円/坪)
10ヶ月
事務所
即日 お問合せ お気に入り追加

担当者のコメント

一社エリアの貸事務所。
東名高速道路名古屋IC付近、
地下鉄「一社」駅より徒歩1分とアクセス良好でございます。
トイレ・給湯室全面リニューアルされているのも嬉しいポイントです。

Copyright(C) Quick Consulting Co.,LTD. All right reserved.