こだわり条件で再検索

坪数
(面積)
賃料+共益費
賃料+共益費
(坪当たり)
最寄駅
徒歩
築年数




用途





快適


安全


の賃貸オフィス・賃貸事務所 6249 棟 ( 15393 区画)

階数 坪数 賃料+共益費
(坪単価)
敷金・保証金 用途 入居日 詳細 お気に入り
追加
4階 33.46坪 635,740円(税別)
(19,000円/坪)
8ヶ月
事務所
即日 お問合せ お気に入り追加
5階 33.46坪 635,740円(税別)
(19,000円/坪)
8ヶ月
事務所
即日 お問合せ お気に入り追加
7階 33.46坪 568,820円(税別)
(17,000円/坪)
8ヶ月
事務所
即日 お問合せ お気に入り追加
8階 33.46坪 635,740円(税別)
(19,000円/坪)
8ヶ月
事務所
即日 お問合せ お気に入り追加

担当者のコメント

日比谷通りに面し、内幸町駅徒歩2分と新橋駅徒歩5分で利用可能な物件です。1フロア1テナントタイプで他のテナントに気兼ねなく利用ができます。

物件No 0011397
住所 東京都新宿区四谷3-13-4
最寄駅
竣工年 1982年10月
規模 地上9階
階数 坪数 賃料+共益費
(坪単価)
敷金・保証金 用途 入居日 詳細 お気に入り
追加
3階
301
41.06坪 574,840円(税別)
(14,000円/坪)
2,000,000円
事務所
即日 お問合せ お気に入り追加
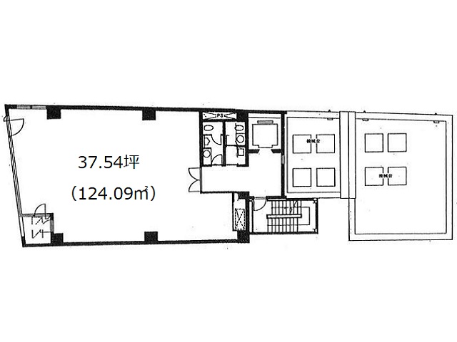
5階 37.54坪 525,560円(税別)
(14,000円/坪)
2,000,000円
事務所
即日 お問合せ お気に入り追加

担当者のコメント

新宿通り沿いのオフィス物件
四谷3丁目駅より徒歩2分ほど
新宿通りに面した視認性の良い賃貸オフィスビルです。室内は無柱形状でレイアウトの考えやすい物件です。1階は飲食店舗が入居しております。

5583 CMビル

物件No 0025552
住所 東京都中央区日本橋室町3-3-3
最寄駅
竣工年 1978年4月
規模 地上9階 地下1階
階数 坪数 賃料+共益費
(坪単価)
敷金・保証金 用途 入居日 詳細 お気に入り
追加
6階
A
77.2坪 相談 相談
事務所
即日 お問合せ お気に入り追加

担当者のコメント

日本橋本町・室町・三越前エリアにあるCMビルは、1978年4月に建てられた地上9階地下1階の建物です。また、24時間の使用可能となっています。事務所をお探しの方にはぴったりの物件です。
最寄り駅は東京メトロ銀座線三越前駅、JR総武本線新日本橋駅、JR山手線神田駅、東京メトロ日比谷線小伝馬町駅と交通の便の良い立地です。最短の駅からは徒歩1分と駅から近いことも魅力です。OAフロア、個別空調、エレベータ1基を完備しています。

物件No 0027962
住所 東京都品川区西五反田1-23-9
最寄駅
竣工年 1991年2月
規模 地上9階
階数 坪数 賃料+共益費
(坪単価)
敷金・保証金 用途 入居日 詳細 お気に入り
追加
7階 58.04坪 1,102,760円(税別)
(19,000円/坪)
12ヶ月
事務所
即日 お問合せ お気に入り追加

担当者のコメント

五反田・目黒エリアにあるりそな五反田ビルは、1991年2月に建てられた地上9階の建物です。新耐震構造かつ機械警備もあり安心です。また、24時間の使用可能となっています。事務所をお探しの方にはぴったりの物件です。
最寄り駅はJR山手線五反田駅、都営浅草線五反田駅、東急池上線五反田駅と交通の便の良い立地です。最短の駅からは徒歩4分と駅から近いことも魅力です。個別空調、エレベータ2基を完備しています。また駐車場も完備しています。

物件No 0023842
住所 東京都中央区銀座2-14-17
最寄駅
竣工年 1967年
規模 地上4階
階数 坪数 賃料+共益費
(坪単価)
敷金・保証金 用途 入居日 詳細 お気に入り
追加
1階 11.4坪 466,000円(税別)
(40,877円/坪)
6ヶ月
事務所
店舗
即日 お問合せ お気に入り追加
2階 17.4坪 619,000円(税別)
(35,575円/坪)
6ヶ月
事務所
店舗
即日 お問合せ お気に入り追加
3階 17.4坪 619,000円(税別)
(35,575円/坪)
6ヶ月
事務所
店舗
即日 お問合せ お気に入り追加

担当者のコメント

銀座エリアにある第2渡辺ビルは、1967年に建てられた地上4階の建物です。旧耐震構造です。また、24時間の使用可能となっています。事務所、店舗をお探しの方にはぴったりの物件です。
最寄り駅は都営浅草線東銀座駅、東京メトロ有楽町線銀座一丁目駅、東京メトロ日比谷線東銀座駅と交通の便の良い立地です。最短の駅からは徒歩4分と駅から近いことも魅力です。個別空調を完備しています。

5586 KSKビル

物件No 0014250
住所 東京都千代田区外神田5-1-15
最寄駅
竣工年 1989年12月
規模 地上8階
階数 坪数 賃料+共益費
(坪単価)
敷金・保証金 用途 入居日 詳細 お気に入り
追加
2階 39.4坪 748,600円(税別)
(19,000円/坪)
8ヶ月
事務所
即日 お問合せ お気に入り追加

担当者のコメント

蔵前橋通り沿いの物件です。複数駅徒歩圏内で便利な立地です。設備も充実しているので快適にご利用できます。

物件No 0024838
住所 東京都中央区晴海3-3-3
最寄駅
竣工年 1974年10月
規模 地上9階
階数 坪数 賃料+共益費
(坪単価)
敷金・保証金 用途 入居日 詳細 お気に入り
追加
7階 33.38坪 相談 10ヶ月
事務所
即日 お問合せ お気に入り追加
8階 93.78坪 相談 10ヶ月
事務所
即日 お問合せ お気に入り追加

担当者のコメント

築地・新富・月島エリアにある江間忠晴海ビルは、1974年10月に建てられた地上9階の建物です。耐震補強済です。また、24時間の使用可能となっています。事務所をお探しの方にはぴったりの物件です。
最寄り駅は都営大江戸線勝どき駅、東京メトロ有楽町線月島駅、都営大江戸線月島駅と交通の便の良い立地です。最短の駅からは徒歩7分と駅から近いことも魅力です。個別空調、エレベータ2基を完備しています。また駐車場も完備しています。

物件No 0012037
住所 東京都新宿区西新宿1-19-5
最寄駅
竣工年 1973年1月
規模 地上9階 地下1階
階数 坪数 賃料+共益費
(坪単価)
敷金・保証金 用途 入居日 詳細 お気に入り
追加
3階 116.08坪 相談 12ヶ月
事務所
即日 お問合せ お気に入り追加
8階 100.39坪 相談 12ヶ月
事務所
即日 お問合せ お気に入り追加

担当者のコメント

西新宿エリアにある第2明宝ビルは、1973年1月に建てられた地上9階地下1階の建物です。旧耐震構造で機械警備もあります。また、24時間の使用可能となっています。事務所をお探しの方にはぴったりの物件です。
最寄り駅はJR山手線新宿駅、JR埼京線新宿駅、JR中央線(快速)新宿駅、東京メトロ丸ノ内線新宿駅と交通の便の良い立地です。最短の駅からは徒歩5分と駅から近いことも魅力です。OAフロア、個別空調、エレベータ2基を完備しています。

物件No 0032764
住所 愛知県名古屋市中区丸の内1-17-29
最寄駅
竣工年 2010年2月
規模 地上12階
階数 坪数 賃料+共益費
(坪単価)
敷金・保証金 用途 入居日 詳細 お気に入り
追加
4階
1フロア
126.38坪 相談 12ヶ月
事務所
即日 お問合せ お気に入り追加

担当者のコメント

閑静でオフィス環境に適した丸の内一丁目、築浅好グレードオフィスビルです。
地下鉄鶴舞線・桜通線「丸の内」駅より徒歩2分。通勤にも好アクセス。
お洒落で落ち着いたエントランスで来訪者をお迎えいたします。

物件No 0018185
住所 東京都台東区蔵前3-15-7
最寄駅
竣工年 1988年12月
規模 地上5階 地下1階
階数 坪数 賃料+共益費
(坪単価)
敷金・保証金 用途 入居日 詳細 お気に入り
追加
3階
301
68.79坪 1,100,640円(税別)
(16,000円/坪)
10ヶ月
事務所
即日 お問合せ お気に入り追加
4階
401
69.09坪 1,105,440円(税別)
(16,000円/坪)
10ヶ月
事務所
即日 お問合せ お気に入り追加

担当者のコメント

角地立地で2面採光で室内は明るく開放感があります。設備も充実しているので快適にご利用できます。

Copyright(C) Quick Consulting Co.,LTD. All right reserved.