こだわり条件で再検索

キーワード
坪数
(面積)
賃料+共益費
賃料+共益費
(坪当たり)
最寄駅
徒歩
築年数




用途





快適


安全


[]を含むの賃貸オフィス・賃貸事務所 6574 棟 ( 15829 区画)

物件No 0001162
住所 神奈川県横浜市西区北幸2-6-26
最寄駅
竣工年 1989年11月
規模 地上8階 地下1階
階数 坪数 賃料+共益費
(坪単価)
敷金・保証金 用途 入居日 詳細 お気に入り
追加
2階 109.58坪 1,753,280円(税別)
(16,000円/坪)
12ヶ月
事務所
即日 お問合せ お気に入り追加
4階 151.8坪 2,428,800円(税別)
(16,000円/坪)
12ヶ月
事務所
即日 お問合せ お気に入り追加
8階 20.82坪 333,120円(税別)
(16,000円/坪)
12ヶ月
事務所
2026年1月 お問合せ お気に入り追加

担当者のコメント

通り沿い角地の物件です。設備が充実していて快適にご利用できます。

5532 ORビル

物件No 0011255
住所 東京都新宿区高田馬場3-23-3
最寄駅
竣工年 1991年12月
規模 地上10階 地下2階
階数 坪数 賃料+共益費
(坪単価)
敷金・保証金 用途 入居日 詳細 お気に入り
追加
10階
申込有
13.61坪 183,735円(税別)
(13,500円/坪)
4ヶ月
事務所
即日 お問合せ お気に入り追加

担当者のコメント

四谷・市ヶ谷・飯田橋エリアにあるORビルは、1991年12月に建てられた地上10階地下2階の建物です。新耐震構造かつ機械警備もあり安心です。また、24時間の使用可能となっています。事務所をお探しの方にはぴったりの物件です。
最寄り駅はJR山手線高田馬場駅、西武新宿線高田馬場駅、西武新宿線下落合駅と交通の便の良い立地です。最短の駅からは徒歩7分と駅から近いことも魅力です。OAフロア、個別空調、エレベータ1基を完備しています。

物件No 0027705
住所 千葉県柏市柏2-8-11
最寄駅
竣工年 1982年11月
規模 地上5階
階数 坪数 賃料+共益費
(坪単価)
敷金・保証金 用途 入居日 詳細 お気に入り
追加
3階 50.75坪 相談 相談
事務所
即日 お問合せ お気に入り追加

担当者のコメント

柏駅徒歩7分
貸室は柱もなく長方形に近い形のため、レイアウト効率が非常に良い物件です。
周辺は、飲食店やコンビニもございますので何かと便利です。

階数 坪数 賃料+共益費
(坪単価)
敷金・保証金 用途 入居日 詳細 お気に入り
追加
2階
セットアップ
29.6坪 900,000円(税別)
(30,405円/坪)
無し
事務所
相談 お問合せ お気に入り追加

担当者のコメント

国立競技場目の前の物件です。室内セットアップ仕様で移転時にかかる費用と時間を削減できます。

物件No 0002505
住所 広島県広島市中区鶴見町2-19
最寄駅
竣工年 1996年3月
規模 地上10階 地下1階
階数 坪数 賃料+共益費
(坪単価)
敷金・保証金 用途 入居日 詳細 お気に入り
追加
6階 108.47坪 相談 12ヶ月
事務所
即日 お問合せ お気に入り追加

担当者のコメント

中区鶴見町の10階建てオフィスビル
比治山下電停から徒歩7分です。少々距離はありますが、広島駅へアクセスしやすいです
1996年竣工の新耐震基準のビルです。平和大通りに面し、鶴見橋交差点付近の角地に位置しています。壁面の十字架が目印。天井高が2,700㎜と高さにゆとりがあるのが特徴です。機械警備、駐車場付きです。

物件No 0029583
住所 福岡県福岡市中央区舞鶴1-2-1
最寄駅
竣工年 1990年11月
規模 地上9階
階数 坪数 賃料+共益費
(坪単価)
敷金・保証金 用途 入居日 詳細 お気に入り
追加
4階 21坪 262,500円(税別)
(12,500円/坪)
8ヶ月
事務所
即日 お問合せ お気に入り追加

担当者のコメント

地下鉄「天神」駅「赤坂」駅より徒歩7分。昭和通り沿いに建つ1フロア約20坪の1フロア1テナントのオフィスビルになります。周辺には多くのオフィスが建ち並び、様々なビジネスが繰り広げられています。天神地下街の出入口より徒歩5分圏内で立地も良好です。約20坪のオフィスとなります。ご興味のある方は是非一度お問い合わせください。

物件No 0002936
住所 東京都江東区東陽7-1-1
最寄駅
竣工年 2001年3月
規模 地上8階
階数 坪数 賃料+共益費
(坪単価)
敷金・保証金 用途 入居日 詳細 お気に入り
追加
7階 136.99坪 相談 12ヶ月
事務所
即日 お問合せ お気に入り追加

担当者のコメント

門前仲町・木場・東陽町エリアにあるイーストネットビルディング1期は、2001年3月に建てられた地上8階の建物です。新耐震構造で安心です。また、24時間の使用可能となっています。事務所をお探しの方にはぴったりの物件です。
最寄り駅は東京メトロ東西線東陽町駅です。最短の駅からは徒歩7分と駅から近いことも魅力です。OAフロア、個別空調を完備しています。また駐車場も完備しています。

物件No 0001569
住所 岡山県岡山市北区桑田町18-28
最寄駅
竣工年 1985年2月
規模 地上7階 地下1階
階数 坪数 賃料+共益費
(坪単価)
敷金・保証金 用途 入居日 詳細 お気に入り
追加
3階 14.62坪 相談 相談
事務所
即日 お問合せ お気に入り追加

担当者のコメント

岡山駅周辺エリアにある明治安田生命岡山桑田町ビルは、1985年2月に建てられた地上7階地下1階の建物です。新耐震構造かつ機械警備もあり安心です。また、24時間の使用可能となっています。事務所をお探しの方にはぴったりの物件です。
最寄り駅はJR山陽本線岡山駅です。最短の駅からは徒歩7分と駅から近いことも魅力です。個別空調、エレベータ2基を完備しています。また機械式の駐車場も完備しています。

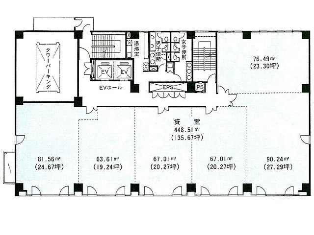
物件No 0032484
住所 愛知県名古屋市中区栄1-29-29
最寄駅
竣工年 1991年1月
規模 地上10階
階数 坪数 賃料+共益費
(坪単価)
敷金・保証金 用途 入居日 詳細 お気に入り
追加
4階
401
26.36坪 210,880円(税別)
(8,000円/坪)
4ヶ月
事務所
即日 お問合せ お気に入り追加
8階
802
24.99坪 199,920円(税別)
(8,000円/坪)
4ヶ月
事務所
店舗
即日 お問合せ お気に入り追加

担当者のコメント

若宮通り沿いに位置する貸事務所。
鶴舞線「大須観音」駅より徒歩10分圏内のアクセス。
周辺は緑が多く落ち着いた環境です。
また名古屋高速が目の前を走っていますので、お車利用の営業所様へおススメです。

物件No 0038875
住所 福岡県久留米市東町25-2
最寄駅
竣工年 1991年3月
規模 地上7階
階数 坪数 賃料+共益費
(坪単価)
敷金・保証金 用途 入居日 詳細 お気に入り
追加
1階
A
49.36坪 493,600円(税別)
(10,000円/坪)
6ヶ月
事務所
相談 お問合せ お気に入り追加
1階
統合AB
66.11坪 相談 相談
事務所
相談 お問合せ お気に入り追加
2階
E
25.38坪 228,420円(税別)
(9,000円/坪)
4ヶ月
事務所
相談 お問合せ お気に入り追加
2階
C
20.27坪 182,430円(税別)
(9,000円/坪)
4ヶ月
事務所
相談 お問合せ お気に入り追加
2階
B
21.52坪 193,680円(税別)
(9,000円/坪)
4ヶ月
事務所
相談 お問合せ お気に入り追加
2階
A
24.39坪 219,510円(税別)
(9,000円/坪)
4ヶ月
事務所
相談 お問合せ お気に入り追加
2階
統合A~G
133.35坪 相談 4ヶ月
事務所
相談 お問合せ お気に入り追加
3階
A
24.39坪 219,510円(税別)
(9,000円/坪)
4ヶ月
事務所
相談 お問合せ お気に入り追加
3階
B
21.52坪 193,680円(税別)
(9,000円/坪)
4ヶ月
事務所
相談 お問合せ お気に入り追加
3階
C
20.27坪 182,430円(税別)
(9,000円/坪)
4ヶ月
事務所
相談 お問合せ お気に入り追加
3階
E
25.38坪 228,420円(税別)
(9,000円/坪)
4ヶ月
事務所
相談 お問合せ お気に入り追加
3階
統合A~G
133.35坪 相談 4ヶ月
事務所
相談 お問合せ お気に入り追加
5階
C
20.27坪 182,430円(税別)
(9,000円/坪)
4ヶ月
事務所
相談 お問合せ お気に入り追加
5階
E
25.16坪 226,440円(税別)
(9,000円/坪)
4ヶ月
事務所
相談 お問合せ お気に入り追加
5階
統合CDE
62.57坪 563,130円(税別)
(9,000円/坪)
4ヶ月
事務所
相談 お問合せ お気に入り追加
6階
統合AB
28.4坪 255,600円(税別)
(9,000円/坪)
4ヶ月
事務所
相談 お問合せ お気に入り追加
6階
A
28.4坪 255,600円(税別)
(9,000円/坪)
4ヶ月
事務所
相談 お問合せ お気に入り追加
6階
B
20.27坪 182,430円(税別)
(9,000円/坪)
4ヶ月
事務所
相談 お問合せ お気に入り追加
6階
E
24.75坪 222,750円(税別)
(9,000円/坪)
4ヶ月
事務所
相談 お問合せ お気に入り追加
7階
統合A~E
112.63坪 1,013,670円(税別)
(9,000円/坪)
4ヶ月
事務所
相談 お問合せ お気に入り追加
7階
E
25.38坪 228,420円(税別)
(9,000円/坪)
4ヶ月
事務所
相談 お問合せ お気に入り追加
7階
C
20.27坪 182,430円(税別)
(9,000円/坪)
4ヶ月
事務所
相談 お問合せ お気に入り追加
7階
B
20.7坪 186,300円(税別)
(9,000円/坪)
4ヶ月
事務所
相談 お問合せ お気に入り追加
7階
A
28.04坪 252,360円(税別)
(9,000円/坪)
4ヶ月
事務所
相談 お問合せ お気に入り追加

担当者のコメント

西鉄「西鉄久留米」駅より徒歩10分。
久留米のメインストリート「明治通り」沿いに建つ
大型オフィスビルのご紹介になります。
1フロア約135坪物件になります。
重厚感のある佇まいと常に美しく保たれたエントランスや共用部。
リニューアルされている水回りやレイアウト自在の貸室は
久留米で事務所をお探しのお客様には必見の物件です。
好立地の物件で大小さまざまな広さのご相談が可能です。
久留米で物件をお探しのお客様は是非一度お問い合わせください。

Copyright(C) Quick Consulting Co.,LTD. All right reserved.