こだわり条件で再検索

坪数
(面積)
賃料+共益費
賃料+共益費
(坪当たり)
最寄駅
徒歩
築年数




用途





快適


安全


の賃貸オフィス・賃貸事務所 6249 棟 ( 15393 区画)

物件No 0009398
住所 東京都渋谷区渋谷1-19-5
最寄駅
竣工年 1993年3月
規模 地上5階 地下1階
階数 坪数 賃料+共益費
(坪単価)
敷金・保証金 用途 入居日 詳細 お気に入り
追加
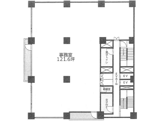
5階 48.51坪 相談 12ヶ月
事務所
相談 お問合せ お気に入り追加

担当者のコメント

渋谷と表参道から徒歩圏内です。設備が充実しているので快適にご利用できます。窓面が多く室内は明るく開放感があります。

階数 坪数 賃料+共益費
(坪単価)
敷金・保証金 用途 入居日 詳細 お気に入り
追加
6階
居抜き
106.91坪 相談 8ヶ月
事務所
即日 お問合せ お気に入り追加

担当者のコメント

渋谷エリアにあるDaiwa渋谷宮益坂ビルは、1988年12月に建てられた地上12階地下1階の建物です。新耐震構造かつ機械警備もあり安心です。また、24時間の使用可能となっています。事務所をお探しの方にはぴったりの物件です。
最寄り駅は東京メトロ半蔵門線渋谷駅、東京メトロ副都心線渋谷駅、東急田園都市線渋谷駅、JR山手線渋谷駅、東京メトロ銀座線渋谷駅と交通の便の良い立地です。最短の駅からは徒歩6分と駅から近いことも魅力です。個別空調、エレベータ3基を完備しています。また機械式の駐車場も完備しています。

物件No 0000650
住所 神奈川県横浜市港北区新横浜2-12-3
最寄駅
竣工年 1992年10月
規模 地上9階 地上階
階数 坪数 賃料+共益費
(坪単価)
敷金・保証金 用途 入居日 詳細 お気に入り
追加
6階 27.57坪 372,195円(税別)
(13,500円/坪)
8ヶ月
事務所
相談 お問合せ お気に入り追加

担当者のコメント

新横浜エリアにある新横浜成田ビルは、1992年10月に建てられた地上9階地上階の建物です。新耐震構造かつ機械警備もあり安心です。また、24時間の使用可能となっています。事務所をお探しの方にはぴったりの物件です。
最寄り駅はJR横浜線新横浜駅、横浜市営地下鉄ブルーライン新横浜駅です。最短の駅からは徒歩6分と駅から近いことも魅力です。個別空調、エレベータ1基を完備しています。

物件No 0017625
住所 群馬県前橋市本町2-15-10
最寄駅
竣工年 1993年2月
規模 地上9階
階数 坪数 賃料+共益費
(坪単価)
敷金・保証金 用途 入居日 詳細 お気に入り
追加
1階 70.93坪 567,440円(税別)
(8,000円/坪)
3ヶ月
事務所
即日 お問合せ お気に入り追加
2階 95.52坪 764,160円(税別)
(8,000円/坪)
3ヶ月
事務所
即日 お問合せ お気に入り追加
3階 23.84坪 190,720円(税別)
(8,000円/坪)
3ヶ月
事務所
即日 お問合せ お気に入り追加
8階 22.15坪 177,200円(税別)
(8,000円/坪)
3ヶ月
事務所
即日 お問合せ お気に入り追加

担当者のコメント

群馬にある前橋フコク生命ビルは、1993年2月に建てられた地上9階の建物です。新耐震構造かつ機械警備もあり安心です。また、24時間の使用可能となっています。事務所をお探しの方にはぴったりの物件です。
最寄り駅はJR両毛線前橋駅です。最短の駅からは徒歩6分と駅から近いことも魅力です。セントラル空調、エレベータ2基を完備しています。また機械式の駐車場も完備しています。

物件No 0036760
住所 宮城県仙台市青葉区国分町2-9-35
最寄駅
竣工年 1980年1月
規模 地上6階 地下1階
階数 坪数 賃料+共益費
(坪単価)
敷金・保証金 用途 入居日 詳細 お気に入り
追加
1階
103
100.65坪 2,415,600円(税別)
(24,000円/坪)
21,000,000円
店舗
即日 お問合せ お気に入り追加
1階
101-103
162.15坪 4,215,900円(税別)
(26,000円/坪)
36,000,000円
店舗
即日 お問合せ お気に入り追加
1階
101-102
61.5坪 1,968,000円(税別)
(32,000円/坪)
18,000,000円
店舗
即日 お問合せ お気に入り追加
2階 232.76坪 4,655,200円(税別)
(20,000円/坪)
38,000,000円
店舗
即日 お問合せ お気に入り追加
3階
304
18.91坪 387,655円(税別)
(20,500円/坪)
3,300,000円
店舗
即日 お問合せ お気に入り追加
3階
308
8.75坪 179,375円(税別)
(20,500円/坪)
1,500,000円
店舗
即日 お問合せ お気に入り追加
3階
312
14.11坪 289,255円(税別)
(20,500円/坪)
2,400,000円
店舗
即日 お問合せ お気に入り追加
5階
513
14.11坪 289,255円(税別)
(20,500円/坪)
2,400,000円
店舗
即日 お問合せ お気に入り追加
6階
612
29.98坪 614,590円(税別)
(20,500円/坪)
5,100,000円
店舗
即日 お問合せ お気に入り追加

担当者のコメント

飲食店舗を中心とした建物であり、国分町通りに面している物件になります。
地下鉄南北線「勾当台公園駅」から徒歩6分、地下鉄東西線「青葉通一番町駅」から徒歩8分ほどの場所にございます。

物件No 0027038
住所 東京都町田市森野1-7-23
最寄駅
竣工年 1988年1月
規模 地上6階 地下1階
階数 坪数 賃料+共益費
(坪単価)
敷金・保証金 用途 入居日 詳細 お気に入り
追加
3階 63.08坪 相談 12ヶ月
事務所
即日 お問合せ お気に入り追加
4階 63.08坪 相談 12ヶ月
事務所
2026年7月 お問合せ お気に入り追加
6階 19.26坪 相談 12ヶ月
事務所
2026年6月 お問合せ お気に入り追加

担当者のコメント

大樹生命町田ビルは、1988年1月に建てられた地上6階地下1階の建物です。新耐震構造かつ機械警備もあり安心です。また、24時間の使用可能となっています。事務所をお探しの方にはぴったりの物件です。
最寄り駅は小田急小田原線町田駅、JR横浜線町田駅です。最短の駅からは徒歩6分と駅から近いことも魅力です。OAフロア、個別空調、エレベータ2基を完備しています。また機械式の駐車場も完備しています。

※レンタルオフィスの募集状況は流動的なため下記は仮表示です。最新の募集状況はお問合せ下さい。
※また、レンタルオフィスの面積は仮の数値です。実際の面積とは異なりますのでご注意ください
階数 坪数 賃料+共益費
(坪単価)
敷金・保証金 用途 入居日 詳細 お気に入り
追加
5階
5-B
6.9坪 99,000円(税別)
(14,348円/坪)
4ヶ月
レンタルオフィス
相談 お問合せ お気に入り追加

担当者のコメント

西区エリアにあるデラ・ドーラ名駅は、2010年3月に建てられた地上8階の建物です。新耐震構造かつ機械警備もあり安心です。また、24時間の使用可能となっています。レンタルオフィスをお探しの方にはぴったりの物件です。
最寄り駅は名古屋市営地下鉄桜通線国際センター駅、名古屋市営地下鉄桜通線名古屋駅、名鉄名古屋本線名鉄名古屋駅、JR東海道本線名古屋駅、近鉄名古屋線近鉄名古屋駅と交通の便の良い立地です。最短の駅からは徒歩6分と駅から近いことも魅力です。OAフロア、個別空調、エレベータ1基を完備しています。また駐車場も完備しています。

物件No 0038720
住所 宮城県仙台市青葉区本町1-9-2
最寄駅
竣工年 1974年10月
規模 地上6階
階数 坪数 賃料+共益費
(坪単価)
敷金・保証金 用途 入居日 詳細 お気に入り
追加
4階 17.31坪 121,170円(税別)
(7,000円/坪)
6ヶ月
事務所
即日 お問合せ お気に入り追加

担当者のコメント

広瀬通駅・仙台駅・匂当台駅エリアにある銀杏坂ビル(第10広瀬ビル)は、1974年10月に建てられた地上6階の建物です。旧耐震構造で機械警備もあります。また、24時間の使用可能となっています。事務所をお探しの方にはぴったりの物件です。
最寄り駅は仙台市営地下鉄南北線仙台駅、仙台市営地下鉄南北線広瀬通駅です。最短の駅からは徒歩6分と駅から近いことも魅力です。個別空調、エレベータ1基を完備しています。

物件No 0017272
住所 千葉県千葉市中央区問屋町1-55
最寄駅
竣工年 1972年8月
規模 地上9階
階数 坪数 賃料+共益費
(坪単価)
敷金・保証金 用途 入居日 詳細 お気に入り
追加
4階
B
32.6坪 228,200円(税別)
(7,000円/坪)
3ヶ月
事務所
店舗
2026年2月 お問合せ お気に入り追加
4階
C
52.8坪 290,400円(税別)
(5,500円/坪)
3ヶ月
事務所
店舗
即日 お問合せ お気に入り追加
7階
C
52.8坪 290,400円(税別)
(5,500円/坪)
3ヶ月
事務所
店舗
即日 お問合せ お気に入り追加
7階
AB
68.7坪 480,900円(税別)
(7,000円/坪)
3ヶ月
事務所
店舗
相談 お問合せ お気に入り追加
8階
C
52.8坪 290,400円(税別)
(5,500円/坪)
3ヶ月
事務所
店舗
即日 お問合せ お気に入り追加

担当者のコメント

シーオービルは、市役所前駅徒歩6分のオフィスビルです。1972年竣工ですが、耐震補強済の物件です。お手洗い等水回りは貸室外にあり、無駄なスペースが少ないです。

4920 J-6ビル

物件No 0010008
住所 東京都渋谷区神宮前6-19-13
最寄駅
竣工年 1988年6月
規模 地上10階 地下1階
階数 坪数 賃料+共益費
(坪単価)
敷金・保証金 用途 入居日 詳細 お気に入り
追加
9階
フルセットアップ
41.26坪 相談 相談
事務所
即日 お問合せ お気に入り追加

担当者のコメント

J-6ビルは、明治通り沿いに位置している渋谷駅から徒歩6分の賃貸オフィスビルです。内装は、什器、会議室付きのセットアップオフィス仕様となっており、初期費用、退去費用のコスト削減に最適です。内容はお問い合わせください。

Copyright(C) Quick Consulting Co.,LTD. All right reserved.