こだわり条件で再検索

坪数
(面積)
賃料+共益費
賃料+共益費
(坪当たり)
最寄駅
徒歩
築年数




用途





快適


安全


の賃貸オフィス・賃貸事務所 6574 棟 ( 15829 区画)

物件No 0032372
住所 愛知県名古屋市千種区仲田2-15-12
最寄駅
竣工年 1989年3月
規模 地上8階
階数 坪数 賃料+共益費
(坪単価)
敷金・保証金 用途 入居日 詳細 お気に入り
追加
7階
C
24.75坪 222,750円(税別)
(9,000円/坪)
10ヶ月
事務所
2026年3月 お問合せ お気に入り追加
8階
A
12.15坪 109,350円(税別)
(9,000円/坪)
10ヶ月
事務所
2026年3月 お問合せ お気に入り追加
8階
C
24.75坪 222,750円(税別)
(9,000円/坪)
10ヶ月
事務所
2026年3月 お問合せ お気に入り追加

担当者のコメント

千種区仲田2丁目貸店舗・事務所。
錦通り沿いに位置するガラス面の綺麗なオフィスビル。
今池、池下エリアの中間に位置し、各駅から徒歩圏内のアクセスです。
ご業種等お気軽にお問合せください。

物件No 0024357
住所 東京都中央区銀座7-17-1
最寄駅
竣工年 1993年3月
規模 地上9階 地下1階
階数 坪数 賃料+共益費
(坪単価)
敷金・保証金 用途 入居日 詳細 お気に入り
追加
3階 52.11坪 相談 10ヶ月
事務所
2026年3月 お問合せ お気に入り追加

担当者のコメント

銀座武蔵野ビルは、中央市場通りから一本入ったところに位置する物件です。1フロア1テナントで貸室形状も正方形に近く、レイアウト効率も良さそうです。室内照明LED設置済みです。

物件No 0014566
住所 東京都千代田区岩本町3-9-15
最寄駅
竣工年 2004年8月
規模 地上10階
階数 坪数 賃料+共益費
(坪単価)
敷金・保証金 用途 入居日 詳細 お気に入り
追加
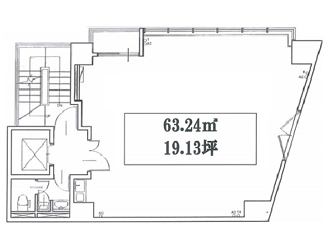
9階 19.13坪 相談 10ヶ月
事務所
2026年3月 お問合せ お気に入り追加

担当者のコメント

靖国通り沿いのペンシルオフィスビル
岩本町駅徒歩2分の立地
2004年竣工・築浅の新耐震基準の物件です。
緑のパネルが外観のアクセントになっています。

物件No 0008701
住所 東京都渋谷区宇田川町10-3
最寄駅
竣工年 2006年9月
規模 地上9階 地下1階
階数 坪数 賃料+共益費
(坪単価)
敷金・保証金 用途 入居日 詳細 お気に入り
追加
1階
1+2(メゾネット)
166.82坪 相談 8ヶ月
事務所
店舗
即日 お問合せ お気に入り追加
5階 96.93坪 相談 5ヶ月
事務所
2026年3月 お問合せ お気に入り追加
6階 96.93坪 相談 5ヶ月
事務所
2026年3月 お問合せ お気に入り追加

担当者のコメント

Daiwa SHIBUYA EDGEは、渋谷駅から徒歩6分のデザイナーズオフィスビルです。井の頭通りに面した、ガラス張りの個性的な外観の物件です。中規模オフィスですがEV3基と、スペックも高めです。

階数 坪数 賃料+共益費
(坪単価)
敷金・保証金 用途 入居日 詳細 お気に入り
追加
2階
B
25.01坪 相談 相談
事務所
相談 お問合せ お気に入り追加
2階
A
49.27坪 相談 相談
事務所
相談 お問合せ お気に入り追加

担当者のコメント

広瀬通駅・仙台駅・匂当台駅エリアにある東芝仙台ビルは、1975年5月に建てられた地上10階地下2階の建物です。耐震補強済で機械警備もあります。また、24時間の使用可能となっています。事務所をお探しの方にはぴったりの物件です。
最寄り駅は仙台市営地下鉄南北線広瀬通駅、仙台市営地下鉄東西線青葉通一番町駅、JR東北本線仙台駅、仙台市営地下鉄南北線仙台駅と交通の便の良い立地です。最短の駅からは徒歩5分と駅から近いことも魅力です。OAフロア、エレベータ4基を完備しています。また機械式の駐車場も完備しています。

階数 坪数 賃料+共益費
(坪単価)
敷金・保証金 用途 入居日 詳細 お気に入り
追加
1階 110坪 相談 相談
事務所
即日 お問合せ お気に入り追加

担当者のコメント

丸の内・大手町・有楽町・霞ヶ関エリアにあるニッセイ永田町ビルは、2010年1月に建てられた地上8階地下2階の建物です。新耐震構造かつ機械警備もあり安心です。また、24時間の使用可能となっています。事務所をお探しの方にはぴったりの物件です。
最寄り駅は東京メトロ銀座線溜池山王駅、東京メトロ南北線溜池山王駅、東京メトロ千代田線国会議事堂前駅、東京メトロ丸ノ内線国会議事堂前駅と交通の便の良い立地です。最短の駅からは徒歩1分と駅から近いことも魅力です。OAフロア、個別空調、エレベータ2基を完備しています。また駐車場も完備しています。

物件No 0013640
住所 宮城県仙台市青葉区国分町2-2-5
最寄駅
竣工年 1984年11月
規模 地上8階 地上1階
階数 坪数 賃料+共益費
(坪単価)
敷金・保証金 用途 入居日 詳細 お気に入り
追加
3階
301
33坪 363,000円(税別)
(11,000円/坪)
3ヶ月
事務所
即日 お問合せ お気に入り追加
4階
402
25.44坪 279,840円(税別)
(11,000円/坪)
3ヶ月
事務所
即日 お問合せ お気に入り追加
5階
一括
61.37坪 675,070円(税別)
(11,000円/坪)
6ヶ月
事務所
お問合せ お気に入り追加
5階
502
28.36坪 311,960円(税別)
(11,000円/坪)
3ヶ月
事務所
相談 お問合せ お気に入り追加
5階
501
33坪 363,000円(税別)
(11,000円/坪)
3ヶ月
事務所
相談 お問合せ お気に入り追加

担当者のコメント

広瀬通沿いの物件です。改修工事が行われる予定で、物件全体が綺麗に生まれ変わります。お部屋も小分けされ、ご希望の面積に合わせてご利用可能です。

階数 坪数 賃料+共益費
(坪単価)
敷金・保証金 用途 入居日 詳細 お気に入り
追加
6階
6B
17.24坪 203,746円(税別)
(11,818円/坪)
無し
事務所
2025年12月 お問合せ お気に入り追加

担当者のコメント

梅田徒歩圏のオフィスビルです。
初期費用を抑えたい企業様にお勧めです。

階数 坪数 賃料+共益費
(坪単価)
敷金・保証金 用途 入居日 詳細 お気に入り
追加
1階
20区画申込有
14.1坪 493,500円(税別)
(35,000円/坪)
12ヶ月
店舗
即日 お問合せ お気に入り追加
1階
21区画
13.58坪 543,200円(税別)
(40,000円/坪)
12ヶ月
店舗
相談 お問合せ お気に入り追加

担当者のコメント

住所は中央区築地になります。
築地駅徒歩2分、東銀座駅徒歩3分、築地市場駅徒歩4分。
建築家の隈研吾氏が2016年の外装リニューアルに携わった事でも知られる築地のランドマークビルです。築地四丁目交差点目の前になります。B1階から2階は商業フロア、3階から8階がオフィスフロアになります。

物件No 0013554
住所 宮城県仙台市青葉区一番町4-1-7
最寄駅
竣工年 1973年10月
規模 地上8階 地下2階
階数 坪数 賃料+共益費
(坪単価)
敷金・保証金 用途 入居日 詳細 お気に入り
追加
2階
2-EF
44.9坪 449,091円(税別)
(10,002円/坪)
6ヶ月
事務所
店舗
即日 お問合せ お気に入り追加
2階
2-CD
57.17坪 572,727円(税別)
(10,018円/坪)
6ヶ月
事務所
店舗
即日 お問合せ お気に入り追加
2階
2-GH
34.22坪 345,455円(税別)
(10,095円/坪)
6ヶ月
事務所
店舗
即日 お問合せ お気に入り追加
2階
2-AB
44.32坪 452,728円(税別)
(10,215円/坪)
6ヶ月
事務所
即日 お問合せ お気に入り追加
3階
3-G
15坪 150,910円(税別)
(10,061円/坪)
6ヶ月
事務所
店舗
即日 お問合せ お気に入り追加
3階
3-H
18.4坪 184,546円(税別)
(10,030円/坪)
6ヶ月
事務所
店舗
即日 お問合せ お気に入り追加
3階
3-E
33.67坪 337,273円(税別)
(10,017円/坪)
6ヶ月
事務所
店舗
即日 お問合せ お気に入り追加
3階
3-AB
44.32坪 443,636円(税別)
(10,010円/坪)
6ヶ月
事務所
店舗
即日 お問合せ お気に入り追加
4階
4-B
22.52坪 225,455円(税別)
(10,011円/坪)
6ヶ月
事務所
店舗
即日 お問合せ お気に入り追加
4階
4-C
24.9坪 249,091円(税別)
(10,004円/坪)
6ヶ月
事務所
店舗
即日 お問合せ お気に入り追加
4階
4-H
18.4坪 184,546円(税別)
(10,030円/坪)
6ヶ月
事務所
店舗
即日 お問合せ お気に入り追加
5階
5-E
33.67坪 338,182円(税別)
(10,044円/坪)
6ヶ月
事務所
店舗
即日 お問合せ お気に入り追加
5階
5-AB
46.22坪 462,727円(税別)
(10,011円/坪)
6ヶ月
事務所
店舗
即日 お問合せ お気に入り追加
6階
6-C
24.9坪 220,000円(税別)
(8,835円/坪)
6ヶ月
事務所
店舗
即日 お問合せ お気に入り追加
6階
6-B
22.52坪 180,909円(税別)
(8,033円/坪)
6ヶ月
事務所
店舗
即日 お問合せ お気に入り追加
6階
6-A
21.8坪 174,545円(税別)
(8,007円/坪)
6ヶ月
事務所
店舗
即日 お問合せ お気に入り追加
6階
6-EF
48.67坪 490,909円(税別)
(10,086円/坪)
6ヶ月
事務所
店舗
即日 お問合せ お気に入り追加
6階
6-GH
32.24坪 258,182円(税別)
(8,008円/坪)
6ヶ月
事務所
店舗
即日 お問合せ お気に入り追加
8階
8-F
15坪 120,910円(税別)
(8,061円/坪)
6ヶ月
事務所
店舗
即日 お問合せ お気に入り追加
8階
8-E
33.67坪 280,000円(税別)
(8,316円/坪)
6ヶ月
事務所
店舗
即日 お問合せ お気に入り追加
8階
8-GH
32.24坪 259,091円(税別)
(8,036円/坪)
6ヶ月
事務所
店舗
即日 お問合せ お気に入り追加

担当者のコメント

広瀬通り沿い。視認性のある賃貸事務所物件
広瀬通駅徒歩3分 青葉一番町駅徒歩5分
茶色の外観が特徴的な物件です。
基準階は約180坪の大型オフィスビルですが
20坪台から40坪台に分割されています。
住所は青葉区一番町です。

Copyright(C) Quick Consulting Co.,LTD. All right reserved.