貸事務所・レンタルオフィス・オフィス移転ならQuickService
担当者のコメント
徳島にある徳島フコク生命ビルは、2001年3月に建てられた地上7階の建物です。新耐震構造かつ機械警備もあり安心です。事務所をお探しの方にはぴったりの物件です。最寄り駅はJR高徳線徳島駅、JR徳島線(よしの川ブルーライン)徳島駅です。最短の駅からは徒歩7分と駅から近いことも魅力です。個別空調、エレベータ2基を完備しています。
徳島にある徳島眉山第一生命ビルディングは、1987年3月に建てられた地上8階の建物です。新耐震構造かつ機械警備もあり安心です。また、24時間の使用可能となっています。事務所をお探しの方にはぴったりの物件です。最寄り駅はJR高徳線徳島駅、JR徳島線(よしの川ブルーライン)徳島駅です。最短の駅からは徒歩5分と駅から近いことも魅力です。セントラル空調、エレベータ2基を完備しています。また機械式の駐車場も完備しています。
徳島にある徳島駅前171ビルは、1985年6月に建てられた地上8階地下1階の建物です。新耐震構造かつ機械警備もあり安心です。また、24時間の使用可能となっています。事務所をお探しの方にはぴったりの物件です。最寄り駅はJR高徳線徳島駅です。最短の駅からは徒歩2分と駅から近いことも魅力です。個別空調、エレベータ2基を完備しています。また機械式の駐車場も完備しています。
心斎橋MSビルは、心斎橋駅から徒歩3分の賃貸オフィスビルです。1フロアに約17坪のお部屋が2部屋有り、トイレ水回りは共用部です。周辺は飲食店も多く便利な環境です。
心斎橋アサノビルは、心斎橋駅から徒歩3分、四ツ橋駅から徒歩2分の駅近オフィスビルです。周辺環境は店舗も多く便利で賑やかです。貸室が長方形に近くレイアウトがしやすく使い勝手が良さそうです。
心斎橋イーストスクエアビルは、長堀通りに面したガラス張りの外観が特長の角ビルです。土日祝日エントランスオープンで、事務所以外も業種によってはご相談可能です。
心斎橋・長堀橋エリアにある心斎橋イーストビルは、1986年10月に建てられた地上9階地上1階の建物です。新耐震構造かつ機械警備もあり安心です。また、24時間の使用可能となっています。事務所をお探しの方にはぴったりの物件です。最寄り駅は大阪メトロ御堂筋線心斎橋駅、大阪メトロ長堀鶴見緑地線心斎橋駅、大阪メトロ長堀鶴見緑地線長堀橋駅、大阪メトロ堺筋線長堀橋駅、大阪メトロ中央線堺筋本町駅と交通の便の良い立地です。最短の駅からは徒歩4分と駅から近いことも魅力です。個別空調、エレベータ1基を完備しています。
心斎橋・長堀橋エリアにある心斎橋プラチナプラザは、1990年8月に建てられた地上9階地下1階の建物です。新耐震構造かつ機械警備もあり安心です。また、24時間の使用可能となっています。事務所、店舗をお探しの方にはぴったりの物件です。最寄り駅は大阪メトロ御堂筋線心斎橋駅、大阪メトロ長堀鶴見緑地線心斎橋駅です。最短の駅からは徒歩3分と駅から近いことも魅力です。個別空調、エレベータ1基を完備しています。
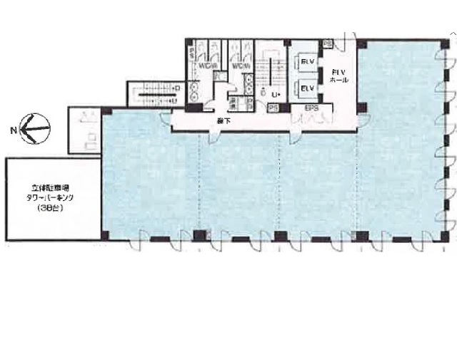
駅近大型ビル希望の企業様に最適。地下鉄御堂筋線、長堀鶴見緑地線心斎橋駅徒歩圏内2路線利用可能。1フロア100坪以上の大型ビルで、周辺にはハイブランドが集まる御堂筋から少し入った立地で駅徒歩2分の好立地。東側は商店街に面しており飲食店などがあり賑わっております。
立地重視の企業様に最適。地下鉄御堂筋線、地下鉄長堀鶴見緑地線・心斎橋駅より徒歩2分の貸事務所。南船場4丁目にあるオフィスビルです。区画は小規模から中規模までございますので、独立開業される方、新規設立される企業様にお勧めです。心斎橋へ徒歩で行けるのも人気の一つです。