こだわり条件で再検索

坪数
(面積)
賃料+共益費
賃料+共益費
(坪当たり)
最寄駅
徒歩
築年数




用途





快適


安全


の賃貸オフィス・賃貸事務所 6621 棟 ( 16097 区画)

物件No 0023361
住所 大分県大分市中央町2-9-24
最寄駅
竣工年 1987年3月
規模 地上9階
階数 坪数 賃料+共益費
(坪単価)
敷金・保証金 用途 入居日 詳細 お気に入り
追加
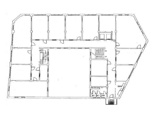
7階 25.33坪 相談 12ヶ月
事務所
即日 お問合せ お気に入り追加

担当者のコメント

JR「大分」駅より徒歩12分。
大分の中心通りである「中央通り」から1ブロック、「昭和通り」沿いに建つ、
基準階面積100坪以上の大型オフィスビルのご紹介です。
「正統派オフィスビル」を謳える外観に、
管理の行き届いたエントランス・共用部です。
ビルのネームバリューも十二分にございます。
貸室内もオフィスとしてレイアウトを組みやすい形となっております。
大分エリアで物件をお探しのお客様は是非一度お問い合わせください。

物件No 0001708
住所 岐阜県岐阜市吉野町6-14
最寄駅
竣工年 1986年5月
規模 地上9階
階数 坪数 賃料+共益費
(坪単価)
敷金・保証金 用途 入居日 詳細 お気に入り
追加
4階 19.93坪 相談 12ヶ月
事務所
2026年1月 お問合せ お気に入り追加

担当者のコメント

岐阜市吉野町にある貸事務所。
JR「岐阜駅」名鉄「新岐阜駅」至近の駅前立地ビルです。

物件No 0017378
住所 埼玉県川越市脇田本町15-10
最寄駅
竣工年 1988年6月
規模 地上9階 地下1階
階数 坪数 賃料+共益費
(坪単価)
敷金・保証金 用途 入居日 詳細 お気に入り
追加
2階
先行有
29.85坪 相談 12ヶ月
事務所
即日 お問合せ お気に入り追加

担当者のコメント

大樹生命川越駅前ビルは、1988年6月に建てられた地上9階地下1階の建物です。新耐震構造かつ機械警備もあり安心です。また、24時間の使用可能となっています。事務所をお探しの方にはぴったりの物件です。
最寄り駅はJR川越線川越駅、JR埼京線川越駅、東武東上線川越駅、東武東上線川越市駅、西武新宿線本川越駅と交通の便の良い立地です。最短の駅からは徒歩1分と駅から近いことも魅力です。OAフロア、個別空調、エレベータ2基を完備しています。また機械式の駐車場も完備しています。

階数 坪数 賃料+共益費
(坪単価)
敷金・保証金 用途 入居日 詳細 お気に入り
追加
2階 103.79坪 相談 12ヶ月
事務所
即日 お問合せ お気に入り追加
3階 40.87坪 相談 12ヶ月
事務所
相談 お問合せ お気に入り追加
3階 22.64坪 相談 12ヶ月
事務所
即日 お問合せ お気に入り追加
3階 18.23坪 相談 12ヶ月
事務所
即日 お問合せ お気に入り追加
3階 21.51坪 相談 12ヶ月
事務所
即日 お問合せ お気に入り追加
6階 4.8坪 相談 12ヶ月
事務所
即日 お問合せ お気に入り追加
8階 63.09坪 相談 12ヶ月
事務所
2026年6月 お問合せ お気に入り追加

担当者のコメント

愛媛にある大樹生命松山ビルは、1984年2月に建てられた地上8階地下1階の建物です。新耐震構造かつ機械警備もあり安心です。事務所をお探しの方にはぴったりの物件です。
最寄り駅は伊予鉄道1系統(環状線)県庁前駅、伊予鉄道2系統(環状線)県庁前駅、伊予鉄道3系統(市駅線)県庁前駅、伊予鉄道5系統(松山駅前線)県庁前駅と交通の便の良い立地です。最短の駅からは徒歩2分と駅から近いことも魅力です。OAフロア、個別空調、エレベータ2基を完備しています。また機械式の駐車場も完備しています。

物件No 0011002
住所 島根県松江市白潟本町13-4
最寄駅
竣工年 1997年11月
規模 地上8階
階数 坪数 賃料+共益費
(坪単価)
敷金・保証金 用途 入居日 詳細 お気に入り
追加
2階 27.76坪 相談 12ヶ月
事務所
即日 お問合せ お気に入り追加
3階 19.51坪 相談 12ヶ月
事務所
即日 お問合せ お気に入り追加
4階 14.03坪 相談 12ヶ月
事務所
即日 お問合せ お気に入り追加
5階 6.79坪 相談 12ヶ月
事務所
2026年2月 お問合せ お気に入り追加
5階 13.77坪 相談 12ヶ月
事務所
即日 お問合せ お気に入り追加
7階 16.69坪 相談 12ヶ月
事務所
即日 お問合せ お気に入り追加

担当者のコメント

島根にある大樹生命松江ビルは、1997年11月に建てられた地上8階の建物です。新耐震構造かつ機械警備もあり安心です。また、24時間の使用可能となっています。事務所をお探しの方にはぴったりの物件です。
最寄り駅はJR山陰本線松江駅です。個別空調、エレベータ2基を完備しています。また機械式の駐車場も完備しています。

物件No 0027038
住所 東京都町田市森野1-7-23
最寄駅
竣工年 1988年1月
規模 地上6階 地下1階
階数 坪数 賃料+共益費
(坪単価)
敷金・保証金 用途 入居日 詳細 お気に入り
追加
3階 63.08坪 相談 12ヶ月
事務所
即日 お問合せ お気に入り追加

担当者のコメント

大樹生命町田ビルは、1988年1月に建てられた地上6階地下1階の建物です。新耐震構造かつ機械警備もあり安心です。また、24時間の使用可能となっています。事務所をお探しの方にはぴったりの物件です。
最寄り駅は小田急小田原線町田駅、JR横浜線町田駅です。最短の駅からは徒歩6分と駅から近いことも魅力です。OAフロア、個別空調、エレベータ2基を完備しています。また機械式の駐車場も完備しています。

物件No 0008617
住所 鹿児島県鹿児島市加治屋町18-8
最寄駅
竣工年 1983年7月
規模 地上8階
階数 坪数 賃料+共益費
(坪単価)
敷金・保証金 用途 入居日 詳細 お気に入り
追加
4階 31.55坪 相談 12ヶ月
事務所
即日 お問合せ お気に入り追加

担当者のコメント

児島市電「甲東中学校前」より徒歩2分。鹿児島市電「高見馬場」より徒歩4分の好立地オフィスビルです。鹿児島の中心地にある正統派オフィスビルのご紹介です。1フロア約200坪の大型オフィスビルで設備面も充実しております。貸室は約10坪から分割されている部屋もあり、大小様々な企業様へおすすめしております。

階数 坪数 賃料+共益費
(坪単価)
敷金・保証金 用途 入居日 詳細 お気に入り
追加
1階 90.85坪 1,181,050円(税別)
(13,000円/坪)
12ヶ月
事務所
2026年3月 お問合せ お気に入り追加
2階 120.49坪 1,686,860円(税別)
(14,000円/坪)
12ヶ月
事務所
2026年5月 お問合せ お気に入り追加

担当者のコメント

本町・堺筋本町エリアにある大永ビルは、1989年1月に建てられた地上9階地下2階の建物です。新耐震構造で安心です。また、24時間の使用可能となっています。事務所をお探しの方にはぴったりの物件です。
最寄り駅は大阪メトロ堺筋線堺筋本町駅、大阪メトロ中央線堺筋本町駅、大阪メトロ御堂筋線本町駅、大阪メトロ堺筋線北浜駅、京阪本線北浜駅と交通の便の良い立地です。最短の駅からは徒歩3分と駅から近いことも魅力です。OAフロア、個別空調、エレベータ2基を完備しています。また駐車場も完備しています。

物件No 0021701
住所 大阪府大阪市北区西天満2-8-1
最寄駅
竣工年 1921年
規模 地上5階 地上1階
階数 坪数 賃料+共益費
(坪単価)
敷金・保証金 用途 入居日 詳細 お気に入り
追加
2階
206
9.37坪 131,180円(税別)
(14,000円/坪)
8ヶ月
事務所
即日 お問合せ お気に入り追加
2階
217
15.47坪 216,580円(税別)
(14,000円/坪)
8ヶ月
事務所
即日 お問合せ お気に入り追加
3階
303
6.06坪 84,840円(税別)
(14,000円/坪)
8ヶ月
事務所
即日 お問合せ お気に入り追加
3階
313
7.7坪 107,800円(税別)
(14,000円/坪)
8ヶ月
事務所
即日 お問合せ お気に入り追加
3階
314
8.62坪 120,680円(税別)
(14,000円/坪)
8ヶ月
事務所
即日 お問合せ お気に入り追加

担当者のコメント

東梅田・西天満エリアにある大江ビルヂングは、1921年に建てられた地上5階地上1階の建物です。旧耐震構造で機械警備もあります。また、24時間の使用可能となっています。事務所をお探しの方にはぴったりの物件です。
最寄り駅は大阪メトロ谷町線東梅田駅、京阪中之島線大江橋駅、大阪メトロ御堂筋線淀屋橋駅と交通の便の良い立地です。最短の駅からは徒歩4分と駅から近いことも魅力です。個別空調、エレベータ2基を完備しています。

物件No 0031419
住所 東京都豊島区池袋2-52-8
最寄駅
竣工年 1991年6月
規模 地上9階 地下2階
階数 坪数 賃料+共益費
(坪単価)
敷金・保証金 用途 入居日 詳細 お気に入り
追加
6階
602
102坪 相談 12ヶ月
事務所
即日 お問合せ お気に入り追加

担当者のコメント

大河内ビルは、計9路線利用可能な池袋駅を最寄りとしたオフィスビルです。個別空調ですがコアタイム設定有の経済的な空調システムを導入。トイレも順次リニューアル予定です。

Copyright(C) Quick Consulting Co.,LTD. All right reserved.