こだわり条件で再検索

坪数
(面積)
賃料+共益費
賃料+共益費
(坪当たり)
最寄駅
徒歩
築年数




用途





快適


安全


の賃貸オフィス・賃貸事務所 6440 棟 ( 15629 区画)

階数 坪数 賃料+共益費
(坪単価)
敷金・保証金 用途 入居日 詳細 お気に入り
追加
2階 231.37坪 相談 12ヶ月
事務所
即日 お問合せ お気に入り追加

担当者のコメント

丸の内・大手町・有楽町・霞ヶ関エリアにある赤坂エイトワンビルは、1985年2月に建てられた地上8階地下3階の建物です。新耐震構造かつ機械警備もあり安心です。また、24時間の使用可能となっています。事務所をお探しの方にはぴったりの物件です。
最寄り駅は東京メトロ丸ノ内線赤坂見附駅、東京メトロ銀座線溜池山王駅、東京メトロ半蔵門線永田町駅、東京メトロ千代田線国会議事堂前駅、東京メトロ千代田線赤坂駅と交通の便の良い立地です。最短の駅からは徒歩1分と駅から近いことも魅力です。OAフロア、エレベータ3基を完備しています。また駐車場も完備しています。

階数 坪数 賃料+共益費
(坪単価)
敷金・保証金 用途 入居日 詳細 お気に入り
追加
B1階 46.19坪 相談 相談
事務所
即日 お問合せ お気に入り追加
1階 46.77坪 相談 相談
事務所
2026年5月 お問合せ お気に入り追加
2階 46.28坪 相談 相談
事務所
即日 お問合せ お気に入り追加
3階 81.04坪 相談 相談
事務所
即日 お問合せ お気に入り追加

担当者のコメント

永田町住所の、駅近の大型貸事務所
赤坂見附駅徒歩2分の好立地です。永田町駅も徒歩4分と2駅利用可能で便利です。
外堀通りに面する9階建てのオフィスビルです。低層階には飲食店やコンビニなどの店舗が多く入居しています。エントランスなどの共用部は明るく清潔感があり来客者に好印象を与えます。機械警備、OA完備です。

物件No 0014058
住所 東京都千代田区永田町2-17-17
最寄駅
竣工年 2013年9月
規模 地上8階
※レンタルオフィスの募集状況は流動的なため下記は仮表示です。最新の募集状況はお問合せ下さい。
※また、レンタルオフィスの面積は仮の数値です。実際の面積とは異なりますのでご注意ください
階数 坪数 賃料+共益費
(坪単価)
敷金・保証金 用途 入居日 詳細 お気に入り
追加
5階
511
20.12坪 670,000円(税別)
(33,300円/坪)
6ヶ月
レンタルオフィス
即日 お問合せ お気に入り追加
5階
510
17.49坪 625,000円(税別)
(35,735円/坪)
6ヶ月
レンタルオフィス
即日 お問合せ お気に入り追加
6階
610
19.32坪 568,000円(税別)
(29,400円/坪)
6ヶ月
レンタルオフィス
即日 お問合せ お気に入り追加

担当者のコメント

こちらの物件はレンタルオフィスです。
7路線3駅よりアクセス可能です。
永田町は国家中枢機能が集中しており、周辺は厳重な警備が敷かれセキュリティの高い駅になっています。
全館セコムのセキュリティを導入しており、専用オフィスへも専用のカードキーがなければ、入室できない万全のセキュリティ体制です。

階数 坪数 賃料+共益費
(坪単価)
敷金・保証金 用途 入居日 詳細 お気に入り
追加
1階 110坪 相談 相談
事務所
即日 お問合せ お気に入り追加

担当者のコメント

丸の内・大手町・有楽町・霞ヶ関エリアにあるニッセイ永田町ビルは、2010年1月に建てられた地上8階地下2階の建物です。新耐震構造かつ機械警備もあり安心です。また、24時間の使用可能となっています。事務所をお探しの方にはぴったりの物件です。
最寄り駅は東京メトロ銀座線溜池山王駅、東京メトロ南北線溜池山王駅、東京メトロ千代田線国会議事堂前駅、東京メトロ丸ノ内線国会議事堂前駅と交通の便の良い立地です。最短の駅からは徒歩1分と駅から近いことも魅力です。OAフロア、個別空調、エレベータ2基を完備しています。また駐車場も完備しています。

階数 坪数 賃料+共益費
(坪単価)
敷金・保証金 用途 入居日 詳細 お気に入り
追加
2階
203
21.24坪 相談 8ヶ月
事務所
即日 お問合せ お気に入り追加
2階
202
25.46坪 相談 8ヶ月
事務所
即日 お問合せ お気に入り追加

担当者のコメント

溜池山王駅から徒歩1分の駅近物件です。
赤いレンガの厳粛な雰囲気のある外観です。
室内も四角形に近い形のものが多いので、使い勝手も良さそうです。
建物内にはテナント様専用貸会議室も備えております。

物件No 0014067
住所 東京都千代田区永田町2-9-8
最寄駅
竣工年 1977年10月
規模 地上11階
階数 坪数 賃料+共益費
(坪単価)
敷金・保証金 用途 入居日 詳細 お気に入り
追加
7階
706
45.84坪 733,440円(税別)
(16,000円/坪)
6ヶ月
事務所
即日 お問合せ お気に入り追加

担当者のコメント

丸の内・大手町・有楽町・霞ヶ関エリアにあるパレロワイヤル永田町は、1977年10月に建てられた地上11階の建物です。また、24時間の使用可能となっています。事務所をお探しの方にはぴったりの物件です。
最寄り駅は東京メトロ南北線溜池山王駅、東京メトロ千代田線国会議事堂前駅、東京メトロ丸ノ内線赤坂見附駅と交通の便の良い立地です。最短の駅からは徒歩2分と駅から近いことも魅力です。OAフロア、個別空調、エレベータ2基を完備しています。また平置きの駐車場も完備しています。

階数 坪数 賃料+共益費
(坪単価)
敷金・保証金 用途 入居日 詳細 お気に入り
追加
7階
701
31.13坪 相談 10ヶ月
事務所
即日 お問合せ お気に入り追加

担当者のコメント

オリエンタル江坂ビルディングは、江坂ビルから徒歩4分の賃貸オフィスビルです。
駅近物件ではあるものの、周辺は静かで落ち着いた環境です。徒歩2分の距離に江の木公園があり、少し散歩すれば良いリフレッシュタイムとなるでしょう。クリエイティブな企業様にお勧めです。

階数 坪数 賃料+共益費
(坪単価)
敷金・保証金 用途 入居日 詳細 お気に入り
追加
3階
306
37.2坪 465,000円(税別)
(12,500円/坪)
12ヶ月
事務所
即日 お問合せ お気に入り追加
5階
501
38.9坪 486,250円(税別)
(12,500円/坪)
12ヶ月
事務所
即日 お問合せ お気に入り追加

担当者のコメント

コンパーノビルは、江坂駅から徒歩3分の賃貸オフィスビルです。1フロア240坪の大規模ビルで、エントランス含め高級感がございます。

階数 坪数 賃料+共益費
(坪単価)
敷金・保証金 用途 入居日 詳細 お気に入り
追加
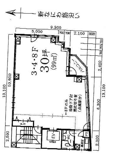
3階 30坪 270,000円(税別)
(9,000円/坪)
無し
事務所
2026年6月 お問合せ お気に入り追加

担当者のコメント

エアフォルク阿波座ビルは、阿波座駅から徒歩2分の賃貸オフィスビルです。新なにわ筋に面した、角ビルで、採光の良い明るいお部屋です。周辺環境は飲食店も多く、近くにコンビニも有り便利です。

階数 坪数 賃料+共益費
(坪単価)
敷金・保証金 用途 入居日 詳細 お気に入り
追加
15階
1513
11坪 93,500円(税別)
(8,500円/坪)
無し
事務所
2026年5月 お問合せ お気に入り追加

担当者のコメント

阿波座駅降りてすぐの立地館内貸会議室もあり、阿波座駅周辺の人気オフィス物件です。

Copyright(C) Quick Consulting Co.,LTD. All right reserved.