こだわり条件で再検索

坪数
(面積)
賃料+共益費
賃料+共益費
(坪当たり)
最寄駅
徒歩
築年数




用途





快適


安全


の賃貸オフィス・賃貸事務所 6088 棟 ( 15161 区画)

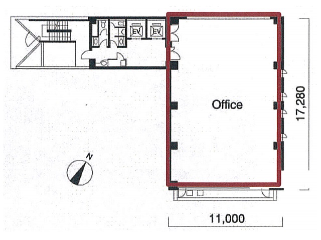
物件No 0016423
住所 東京都千代田区鍛冶町2-3-2
最寄駅
竣工年 1989年11月
規模 地上9階 地下1階
階数 坪数 賃料+共益費
(坪単価)
敷金・保証金 用途 入居日 詳細 お気に入り
追加
7階 66.18坪 相談 12ヶ月
事務所
2026年8月 お問合せ お気に入り追加

担当者のコメント

神田センタービルは、神田駅の中規模オフィスビルです。中央通りに面し、消防署の隣という分かりやすい立地です。通り側から見ると、一見細長いビルに見えますが、実際の貸室は無柱の長方形で広々としています。

物件No 0027169
住所 愛知県津島市今市場町4-31-1
最寄駅
竣工年 1992年1月
規模 地上3階
階数 坪数 賃料+共益費
(坪単価)
敷金・保証金 用途 入居日 詳細 お気に入り
追加
2階
C
21.78坪 185,130円(税別)
(8,500円/坪)
10ヶ月
事務所
即日 お問合せ お気に入り追加

担当者のコメント

第2岡本ビルは、1992年1月に建てられた地上3階の建物です。旧耐震構造です。また、24時間の使用可能となっています。事務所をお探しの方にはぴったりの物件です。
最寄り駅は名鉄津島線津島駅です。最短の駅からは徒歩3分と駅から近いことも魅力です。個別空調を完備しています。また駐車場も完備しています。

物件No 0030184
住所 福岡県福岡市博多区博多駅前1-6-16
最寄駅
竣工年 1989年8月
規模 地上12階
階数 坪数 賃料+共益費
(坪単価)
敷金・保証金 用途 入居日 詳細 お気に入り
追加
7階 21.98坪 相談 12ヶ月
事務所
2026年7月 お問合せ お気に入り追加
7階 52.05坪 相談 12ヶ月
事務所
2026年7月 お問合せ お気に入り追加
8階 21.98坪 相談 12ヶ月
事務所
2026年7月 お問合せ お気に入り追加

担当者のコメント

地下鉄「祗園」駅の地下通路4番出口を昇って徒歩1分で正面玄関へ到着可能です。大きな道路で囲まれている立地条件が功を奏し、隣接する物件はほとんどなく眺望はストレスを与えません。純然たるオフィスビルという外観ですが、エントランスに入ると高級感漂う造りになっており、来訪者のイメージも良いでしょう。分煙されたリフレッシュコーナーも完備しており、快適さは十分と言えます。博多のお祭りの山笠では舁き山ルートになっており、見物するには最適なのも嬉しいポイントです。

物件No 0005754
住所 東京都港区南青山2-27-8
最寄駅
竣工年 2000年5月
規模 地上4階
階数 坪数 賃料+共益費
(坪単価)
敷金・保証金 用途 入居日 詳細 お気に入り
追加
4階 35.78坪 715,600円(税別)
(20,000円/坪)
10ヶ月
事務所
2026年5月 お問合せ お気に入り追加

担当者のコメント

赤坂・青山・六本木エリアにある南青山第2シティビルは、2000年5月に建てられた地上4階の建物です。新耐震構造かつ機械警備もあり安心です。また、24時間の使用可能となっています。事務所をお探しの方にはぴったりの物件です。
最寄り駅は東京メトロ銀座線外苑前駅です。最短の駅からは徒歩3分と駅から近いことも魅力です。OAフロア、個別空調、エレベータ1基を完備しています。また駐車場も完備しています。

物件No 0005664
住所 東京都港区東麻布1-3-8
最寄駅
竣工年 1986年9月
規模 地上10階
階数 坪数 賃料+共益費
(坪単価)
敷金・保証金 用途 入居日 詳細 お気に入り
追加
2階 54.31坪 1,357,750円(税別)
(25,000円/坪)
6ヶ月
事務所
即日 お問合せ お気に入り追加
3階 54.31坪 1,357,750円(税別)
(25,000円/坪)
6ヶ月
事務所
即日 お問合せ お気に入り追加

担当者のコメント

赤羽橋駅から4分、桜田通り沿い!
大江戸線:赤羽橋駅から徒歩4分、日比谷線:神谷町駅から徒歩6分、三田線:芝公園駅から徒歩7分です。
1フロア1テナントですがトイレは男女別で室外です。地震に強い新耐震基準、機械警備付き、配線スッキリのOAフロアなど、一通りのスペックを備えています。窓面が広く明るいのも嬉しいポイントです。

物件No 0002500
住所 広島県広島市中区中町8-18
最寄駅
竣工年 1992年4月
規模 地上19階 地下2階
階数 坪数 賃料+共益費
(坪単価)
敷金・保証金 用途 入居日 詳細 お気に入り
追加
3階 39.27坪 相談 12ヶ月
事務所
店舗
即日 お問合せ お気に入り追加
4階 82.04坪 相談 12ヶ月
事務所
2026年4月 お問合せ お気に入り追加
5階 112.1坪 相談 12ヶ月
店舗
即日 お問合せ お気に入り追加
5階 100.49坪 相談 12ヶ月
事務所
即日 お問合せ お気に入り追加
9階 54.19坪 相談 12ヶ月
事務所
即日 お問合せ お気に入り追加
10階 57.95坪 相談 12ヶ月
事務所
即日 お問合せ お気に入り追加
10階 65.37坪 相談 12ヶ月
事務所
即日 お問合せ お気に入り追加
11階 112.85坪 相談 12ヶ月
事務所
即日 お問合せ お気に入り追加
15階 260.74坪 相談 12ヶ月
事務所
店舗
即日 お問合せ お気に入り追加
16階 221.1坪 相談 12ヶ月
事務所
店舗
即日 お問合せ お気に入り追加
17階 274.93坪 相談 12ヶ月
事務所
店舗
即日 お問合せ お気に入り追加

担当者のコメント

中町の20階建、新耐震・高層オフィスビル
袋町電停から徒歩約4分です。広島駅方面へのアクセスが便利です
平和大通りに面した、全面ガラス張りの外観が特徴的な視認性良好な物件です。1階エントランスの吹抜は開放感があり、休憩に最適です。エレベーターは6基と使いやすく、機械警備やOAなど設備は整っています。

物件No 0000795
住所 神奈川県横浜市神奈川区栄町3-4
最寄駅
竣工年 1992年10月
規模 地上12階 地下1階
階数 坪数 賃料+共益費
(坪単価)
敷金・保証金 用途 入居日 詳細 お気に入り
追加
2階 17.69坪 相談 12ヶ月
事務所
2026年8月 お問合せ お気に入り追加
4階 70.91坪 相談 12ヶ月
事務所
2026年8月 お問合せ お気に入り追加

担当者のコメント

第一京浜沿いに位置する11階建てのオフィスビルです。エントランスなどの共用部は明るく高級感があり、来客者に好印象を与えます。

階数 坪数 賃料+共益費
(坪単価)
敷金・保証金 用途 入居日 詳細 お気に入り
追加
9階
BC
60.48坪 786,240円(税別)
(13,000円/坪)
10ヶ月
事務所
2026年6月 お問合せ お気に入り追加

担当者のコメント

新大阪第2ドイビルは西中島南方駅より徒歩約2分、大通り沿いに位置するオフィスビルです。石張りの外観でエントランスは広々としており重厚感のある物件です。

物件No 0013308
住所 静岡県静岡市葵区栄町3-1
最寄駅
竣工年 1984年10月
規模 地上10階
階数 坪数 賃料+共益費
(坪単価)
敷金・保証金 用途 入居日 詳細 お気に入り
追加
4階 38.45坪 相談 10ヶ月
事務所
即日 お問合せ お気に入り追加
8階 18.2坪 相談 10ヶ月
事務所
即日 お問合せ お気に入り追加
9階 39.8坪 457,700円(税別)
(11,500円/坪)
10ヶ月
事務所
即日 お問合せ お気に入り追加

担当者のコメント

静岡にあるあいおいニッセイ同和損保静岡第1ビルは、1984年10月に建てられた地上10階の建物です。新耐震構造かつ機械警備もあり安心です。また、24時間の使用可能となっています。事務所をお探しの方にはぴったりの物件です。
最寄り駅は静岡鉄道静岡清水線日吉町駅、JR東海道本線静岡駅です。最短の駅からは徒歩5分と駅から近いことも魅力です。個別空調、エレベータ2基を完備しています。また機械式の駐車場も完備しています。

物件No 0009584
住所 東京都渋谷区渋谷3-13-11
最寄駅
竣工年 1991年7月
規模 地上10階
階数 坪数 賃料+共益費
(坪単価)
敷金・保証金 用途 入居日 詳細 お気に入り
追加
8階
申込有
53.87坪 1,454,490円(税別)
(27,000円/坪)
10ヶ月
事務所
即日 お問合せ お気に入り追加

担当者のコメント

ガラス張りの外観が特徴的な物件です。ビル全体管理が行き届いており清潔感があります。設備も充実しているので快適にご利用できます。

Copyright(C) Quick Consulting Co.,LTD. All right reserved.