こだわり条件で再検索

坪数
(面積)
賃料+共益費
賃料+共益費
(坪当たり)
最寄駅
徒歩
築年数




用途





快適


安全


の賃貸オフィス・賃貸事務所 6379 棟 ( 15470 区画)

物件No 0010568
住所 東京都渋谷区東3-13-11
最寄駅
竣工年 1992年1月
規模 地上10階 地下2階
階数 坪数 賃料+共益費
(坪単価)
敷金・保証金 用途 入居日 詳細 お気に入り
追加
5階
居抜き
91.65坪 相談 12ヶ月
事務所
2026年3月 お問合せ お気に入り追加

担当者のコメント

A-PLACE恵比寿東は、恵比寿駅から徒歩6分でアクセス可能な明治通り沿いの物件です。比較的落ち着いた雰囲気に囲まれているエリアに位置しています。2008年にリニューアルしているエントランスも魅了の一つです。5階は内装居抜きの相談もできます。

3552 MOビル

物件No 0043149
住所 東京都渋谷区東3-14-15
最寄駅
竣工年 1992年4月
規模 地上10階 地下2階
階数 坪数 賃料+共益費
(坪単価)
敷金・保証金 用途 入居日 詳細 お気に入り
追加
6階 68.14坪 1,499,080円(税別)
(22,000円/坪)
3ヶ月
事務所
2026年4月 お問合せ お気に入り追加

担当者のコメント

渋谷エリアにあるMOビルは、1992年4月に建てられた地上10階地下2階の建物です。新耐震構造かつ機械警備もあり安心です。また、24時間の使用可能となっています。事務所をお探しの方にはぴったりの物件です。
最寄り駅はJR山手線恵比寿駅、東京メトロ日比谷線恵比寿駅、JR山手線渋谷駅と交通の便の良い立地です。最短の駅からは徒歩7分と駅から近いことも魅力です。個別空調、エレベータ2基を完備しています。また機械式の駐車場も完備しています。

物件No 0010574
住所 東京都渋谷区東3-15-7
最寄駅
竣工年 1992年2月
規模 地上7階
階数 坪数 賃料+共益費
(坪単価)
敷金・保証金 用途 入居日 詳細 お気に入り
追加
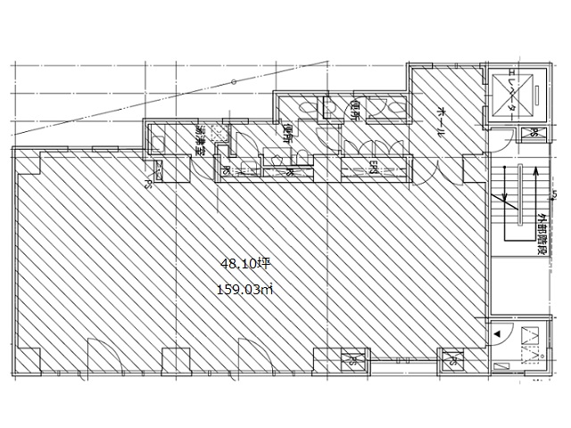
7階 48.1坪 相談 12ヶ月
事務所
相談 お問合せ お気に入り追加

担当者のコメント

ヒューリック恵比寿ビルは、恵比寿駅から徒歩5分の賃貸オフィスビルです。貸室形状は長方形型で使い勝手が良く、トイレは室外ですが水回りが室内と言うのも細かな点ですが魅力的です。

物件No 0035812
住所 東京都渋谷区東3-17-14
最寄駅
竣工年 1990年2月
規模 地上9階
階数 坪数 賃料+共益費
(坪単価)
敷金・保証金 用途 入居日 詳細 お気に入り
追加
3階
居抜き
20.18坪 650,000円(税別)
(32,210円/坪)
8ヶ月
事務所
店舗
2026年5月 お問合せ お気に入り追加

担当者のコメント

渋谷エリアにあるACN恵比寿スクエアビル(旧:クリスティエビスビル)は、1990年2月に建てられた地上9階の建物です。新耐震構造で安心です。また、24時間の使用可能となっています。事務所、店舗をお探しの方にはぴったりの物件です。
最寄り駅はJR山手線恵比寿駅、東京メトロ日比谷線恵比寿駅、東急東横線代官山駅と交通の便の良い立地です。最短の駅からは徒歩3分と駅から近いことも魅力です。個別空調、エレベータ1基を完備しています。

物件No 0035826
住所 東京都渋谷区東3-22-14
最寄駅
竣工年 1991年10月
規模 地上8階
階数 坪数 賃料+共益費
(坪単価)
敷金・保証金 用途 入居日 詳細 お気に入り
追加
1階
(申)セットアップ
26.29坪 1,050,000円(税別)
(39,939円/坪)
無し
事務所
2026年1月 お問合せ お気に入り追加

担当者のコメント

恵比寿最寄りのセットアップオフィスです。移転時にかかる費用と時間を削減できます。

物件No 0010589
住所 東京都渋谷区東3-24-2
最寄駅
竣工年 1989年3月
規模 地上6階
階数 坪数 賃料+共益費
(坪単価)
敷金・保証金 用途 入居日 詳細 お気に入り
追加
2階 57.9坪 相談 相談
事務所
2026年5月 お問合せ お気に入り追加

担当者のコメント

渋谷エリアにある恵比寿STビルは、1989年3月に建てられた地上6階の建物です。新耐震構造で安心です。また、24時間の使用可能となっています。事務所をお探しの方にはぴったりの物件です。
最寄り駅はJR山手線恵比寿駅です。最短の駅からは徒歩3分と駅から近いことも魅力です。OAフロア、個別空調、エレベータ1基を完備しています。また駐車場も完備しています。

物件No 0010603
住所 東京都渋谷区東3-9-19
最寄駅
竣工年 1989年8月
規模 地上11階 地下1階
階数 坪数 賃料+共益費
(坪単価)
敷金・保証金 用途 入居日 詳細 お気に入り
追加
8階 104.88坪 相談 5ヶ月
事務所
2026年5月 お問合せ お気に入り追加

担当者のコメント

基準階約100坪の中大型オフィスビル。
JR、東京メトロ日比谷線利用可能な恵比寿駅から徒歩約3分。
渋谷区東住所、恵比寿駅が最寄り駅の中大型オフィスビルです。1フロア1テナントで利用可能です。交差点の角地に立地しているので3面採光がとれ、室内が明るい物件です。

物件No 0011081
住所 新潟県新潟市中央区東万代町1-30
最寄駅
竣工年 1987年10月
規模 地上8階
階数 坪数 賃料+共益費
(坪単価)
敷金・保証金 用途 入居日 詳細 お気に入り
追加
2階 63.77坪 相談 相談
事務所
即日 お問合せ お気に入り追加

担当者のコメント

新潟にある新潟第一生命ビルは、1987年10月に建てられた地上8階の建物です。新耐震構造かつ機械警備もあり安心です。また、24時間の使用可能となっています。事務所をお探しの方にはぴったりの物件です。
最寄り駅はJR信越本線新潟駅です。最短の駅からは徒歩8分と駅から近いことも魅力です。OAフロア、セントラル空調、エレベータ2基を完備しています。また機械式の駐車場も完備しています。

階数 坪数 賃料+共益費
(坪単価)
敷金・保証金 用途 入居日 詳細 お気に入り
追加
2階
206
23坪 184,000円(税別)
(8,000円/坪)
無し
事務所
2026年4月 お問合せ お気に入り追加

担当者のコメント

新大阪エリアにあるフローラルセントランドは、1993年4月に建てられた地上8階の建物です。新耐震構造で安心です。また、24時間の使用可能となっています。事務所をお探しの方にはぴったりの物件です。
最寄り駅は大阪メトロ御堂筋線東三国駅、JR東海道本線東淀川駅、大阪メトロ御堂筋線新大阪駅、阪急宝塚本線三国駅、JR東海道本線新大阪駅と交通の便の良い立地です。最短の駅からは徒歩5分と駅から近いことも魅力です。OAフロア、個別空調、エレベータ1基を完備しています。また機械式の駐車場も完備しています。

物件No 0036819
住所 千葉県柏市東上町2-28
最寄駅
竣工年 1992年1月
規模 地上7階
階数 坪数 賃料+共益費
(坪単価)
敷金・保証金 用途 入居日 詳細 お気に入り
追加
4階 80.24坪 800,000円(税別)
(9,970円/坪)
6ヶ月
事務所
即日 お問合せ お気に入り追加

担当者のコメント

松戸・柏エリアにある第2水戸屋ビルは、1992年1月に建てられた地上7階の建物です。新耐震構造かつ機械警備もあり安心です。また、24時間の使用可能となっています。事務所をお探しの方にはぴったりの物件です。
最寄り駅はJR常磐線柏駅です。最短の駅からは徒歩7分と駅から近いことも魅力です。OAフロア、個別空調、エレベータ2基を完備しています。また機械式の駐車場も完備しています。

Copyright(C) Quick Consulting Co.,LTD. All right reserved.