こだわり条件で再検索

坪数
(面積)
賃料+共益費
賃料+共益費
(坪当たり)
最寄駅
徒歩
築年数




用途





快適


安全


の賃貸オフィス・賃貸事務所 6088 棟 ( 15161 区画)

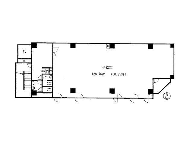
物件No 0051649
住所 東京都品川区西五反田7-16-3
最寄駅
竣工年 1989年5月
規模 地上5階
階数 坪数 賃料+共益費
(坪単価)
敷金・保証金 用途 入居日 詳細 お気に入り
追加
3階 26.04坪 377,580円(税別)
(14,500円/坪)
4ヶ月
事務所
即日 お問合せ お気に入り追加

担当者のコメント

五反田・目黒エリアにある東京モリスビル第10は、1989年5月に建てられた地上5階の建物です。新耐震構造かつ機械警備もあり安心です。また、24時間の使用可能となっています。事務所をお探しの方にはぴったりの物件です。
最寄り駅は東急池上線大崎広小路駅、都営浅草線五反田駅、JR山手線五反田駅、東急池上線五反田駅と交通の便の良い立地です。最短の駅からは徒歩5分と駅から近いことも魅力です。OAフロア、個別空調、エレベータ1基を完備しています。

物件No 0002501
住所 広島県広島市中区中町9-12
最寄駅
竣工年 1989年5月
規模 地上24階 地下1階
階数 坪数 賃料+共益費
(坪単価)
敷金・保証金 用途 入居日 詳細 お気に入り
追加
4階
401
54.64坪 相談 12ヶ月
事務所
即日 お問合せ お気に入り追加

担当者のコメント

平和大通り沿いの新耐震基準オフィスビル
袋町電停から徒歩5分です。広島駅方面へのアクセスも良好です
1989年竣工、24階建ての高層ビルで視認性が高いです。上層階はホテルになっており、共用部は清潔感があります。エレベーターは3基、設備は個別空調やOA、機械式駐車場を備え24時間使用可能です。

3463 CBMビル

階数 坪数 賃料+共益費
(坪単価)
敷金・保証金 用途 入居日 詳細 お気に入り
追加
6階 35.94坪 相談 10ヶ月
事務所
即日 お問合せ お気に入り追加

担当者のコメント

大阪市中央区淡路町2丁目、北浜駅を最寄りの賃貸オフィス物件。低層階は飲食店のテナント様が入居されていますが、上階は事務所仕様です。

物件No 0034301
住所 愛知県名古屋市名東区明が丘124-2
最寄駅
竣工年 1989年5月
規模 地上5階 地下1階
階数 坪数 賃料+共益費
(坪単価)
敷金・保証金 用途 入居日 詳細 お気に入り
追加
3階
AB
25.45坪 318,125円(税別)
(12,500円/坪)
6ヶ月
事務所
即日 お問合せ お気に入り追加
5階
分割C
13.16坪 171,080円(税別)
(13,000円/坪)
6ヶ月
事務所
店舗
相談 お問合せ お気に入り追加

担当者のコメント

藤が丘至近の貸し店舗。藤が丘の駅から徒歩2分となります。
クリニック、ブディック、エステ等様々なテナント様がご入居されている商業ビル。
駅からも近く、藤が丘の駅で乗り換えされる学生の方が立ち寄るエリアです。

物件No 0032933
住所 愛知県名古屋市中区丸の内3-9-16
最寄駅
竣工年 1989年5月
規模 地上8階
階数 坪数 賃料+共益費
(坪単価)
敷金・保証金 用途 入居日 詳細 お気に入り
追加
3階
A
15.17坪 180,000円(税別)
(11,866円/坪)
10ヶ月
事務所
相談 お問合せ お気に入り追加

担当者のコメント

大津通より一本入った、閑静なエリアにある白を基調とした物件。
桜通・名城線「久屋大通」駅から徒歩4分の好立地。
比較的シンプルな造りになったビルなので、落ち着いたエリアで事務所を構えられたいお客様にオススメ。

階数 坪数 賃料+共益費
(坪単価)
敷金・保証金 用途 入居日 詳細 お気に入り
追加
7階
A
24.1坪 289,200円(税別)
(12,000円/坪)
10ヶ月
事務所
即日 お問合せ お気に入り追加

担当者のコメント

久屋大通エリアの貸事務所。
住所は東区泉1丁目、「久屋大通」駅より徒歩2分のアクセスです。
ガラス張りのスタイリッシュな外観が特徴的。
スタートアップ企業や各種支店・営業所にオススメの物件です。

階数 坪数 賃料+共益費
(坪単価)
敷金・保証金 用途 入居日 詳細 お気に入り
追加
2階
1フロア
46.63坪 559,560円(税別)
(12,000円/坪)
12ヶ月
事務所
即日 お問合せ お気に入り追加

担当者のコメント

中村区その他エリアにあるアド近鉄名古屋ビルは、1989年5月に建てられた地上8階の建物です。新耐震構造で安心です。事務所をお探しの方にはぴったりの物件です。
最寄り駅はJR中央本線名古屋駅、名鉄名古屋本線名鉄名古屋駅、名古屋市営地下鉄東山線名古屋駅、名古屋市営地下鉄桜通線名古屋駅と交通の便の良い立地です。個別空調、エレベータ2基を完備しています。また平置きの駐車場も完備しています。

物件No 0011093
住所 新潟県新潟市中央区万代4-4-27
最寄駅
竣工年 1989年5月
規模 地上11階
階数 坪数 賃料+共益費
(坪単価)
敷金・保証金 用途 入居日 詳細 お気に入り
追加
1階
105
9.66坪 相談 相談
店舗
相談 お問合せ お気に入り追加
1階
104
36.69坪 相談 相談
店舗
即日 お問合せ お気に入り追加
3階 33.67坪 相談 相談
事務所
即日 お問合せ お気に入り追加

担当者のコメント

新潟にあるメットライフ新潟テレコムビルは、1989年5月に建てられた地上11階の建物です。新耐震構造かつ機械警備もあり安心です。また、24時間の使用可能となっています。店舗、事務所をお探しの方にはぴったりの物件です。
最寄り駅はJR越後線新潟駅、JR信越本線新潟駅、JR白新線新潟駅と交通の便の良い立地です。最短の駅からは徒歩9分と駅から近いことも魅力です。個別空調、エレベータ4基を完備しています。また駐車場も完備しています。

物件No 0013293
住所 青森県青森市長島2-13-1
最寄駅
竣工年 1989年5月
規模 地上8階
階数 坪数 賃料+共益費
(坪単価)
敷金・保証金 用途 入居日 詳細 お気に入り
追加
6階
603
22.8坪 相談 6ヶ月
事務所
即日 お問合せ お気に入り追加

担当者のコメント

奥州街道に面し、青森駅から徒歩13分に位置するオフィスビルです。
周辺には官公庁があり、青い森公園にも近接している立地になります。

物件No 0021455
住所 大阪府大阪市東成区中道1-4-2
最寄駅
竣工年 1989年5月
規模 地上10階 地下2階
階数 坪数 賃料+共益費
(坪単価)
敷金・保証金 用途 入居日 詳細 お気に入り
追加
1階 36.71坪 517,000円(税別)
(14,083円/坪)
相談
事務所
店舗
即日 お問合せ お気に入り追加

担当者のコメント

森之宮スカイガーデンハウスは、1989年5月に建てられた地上10階地下2階の建物です。新耐震構造かつ機械警備もあり安心です。また、24時間の使用可能となっています。事務所、店舗をお探しの方にはぴったりの物件です。
最寄り駅はJR大阪環状線森ノ宮駅、大阪メトロ中央線森ノ宮駅、大阪メトロ長堀鶴見緑地線森ノ宮駅と交通の便の良い立地です。最短の駅からは徒歩4分と駅から近いことも魅力です。個別空調、エレベータ1基を完備しています。また駐車場も完備しています。

Copyright(C) Quick Consulting Co.,LTD. All right reserved.