こだわり条件で再検索

坪数
(面積)
賃料+共益費
賃料+共益費
(坪当たり)
最寄駅
徒歩
築年数




用途





快適


安全


の賃貸オフィス・賃貸事務所 6383 棟 ( 15592 区画)

階数 坪数 賃料+共益費
(坪単価)
敷金・保証金 用途 入居日 詳細 お気に入り
追加
6階 52.07坪 相談 12ヶ月
事務所
2026年7月 お問合せ お気に入り追加

担当者のコメント

京阪堂島ビルは、2004年竣工のハイグレードオフィスビルです。外観は美しく、エントランスも清潔感があり、ご来客者様からの印象も良いでしょう。貸室も天井高が2800㎜あり、開放感がございます。

物件No 0010971
住所 千葉県松戸市松戸1281-29
最寄駅
竣工年 1984年9月
規模 地上6階 地下1階
階数 坪数 賃料+共益費
(坪単価)
敷金・保証金 用途 入居日 詳細 お気に入り
追加
1階
契約予定
111.31坪 相談 12ヶ月
事務所
店舗
即日 お問合せ お気に入り追加
3階
B 契約予定
59.98坪 相談 12ヶ月
事務所
即日 お問合せ お気に入り追加

担当者のコメント

松戸エリアの大型貸事務所
各線松戸駅徒歩4分の賃貸オフィス
松戸エリアの大型事務所物件です。白い外観で清潔感のあるビルです。1階には証券会社が入居中です。新耐震基準、2010年に大規模改修、2016年にエントランス・トイレ等も改修実施済みです。周辺にはデパートや飲食店が複数あり便利な環境です。

物件No 0001423
住所 神奈川県横浜市中区本町2-22
最寄駅
竣工年 1982年2月
規模 地上11階 地下2階
階数 坪数 賃料+共益費
(坪単価)
敷金・保証金 用途 入居日 詳細 お気に入り
追加
1階
北1~4(申込有)
130.62坪 相談 12ヶ月
事務所
即日 お問合せ お気に入り追加
7階
北1~2(申込有)
84.37坪 相談 12ヶ月
事務所
即日 お問合せ お気に入り追加
7階
北3~4(申込有)
77.89坪 相談 12ヶ月
事務所
即日 お問合せ お気に入り追加
8階
北1~4(申込有)
162.24坪 相談 12ヶ月
事務所
即日 お問合せ お気に入り追加
8階
南1~2(申込有)
77.35坪 相談 12ヶ月
事務所
即日 お問合せ お気に入り追加
10階
北3(申込有)
37.79坪 相談 12ヶ月
事務所
即日 お問合せ お気に入り追加

担当者のコメント

京阪横浜ビルは、本町通り沿いにあるガラス張りのハイグレードオフィスビルです。駐車場もございますので、営業で車移動の多い企業様にもオススメです。貸室内は無柱空間のためレイアウトしやすい形状です。

物件No 0021145
住所 大阪府大阪市中央区北浜3-2-25
最寄駅
竣工年 1963年11月
規模 地上9階 地上1階
階数 坪数 賃料+共益費
(坪単価)
敷金・保証金 用途 入居日 詳細 お気に入り
追加
6階 85.63坪 相談 相談
事務所
相談 お問合せ お気に入り追加

担当者のコメント

京阪淀屋橋ビルは、淀屋橋駅直結の賃貸オフィスビルです。竣工年数は経っておりますが平成24年に耐震補強工事済みで、随時リニューアルしているため悪くないと思いますので、是非ご内見ください。

階数 坪数 賃料+共益費
(坪単価)
敷金・保証金 用途 入居日 詳細 お気に入り
追加
14階 200.67坪 相談 12ヶ月
事務所
2026年7月 お問合せ お気に入り追加

担当者のコメント

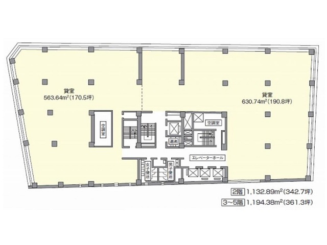
京阪神御堂筋ビルは、大阪市中央区道修町に位置し、御堂筋沿いのビジネス街の中心に立地しています。淀屋橋駅から徒歩2分の好アクセスで、周辺には銀行や郵便局、飲食店が充実。免震構造を採用し、BCP性能が高く、2回線受電方式や非常用発電機を備えているため、災害時のリスクにも強い設計です。天井高2,600mm、LED照明、Low-Eガラスなど環境に配慮した設備も完備。大理石を使用した4.2mの高さを誇るエントランスロビーは、シンプルでありながら格調高い空間で、訪れる人に温かみを感じさせます。また、地下には駐車場や喫煙・非喫煙エリアに分かれたリフレッシュコーナーもあり、快適なビジネス環境が整っています。

物件No 0019723
住所 大阪府大阪市中央区今橋4-4-7
最寄駅
竣工年 2001年2月
規模 地上11階 地下1階
階数 坪数 賃料+共益費
(坪単価)
敷金・保証金 用途 入居日 詳細 お気に入り
追加
3階 46.79坪 相談 12ヶ月
事務所
2026年6月 お問合せ お気に入り追加

担当者のコメント

京阪神淀屋橋ビルは、淀屋橋駅から徒歩2分のハイグレードオフィスビルです。淀屋橋駅周辺の中でも、今橋4丁目エリアは特に落ち着いたオフィスエリアで、ブランディングの強化には打ってつけです。

階数 坪数 賃料+共益費
(坪単価)
敷金・保証金 用途 入居日 詳細 お気に入り
追加
8階
先行有
191坪 相談 12ヶ月
事務所
2026年10月 お問合せ お気に入り追加

担当者のコメント

京阪神瓦町ビルは、大阪市中央区瓦町4-2-14に位置し、御堂筋沿いにある便利なオフィスビルです。本町駅から徒歩3分という好立地で、大阪ビジネス街の中心にあり、銀行や飲食店が豊富に揃っているため、ビジネス環境として非常に優れています。また、ビルの1階には郵便局があり、地下には食堂も備わっており、日常的な業務や食事にも便利な環境が整っています。

ビルは新耐震基準相当を満たしており、平成11年には全館リニューアルが行われているため、建物全体が快適に維持されています。エントランスは石造りで、古いビルならではの重厚感と風格を感じさせ、来訪者に良い印象を与えます。フロアの天井高は2500㎜と低めですが、LED照明により明るく圧迫感や軽減されています。OAフロアのためオフィスレイアウトの自由度も高めです。セキュリティ対策として機械警備も導入され、安心して利用できる点も魅力です。

エレベーターは4基設置されており、荷物用エレベーターも完備されているため、オフィス内外の移動や荷物の搬入もスムーズに行えます。大通り沿いにありながら、賃料はリーズナブルに設定されており、コストパフォーマンスに優れた物件です。リニューアル後も良好な管理が行われており、快適で使いやすいオフィス環境を提供しています。

物件No 0002079
住所 京都府京都市伏見区深草堀田町10-1
最寄駅
竣工年 要確認
規模 地上階
階数 坪数 賃料+共益費
(坪単価)
敷金・保証金 用途 入居日 詳細 お気に入り
追加
8階 20.93坪 相談 相談
事務所
2026年1月 お問合せ お気に入り追加

担当者のコメント

京都その他・近郊エリアにある京阪藤の森ビルは、要確認に建てられた地上階の建物です。旧耐震構造です。また、24時間の使用可能となっています。事務所をお探しの方にはぴったりの物件です。
最寄り駅は京阪本線藤森駅、京阪本線墨染駅、JR奈良線稲荷駅、JR奈良線JR藤森駅、近鉄京都線竹田駅と交通の便の良い立地です。最短の駅からは徒歩2分と駅から近いことも魅力です。個別空調を完備しています。

階数 坪数 賃料+共益費
(坪単価)
敷金・保証金 用途 入居日 詳細 お気に入り
追加
5階
ハーフセットアップ
158.06坪 4,700,000円(税別)
(29,736円/坪)
6ヶ月
事務所
即日 お問合せ お気に入り追加

担当者のコメント

複数駅から徒歩圏内のセットアップオフィスです。移転時にかかる費用と時間を削減できます。屋上庭園が付いていたりハイグレードです。

物件No 0045969
住所 東京都中央区日本橋人形町1-4-10
最寄駅
竣工年 1994年3月
規模 地上9階 地下2階
階数 坪数 賃料+共益費
(坪単価)
敷金・保証金 用途 入居日 詳細 お気に入り
追加
7階
居抜き 申込有
110.67坪 相談 12ヶ月
事務所
2026年3月 お問合せ お気に入り追加

担当者のコメント

人形町・小伝馬町・馬喰町エリアにある人形町センタービルは、1994年3月に建てられた地上9階地下2階の建物です。新耐震構造かつ機械警備もあり安心です。また、24時間の使用可能となっています。事務所をお探しの方にはぴったりの物件です。
最寄り駅は東京メトロ日比谷線人形町駅、東京メトロ半蔵門線水天宮前駅です。最短の駅からは徒歩1分と駅から近いことも魅力です。個別空調、エレベータ2基を完備しています。また機械式の駐車場も完備しています。

Copyright(C) Quick Consulting Co.,LTD. All right reserved.