こだわり条件で再検索

坪数
(面積)
賃料+共益費
賃料+共益費
(坪当たり)
最寄駅
徒歩
築年数




用途





快適


安全


の賃貸オフィス・賃貸事務所 6153 棟 ( 15255 区画)

物件No 0039012
住所 大阪府大阪市北区中之島3-3-3
最寄駅
竣工年 2002年9月
規模 地上31階 地下2階
階数 坪数 賃料+共益費
(坪単価)
敷金・保証金 用途 入居日 詳細 お気に入り
追加
11階
1102
113.95坪 相談 相談
事務所
2026年4月 お問合せ お気に入り追加

担当者のコメント

中之島三井ビルディングは、大阪市北区中之島三丁目に位置し、中之島の高層オフィスビル群の一角を占める洗練されたオフィスビルです。耐震性能は一般的な高層ビルの1.3倍と、地震対策に優れており、BCP性能としては3回線受電システムを備え、災害時の信頼性も高く安心です。渡辺橋から徒歩1分の利便性の良い立地にあり、アクセス面でも優れています。駅直結ではないものの、敷地内に出入口があります。

ビルのデザインはシーザー・ぺリ氏によるもので、美しく独創的な外観が訪れる人々に強い印象を与えます。天井高は2800㎜と開放感があり、OAフロアの厚みも125㎜と業務に適したスペックです。また、床荷重500㎏/㎡、電気容量50VA/㎡と機能面でも高いパフォーマンスを誇ります。

ビル内の環境にも配慮が行き届いており、1階と2階にはリフレッシュスペースが設けられ、4階にはダイニング、カフェ&BAR、集中ブース、会議室など、多様なワークスタイルをサポートする施設が充実しています。機械警備と有人警備の併用により、セキュリティ面も安心です。

階数 坪数 賃料+共益費
(坪単価)
敷金・保証金 用途 入居日 詳細 お気に入り
追加
3階 34.72坪 347,200円(税別)
(10,000円/坪)
3ヶ月
事務所
即日 お問合せ お気に入り追加
6階 34.72坪 347,200円(税別)
(10,000円/坪)
3ヶ月
事務所
即日 お問合せ お気に入り追加
8階 26.19坪 261,900円(税別)
(10,000円/坪)
3ヶ月
事務所
即日 お問合せ お気に入り追加

担当者のコメント

西本町エリアにある中井産業ビル2号館は、1993年11月に建てられた地上9階の建物です。新耐震構造かつ機械警備もあり安心です。また、24時間の使用可能となっています。事務所をお探しの方にはぴったりの物件です。
最寄り駅は大阪メトロ四つ橋線本町駅、大阪メトロ中央線本町駅、大阪メトロ御堂筋線本町駅、大阪メトロ長堀鶴見緑地線西大橋駅、大阪メトロ長堀鶴見緑地線心斎橋駅と交通の便の良い立地です。最短の駅からは徒歩4分と駅から近いことも魅力です。個別空調、エレベータ1基を完備しています。

物件No 0020804
住所 大阪府大阪市中央区博労町2-4-11
最寄駅
竣工年 1969年4月
規模 地上1階 地上1階
階数 坪数 賃料+共益費
(坪単価)
敷金・保証金 用途 入居日 詳細 お気に入り
追加
2階
207
46.88坪 609,440円(税別)
(13,000円/坪)
相談
事務所
即日 お問合せ お気に入り追加
2階
208
54.16坪 704,080円(税別)
(13,000円/坪)
相談
事務所
即日 お問合せ お気に入り追加
3階
306
23.4坪 304,200円(税別)
(13,000円/坪)
相談
事務所
即日 お問合せ お気に入り追加
3階
305
22.5坪 292,500円(税別)
(13,000円/坪)
相談
事務所
即日 お問合せ お気に入り追加
3階
307
45.53坪 591,890円(税別)
(13,000円/坪)
相談
事務所
即日 お問合せ お気に入り追加
3階
303
22.82坪 296,660円(税別)
(13,000円/坪)
相談
事務所
即日 お問合せ お気に入り追加
3階
302
18.84坪 244,920円(税別)
(13,000円/坪)
相談
事務所
即日 お問合せ お気に入り追加
3階
304
43.56坪 566,280円(税別)
(13,000円/坪)
相談
事務所
即日 お問合せ お気に入り追加
4階
407
24.72坪 321,360円(税別)
(13,000円/坪)
相談
事務所
即日 お問合せ お気に入り追加
4階
409
59.3坪 770,900円(税別)
(13,000円/坪)
相談
事務所
即日 お問合せ お気に入り追加
4階
410
54.16坪 704,080円(税別)
(13,000円/坪)
相談
事務所
即日 お問合せ お気に入り追加
4階
401
22.09坪 287,170円(税別)
(13,000円/坪)
相談
事務所
即日 お問合せ お気に入り追加
5階
506
19.84坪 257,920円(税別)
(13,000円/坪)
相談
事務所
即日 お問合せ お気に入り追加
5階
508
46.88坪 609,440円(税別)
(13,000円/坪)
相談
事務所
即日 お問合せ お気に入り追加
6階
607
15.37坪 199,810円(税別)
(13,000円/坪)
相談
事務所
即日 お問合せ お気に入り追加
7階
708
6.9坪 89,700円(税別)
(13,000円/坪)
相談
事務所
即日 お問合せ お気に入り追加
7階
711
6.7坪 87,100円(税別)
(13,000円/坪)
相談
事務所
即日 お問合せ お気に入り追加

担当者のコメント

基準階385坪の大型オフィスビル。
大阪市営地下鉄堺筋線、長堀鶴見緑地線「長堀橋」駅徒歩圏内。
本町駅、堺筋本町駅、長堀橋駅、心斎橋駅の4駅利用可能な便利な立地です。
2005年に大幅リニューアル工事を実施しており管理体制も良好です。

階数 坪数 賃料+共益費
(坪単価)
敷金・保証金 用途 入居日 詳細 お気に入り
追加
7階
1フロア
44.42坪 444,200円(税別)
(10,000円/坪)
10ヶ月
事務所
2026年3月 お問合せ お気に入り追加

担当者のコメント

大津通り面す、最寄駅地下鉄名城線「東別院」より4分。
金山駅からも徒歩圏で支店・営業所ニーズにマッチします。

物件No 0019436
住所 大阪府大阪市中央区安土町3-2-2
最寄駅
竣工年 1971年3月
規模 地上7階 地上1階
階数 坪数 賃料+共益費
(坪単価)
敷金・保証金 用途 入居日 詳細 お気に入り
追加
2階 26.4坪 290,400円(税別)
(11,000円/坪)
6ヶ月
事務所
即日 お問合せ お気に入り追加

担当者のコメント

本町・堺筋本町エリアにある中外ビルは、1971年3月に建てられた地上7階地上1階の建物です。旧耐震構造で機械警備もあります。事務所をお探しの方にはぴったりの物件です。
最寄り駅は大阪メトロ御堂筋線本町駅、大阪メトロ四つ橋線本町駅、大阪メトロ中央線本町駅と交通の便の良い立地です。最短の駅からは徒歩3分と駅から近いことも魅力です。個別空調、エレベータ1基を完備しています。

階数 坪数 賃料+共益費
(坪単価)
敷金・保証金 用途 入居日 詳細 お気に入り
追加
3階 16.89坪 相談 10ヶ月
事務所
2026年6月 お問合せ お気に入り追加
4階 22.42坪 相談 10ヶ月
事務所
即日 お問合せ お気に入り追加

担当者のコメント

福島区エリアにある中央ビルは、1989年8月に建てられた地上5階の建物です。新耐震構造かつ機械警備もあり安心です。また、24時間の使用可能となっています。事務所をお探しの方にはぴったりの物件です。
最寄り駅は大阪メトロ千日前線玉川駅、JR大阪環状線野田駅、大阪メトロ千日前線阿波座駅、京阪中之島線中之島駅、大阪メトロ中央線阿波座駅と交通の便の良い立地です。最短の駅からは徒歩5分と駅から近いことも魅力です。個別空調、エレベータ1基を完備しています。また駐車場も完備しています。

階数 坪数 賃料+共益費
(坪単価)
敷金・保証金 用途 入居日 詳細 お気に入り
追加
6階
分割ABC
140.96坪 相談 相談
事務所
相談 お問合せ お気に入り追加
6階
分割ABCD
177.65坪 相談 相談
事務所
相談 お問合せ お気に入り追加
6階
分割E
58.68坪 相談 相談
事務所
相談 お問合せ お気に入り追加
6階
分割DE
95.37坪 相談 相談
事務所
相談 お問合せ お気に入り追加
6階
分割D
36.7坪 相談 相談
事務所
相談 お問合せ お気に入り追加
6階
分割B
36.36坪 相談 相談
事務所
相談 お問合せ お気に入り追加
6階
分割AB
95.48坪 相談 相談
事務所
相談 お問合せ お気に入り追加
6階
分割A
59.13坪 相談 相談
事務所
相談 お問合せ お気に入り追加
6階
分割C
45.48坪 相談 相談
事務所
相談 お問合せ お気に入り追加
6階
分割BCDE
177.21坪 相談 相談
事務所
相談 お問合せ お気に入り追加
6階
分割CDE
140.85坪 相談 相談
事務所
相談 お問合せ お気に入り追加
6階
申込有
236.35坪 相談 相談
事務所
相談 お問合せ お気に入り追加

担当者のコメント

2025年6月竣工予定 博多駅前エリア 新築オフィスビル

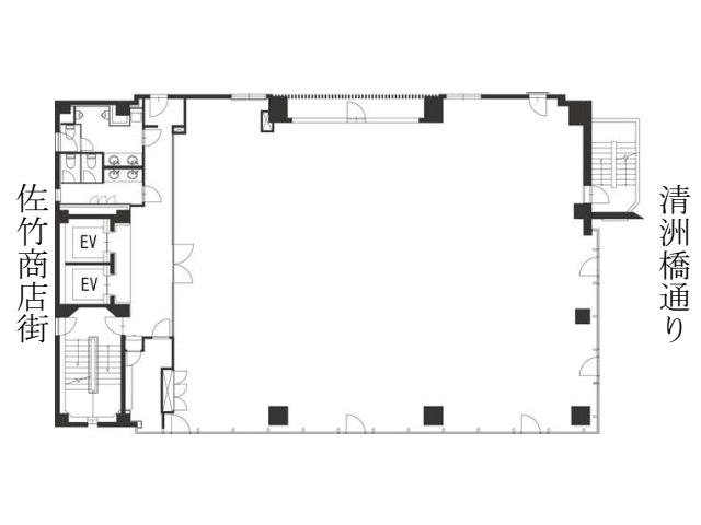
物件No 0018275
住所 東京都台東区台東3-29-1
最寄駅
竣工年 1992年1月
規模 地上9階
階数 坪数 賃料+共益費
(坪単価)
敷金・保証金 用途 入居日 詳細 お気に入り
追加
2階 93.61坪 1,497,760円(税別)
(16,000円/坪)
6ヶ月
事務所
2026年8月 お問合せ お気に入り追加

担当者のコメント

清洲橋通り沿いの物件です。ガラス張りの外観で室内は明るく開放感があります。間取りが整形でレイアウトがしやすいです。

階数 坪数 賃料+共益費
(坪単価)
敷金・保証金 用途 入居日 詳細 お気に入り
追加
4階
北・中
75.27坪 相談 12ヶ月
事務所
即日 お問合せ お気に入り追加
9階
38.7坪 相談 12ヶ月
事務所
2026年4月 お問合せ お気に入り追加

担当者のコメント

中尾ロイヤルビルは、東三国駅から徒歩5分の賃貸オフィスビルです。新御堂筋に面した、重厚感ある外観とエントランスが魅力です。個別空調、新耐震基準、OAフロア、機械警備と、標準以上のスペックです。

階数 坪数 賃料+共益費
(坪単価)
敷金・保証金 用途 入居日 詳細 お気に入り
追加
9階
901
19.53坪 292,950円(税別)
(15,000円/坪)
1,046,250円
倉庫・工場
2026年2月 お問合せ お気に入り追加

担当者のコメント

中川ビルは、湯島駅から徒歩2分のオフィスビルです。春日通り沿い、湯島天神の隣に立地します。エントランスや2階及び3階の共用部がリニューアル済みです。各執務スペースは柱の無い空間です。

Copyright(C) Quick Consulting Co.,LTD. All right reserved.