こだわり条件で再検索

坪数
(面積)
賃料+共益費
賃料+共益費
(坪当たり)
最寄駅
徒歩
築年数




用途





快適


安全


の賃貸オフィス・賃貸事務所 6506 棟 ( 15845 区画)

階数 坪数 賃料+共益費
(坪単価)
敷金・保証金 用途 入居日 詳細 お気に入り
追加
4階 33.46坪 635,740円(税別)
(19,000円/坪)
8ヶ月
事務所
即日 お問合せ お気に入り追加
5階 33.46坪 635,740円(税別)
(19,000円/坪)
7ヶ月
事務所
即日 お問合せ お気に入り追加
7階 33.46坪 568,820円(税別)
(17,000円/坪)
8ヶ月
事務所
即日 お問合せ お気に入り追加
8階 33.46坪 635,740円(税別)
(19,000円/坪)
7ヶ月
事務所
即日 お問合せ お気に入り追加

担当者のコメント

日比谷通りに面し、内幸町駅徒歩2分と新橋駅徒歩5分で利用可能な物件です。1フロア1テナントタイプで他のテナントに気兼ねなく利用ができます。

階数 坪数 賃料+共益費
(坪単価)
敷金・保証金 用途 入居日 詳細 お気に入り
追加
3階 67.15坪 1,477,300円(税別)
(22,000円/坪)
12ヶ月
事務所
2026年4月 お問合せ お気に入り追加
8階 67.15坪 1,477,300円(税別)
(22,000円/坪)
12ヶ月
事務所
即日 お問合せ お気に入り追加

担当者のコメント

長友ランディックビルは、日比谷通り沿いのオフィスビルです。前面ミラーガラスの外観であり、周囲の中で視認性が良いです。室内は長方形の無柱空間でレイアウトがしやすいです。

※レンタルオフィスの募集状況は流動的なため下記は仮表示です。最新の募集状況はお問合せ下さい。
※また、レンタルオフィスの面積は仮の数値です。実際の面積とは異なりますのでご注意ください
階数 坪数 賃料+共益費
(坪単価)
敷金・保証金 用途 入居日 詳細 お気に入り
追加
5階
507
1.46坪 85,000円(税別)
(58,219円/坪)
レンタルオフィス
相談 お問合せ お気に入り追加
7階
701
6.32坪 205,000円(税別)
(32,437円/坪)
レンタルオフィス
相談 お問合せ お気に入り追加
7階
703
2.63坪 138,000円(税別)
(52,471円/坪)
レンタルオフィス
相談 お問合せ お気に入り追加
7階
705
1.5坪 88,000円(税別)
(58,667円/坪)
レンタルオフィス
相談 お問合せ お気に入り追加

担当者のコメント

入室契約金と初月の家賃だけですぐにご利用可能です。
水道光熱費や更新料・退去時原状回復費用はかかりません。
会議室・オフィス家具・インターネットが無料でご利用できます。
他空室ございますのでお気軽にお問合せください。

物件No 0059354
住所 東京都港区新橋3-2-3
最寄駅
竣工年 1971年4月
規模 地上6階
階数 坪数 賃料+共益費
(坪単価)
敷金・保証金 用途 入居日 詳細 お気に入り
追加
5階 30坪 405,000円(税別)
(13,500円/坪)
6ヶ月
事務所
即日 お問合せ お気に入り追加

担当者のコメント

新橋・虎ノ門・浜松町エリアにある千代川ビルは、1971年4月に建てられた地上6階の建物です。旧耐震構造で機械警備もあります。また、24時間の使用可能となっています。事務所をお探しの方にはぴったりの物件です。
最寄り駅は都営三田線内幸町駅、JR京浜東北線新橋駅、東京メトロ日比谷線虎ノ門ヒルズ駅と交通の便の良い立地です。最短の駅からは徒歩3分と駅から近いことも魅力です。個別空調、エレベータ1基を完備しています。

物件No 0040813
住所 東京都港区新橋3-3-13
最寄駅
竣工年 2017年10月
規模 地上12階 地下1階
階数 坪数 賃料+共益費
(坪単価)
敷金・保証金 用途 入居日 詳細 お気に入り
追加
11階
申込有
110.33坪 相談 12ヶ月
事務所
即日 お問合せ お気に入り追加

担当者のコメント

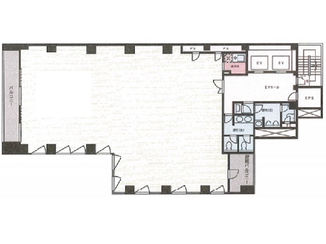
日比谷通り沿いのハイスペックオフィスビルです。水周りが奥にある理由は、恐らく次世代オフィスに求められる、コワーキングスペースの設置を想定しているからだと思います。

物件No 0004423
住所 東京都港区新橋3-4-5
最寄駅
竣工年 1993年3月
規模 地上10階 地下2階
階数 坪数 賃料+共益費
(坪単価)
敷金・保証金 用途 入居日 詳細 お気に入り
追加
7階 52.92坪 相談 10ヶ月
事務所
2026年2月 お問合せ お気に入り追加

担当者のコメント

人気の新橋エリアにある中規模オフィスビルです。石造りのエントランスが好印象です。また、無柱空間で水回りが室外にあり、レイアウトがしやすいのが魅力的です。

物件No 0051538
住所 東京都港区新橋3-9-10
最寄駅
竣工年 2017年
規模 地上10階 地下1階
※レンタルオフィスの募集状況は流動的なため下記は仮表示です。最新の募集状況はお問合せ下さい。
※また、レンタルオフィスの面積は仮の数値です。実際の面積とは異なりますのでご注意ください
階数 坪数 賃料+共益費
(坪単価)
敷金・保証金 用途 入居日 詳細 お気に入り
追加
2階
2名用
1.46坪 相談 相談
レンタルオフィス
相談 お問合せ お気に入り追加
5階
9名用
5.19坪 相談 相談
レンタルオフィス
相談 お問合せ お気に入り追加
7階
2名用
1.46坪 相談 相談
レンタルオフィス
相談 お問合せ お気に入り追加
10階
1名用
0.68坪 相談 相談
レンタルオフィス
相談 お問合せ お気に入り追加

担当者のコメント

新橋・虎ノ門・浜松町エリアにある天翔オフィス新橋赤レンガ通りは、2017年に建てられた地上10階地下1階の建物です。新耐震構造かつ機械警備もあり安心です。また、24時間の使用可能となっています。レンタルオフィスをお探しの方にはぴったりの物件です。
最寄り駅はJR京浜東北線新橋駅、JR山手線新橋駅、JR東海道本線新橋駅、東京メトロ銀座線虎ノ門駅と交通の便の良い立地です。最短の駅からは徒歩3分と駅から近いことも魅力です。エレベータ1基を完備しています。

物件No 0004449
住所 東京都港区新橋4-11-1
最寄駅
竣工年 1999年3月
規模 地上9階 地下2階
階数 坪数 賃料+共益費
(坪単価)
敷金・保証金 用途 入居日 詳細 お気に入り
追加
2階 162.39坪 相談 12ヶ月
事務所
2026年3月 お問合せ お気に入り追加

担当者のコメント

視認性に優れた新橋貸事務所
交通は新橋駅が最寄でとほ4分、他汐留駅、内幸町駅、御成門駅が徒歩圏内
1999年竣工の新耐震基準で角立地の1階に大手レンタルビデオ屋が1階に入居している視認性のある物件。周辺には桜田公園が正面にあり、飲食店も多く隣にはチェーンの喫茶店があり、オフィスの外でのリフレッシュ、打合せ、ランチに利便性を発揮するでしょう。

物件No 0064883
住所 東京都港区新橋4-15-3
最寄駅
竣工年 要確認
規模 地上2階
階数 坪数 賃料+共益費
(坪単価)
敷金・保証金 用途 入居日 詳細 お気に入り
追加
2階 9.09坪 363,600円(税別)
(40,000円/坪)
8ヶ月
店舗
2025年12月 お問合せ お気に入り追加

担当者のコメント

新橋・虎ノ門・浜松町エリアにあるル・グラシエルBLDG.58は、要確認に建てられた地上2階の建物です。また、24時間の使用可能となっています。店舗をお探しの方にはぴったりの物件です。
最寄り駅はJR山手線新橋駅、ゆりかもめ汐留駅、都営三田線内幸町駅と交通の便の良い立地です。最短の駅からは徒歩3分と駅から近いことも魅力です。

物件No 0064241
住所 東京都港区新橋4-20-3
最寄駅
竣工年 1987年10月
規模 地上4階
階数 坪数 賃料+共益費
(坪単価)
敷金・保証金 用途 入居日 詳細 お気に入り
追加
1階
一棟貸
35.08坪 1,100,000円(税別)
(31,357円/坪)
8ヶ月
事務所
店舗
相談 お問合せ お気に入り追加

担当者のコメント

新橋・虎ノ門・浜松町エリアにあるル・グラシエルBLDG.85は、1987年10月に建てられた地上4階の建物です。新耐震構造で安心です。また、24時間の使用可能となっています。事務所、店舗をお探しの方にはぴったりの物件です。
最寄り駅はJR山手線新橋駅、都営大江戸線汐留駅、都営三田線御成門駅と交通の便の良い立地です。最短の駅からは徒歩5分と駅から近いことも魅力です。個別空調を完備しています。また駐車場も完備しています。

Copyright(C) Quick Consulting Co.,LTD. All right reserved.