こだわり条件で再検索

キーワード
坪数
(面積)
賃料+共益費
賃料+共益費
(坪当たり)
最寄駅
徒歩
築年数




用途





快適


安全


[]を含むの賃貸オフィス・賃貸事務所 6641 棟 ( 16260 区画)

物件No 0030835
住所 東京都文京区大塚2-1-9
最寄駅
竣工年 1992年6月
規模 地上7階
階数 坪数 賃料+共益費
(坪単価)
敷金・保証金 用途 入居日 詳細 お気に入り
追加
3階 41.79坪 459,690円(税別)
(11,000円/坪)
8ヶ月
事務所
即日 お問合せ お気に入り追加

担当者のコメント

駅から徒歩3分と好立地です。間取りが整形でレイアウトがしやすいです。

階数 坪数 賃料+共益費
(坪単価)
敷金・保証金 用途 入居日 詳細 お気に入り
追加
1階
107・108
61.97坪 相談 相談
事務所
店舗
即日 お問合せ お気に入り追加
1階
115
15.27坪 相談 相談
事務所
店舗
即日 お問合せ お気に入り追加
6階
東A
64.46坪 相談 12ヶ月
事務所
即日 お問合せ お気に入り追加
7階
西申込有
42.95坪 相談 12ヶ月
事務所
2027年1月 お問合せ お気に入り追加
7階
東E
35.18坪 相談 相談
事務所
2026年3月 お問合せ お気に入り追加
7階
東C
27.96坪 相談 相談
事務所
2026年3月 お問合せ お気に入り追加
9階
内定
27.96坪 相談 相談
事務所
2026年3月 お問合せ お気に入り追加
11階
東A、内定
64.56坪 相談 12ヶ月
事務所
即日 お問合せ お気に入り追加
11階
西、内定
126.81坪 相談 12ヶ月
事務所
即日 お問合せ お気に入り追加
12階 284.14坪 相談 12ヶ月
事務所
即日 お問合せ お気に入り追加
13階 284.14坪 4,830,380円(税別)
(17,000円/坪)
12ヶ月
事務所
即日 お問合せ お気に入り追加
13階
東A
37.04坪 740,800円(税別)
(20,000円/坪)
12ヶ月
事務所
2026年1月 お問合せ お気に入り追加
13階
西D
42.11坪 842,200円(税別)
(20,000円/坪)
12ヶ月
事務所
2026年4月 お問合せ お気に入り追加
13階
西C
25.4坪 508,000円(税別)
(20,000円/坪)
12ヶ月
事務所
2026年4月 お問合せ お気に入り追加
13階
西B
25.4坪 508,000円(税別)
(20,000円/坪)
12ヶ月
事務所
2026年4月 お問合せ お気に入り追加
13階
西A
34.37坪 687,400円(税別)
(20,000円/坪)
12ヶ月
事務所
2026年1月 お問合せ お気に入り追加
13階
東B、内定
119.81坪 2,276,390円(税別)
(19,000円/坪)
12ヶ月
事務所
2026年1月 お問合せ お気に入り追加

担当者のコメント

五反田・目黒エリアにあるTennozu Bay Towerは、1992年6月に建てられた地上25階地下1階の建物です。新耐震構造かつ機械警備もあり安心です。また、24時間の使用可能となっています。事務所、店舗をお探しの方にはぴったりの物件です。
最寄り駅は東京モノレール天王洲アイル駅、東京臨海高速鉄道天王洲アイル駅、京急本線新馬場駅、京急本線北品川駅、JR山手線品川駅と交通の便の良い立地です。最短の駅からは徒歩1分と駅から近いことも魅力です。OAフロア、セントラル空調、エレベータ8基を完備しています。また駐車場も完備しています。

物件No 0031373
住所 東京都豊島区池袋1-13-18
最寄駅
竣工年 1992年6月
規模 地上8階
階数 坪数 賃料+共益費
(坪単価)
敷金・保証金 用途 入居日 詳細 お気に入り
追加
7階
申込有
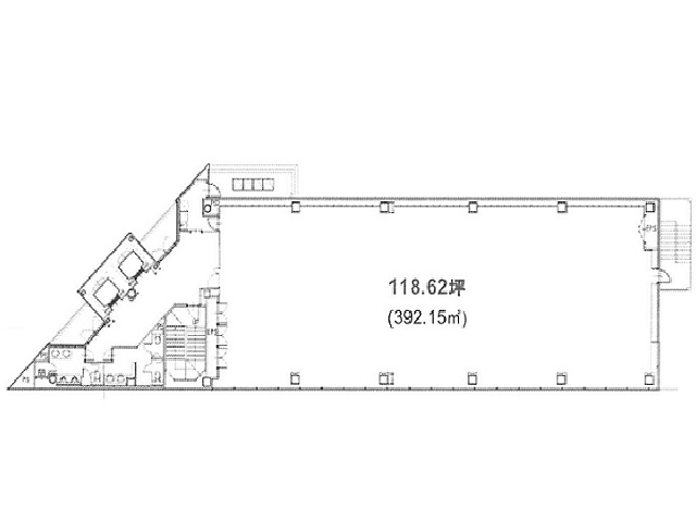
118.62坪 1,779,300円(税別)
(15,000円/坪)
10ヶ月
事務所
店舗
2026年4月 お問合せ お気に入り追加

担当者のコメント

音ノ葉イマス池袋ビルは、複数路線が集まる池袋駅から徒歩9分の距離に位置しています。主要エリアへのアクセスも容易です。1フロア118坪で執務スペースは長方形に近い形状でレイアウトがしやすい造りになっています。

物件No 0000068
住所 埼玉県さいたま市浦和区常盤9-9-1
最寄駅
竣工年 1992年6月
規模 地上4階 地下1階
階数 坪数 賃料+共益費
(坪単価)
敷金・保証金 用途 入居日 詳細 お気に入り
追加
B1階 21.89坪 195,000円(税別)
(8,908円/坪)
6ヶ月
事務所
倉庫・工場
即日 お問合せ お気に入り追加

担当者のコメント

北浦和エリアの事務所、倉庫物件です。
エントランスオートロックの為、セキュリティー面も安心です。
1階駐車場もございます。
他フロア状況も含めて1度お問合せください。

物件No 0012639
住所 東京都新宿区北新宿1-1-18
最寄駅
竣工年 1992年6月
規模 地上8階 地下1階
階数 坪数 賃料+共益費
(坪単価)
敷金・保証金 用途 入居日 詳細 お気に入り
追加
6階
セットアップ
101坪 相談 7ヶ月
事務所
2025年12月 お問合せ お気に入り追加

担当者のコメント

四谷・市ヶ谷・飯田橋エリアにあるダイヤフゲンビルは、1992年6月に建てられた地上8階地下1階の建物です。新耐震構造かつ機械警備もあり安心です。また、24時間の使用可能となっています。事務所をお探しの方にはぴったりの物件です。
最寄り駅はJR中央・総武線大久保駅、JR山手線新大久保駅、JR山手線新宿駅と交通の便の良い立地です。最短の駅からは徒歩3分と駅から近いことも魅力です。個別空調、エレベータ2基を完備しています。また駐車場も完備しています。

物件No 0038308
住所 東京都千代田区神田須田町1-28-2
最寄駅
竣工年 1992年6月
規模 地上9階 地下1階
階数 坪数 賃料+共益費
(坪単価)
敷金・保証金 用途 入居日 詳細 お気に入り
追加
5階 65.95坪 1,253,050円(税別)
(19,000円/坪)
8ヶ月
事務所
2026年6月 お問合せ お気に入り追加

担当者のコメント

ガラス張り、スタイリッシュな外観が特徴的です。エントランスも綺麗で清潔感があります。大通り沿いで駅からも近く便利な立地です。

物件No 0022277
住所 大阪府大阪市北区東天満1-10-12
最寄駅
竣工年 1992年6月
規模 地上9階 地上1階
階数 坪数 賃料+共益費
(坪単価)
敷金・保証金 用途 入居日 詳細 お気に入り
追加
3階
301 ワンフロア
49.3坪 600,000円(税別)
(12,170円/坪)
6ヶ月
事務所
2026年1月 お問合せ お気に入り追加

担当者のコメント

天満ビルは、大阪市北区東天満橋に位置する賃貸オフィスビルです。大阪天満宮駅から徒歩1分、南森町駅から徒歩2分、国道一号線に面した好立地物件です。周辺は賑やかで活気のある環境です。

物件No 0029955
住所 福岡県福岡市博多区千代3-3-4
最寄駅
竣工年 1992年6月
規模 地上10階
階数 坪数 賃料+共益費
(坪単価)
敷金・保証金 用途 入居日 詳細 お気に入り
追加
3階 29.31坪 307,755円(税別)
(10,500円/坪)
6ヶ月
事務所
2026年1月 お問合せ お気に入り追加
5階 29.31坪 307,755円(税別)
(10,500円/坪)
6ヶ月
事務所
即日 お問合せ お気に入り追加

担当者のコメント

地下鉄「千代県庁口」より徒歩5分。御笠川よりほど近い閑静な立地に建ちますオフィスビルのご紹介です。カーテンウォールの外観が印象的な正統派オフィスビルです。OAフロアや警備面等の設備も整っており、千代エリアで物件をお探しの方には是非一度ご検討頂きたい物件となっております。

物件No 0002773
住所 東京都江東区塩浜2-2-10
最寄駅
竣工年 1992年6月
規模 地上9階 地下1階
階数 坪数 賃料+共益費
(坪単価)
敷金・保証金 用途 入居日 詳細 お気に入り
追加
7階
A
43.81坪 525,720円(税別)
(12,000円/坪)
8ヶ月
事務所
2026年4月 お問合せ お気に入り追加

担当者のコメント

ヒキタカ木場ビルは、1992年6月に建てられた地上9階地下1階の建物です。新耐震構造かつ機械警備もあり安心です。また、24時間の使用可能となっています。事務所をお探しの方にはぴったりの物件です。
最寄り駅は東京メトロ東西線木場駅です。OAフロア、個別空調、エレベータ2基を完備しています。また平置きの駐車場も完備しています。

2660 KHOビル

物件No 0010569
住所 東京都渋谷区東3-14-16
最寄駅
竣工年 1992年6月
規模 地上7階
階数 坪数 賃料+共益費
(坪単価)
敷金・保証金 用途 入居日 詳細 お気に入り
追加
2階 21.95坪 496,070円(税別)
(22,600円/坪)
6ヶ月
事務所
2025年11月 お問合せ お気に入り追加
3階 21.95坪 496,070円(税別)
(22,600円/坪)
6ヶ月
事務所
即日 お問合せ お気に入り追加
4階 21.95坪 496,070円(税別)
(22,600円/坪)
6ヶ月
事務所
2025年11月 お問合せ お気に入り追加

担当者のコメント

渋谷エリアにあるKHOビルは、1992年6月に建てられた地上7階の建物です。新耐震構造かつ機械警備もあり安心です。また、24時間の使用可能となっています。事務所をお探しの方にはぴったりの物件です。
最寄り駅はJR山手線恵比寿駅、JR埼京線恵比寿駅、JR山手線渋谷駅、JR埼京線渋谷駅と交通の便の良い立地です。最短の駅からは徒歩7分と駅から近いことも魅力です。個別空調、エレベータ1基を完備しています。

Copyright(C) Quick Consulting Co.,LTD. All right reserved.