こだわり条件で再検索

坪数
(面積)
賃料+共益費
賃料+共益費
(坪当たり)
最寄駅
徒歩
築年数




用途





快適


安全


の賃貸オフィス・賃貸事務所 6249 棟 ( 15393 区画)

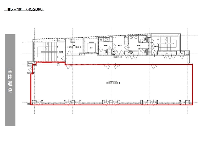
物件No 0039081
住所 福岡県福岡市博多区祇園町4-60
最寄駅
竣工年 2002年12月
規模 地上7階 地上1階
階数 坪数 賃料+共益費
(坪単価)
敷金・保証金 用途 入居日 詳細 お気に入り
追加
4階
2
10.55坪 174,075円(税別)
(16,500円/坪)
12ヶ月
事務所
2026年5月 お問合せ お気に入り追加

担当者のコメント

2002年竣工 JR「博多」駅より徒歩12分
地下鉄「祇園」駅より徒歩4分・「呉服町」駅より8分・「中洲川端」駅より徒歩9分
「国体道路」沿いに建つオフィスビルのご紹介です。
1フロア約50坪の小型オフィスビルになります。
前面ガラス張りになっており、開放感がございます。
10坪から45坪の区画となっており、それぞれのお客様にあったお部屋をご提案できます。
閑静なエリアとなっておりますので、仕事に集中できる環境を提供することが可能です。
呉服町・祇園・中洲エリアで物件をお探しの企業様には是非一度ご覧頂きたい物件になります。

階数 坪数 賃料+共益費
(坪単価)
敷金・保証金 用途 入居日 詳細 お気に入り
追加
3階
301
11.87坪 相談 3ヶ月
事務所
2026年5月 お問合せ お気に入り追加
4階
404
8.9坪 相談 3ヶ月
事務所
2026年2月 お問合せ お気に入り追加
7階
702
9.17坪 相談 3ヶ月
事務所
即日 お問合せ お気に入り追加

担当者のコメント

麹町・番町・市ヶ谷エリアにあるVORT平河町は、2010年5月に建てられた地上10階の建物です。新耐震構造かつ機械警備もあり安心です。また、24時間の使用可能となっています。事務所をお探しの方にはぴったりの物件です。
最寄り駅は東京メトロ有楽町線麹町駅、東京メトロ半蔵門線半蔵門駅、東京メトロ半蔵門線永田町駅、東京メトロ銀座線赤坂見附駅と交通の便の良い立地です。最短の駅からは徒歩3分と駅から近いことも魅力です。OAフロア、個別空調、エレベータ1基を完備しています。

物件No 0002595
住所 広島県広島市中区幟町13-11
最寄駅
竣工年 1990年7月
規模 地上12階 地下1階
階数 坪数 賃料+共益費
(坪単価)
敷金・保証金 用途 入居日 詳細 お気に入り
追加
3階 39.2坪 相談 12ヶ月
事務所
2026年7月 お問合せ お気に入り追加
8階 24.88坪 相談 12ヶ月
事務所
即日 お問合せ お気に入り追加

担当者のコメント

広島市中区エリアにある明治安田生命広島幟町ビルは、1990年7月に建てられた地上12階地下1階の建物です。新耐震構造かつ機械警備もあり安心です。また、24時間の使用可能となっています。事務所をお探しの方にはぴったりの物件です。
最寄り駅は広電1系統(宇品線)胡町駅、広電2系統(宮島線)胡町駅、広電6系統(江波線)胡町駅と交通の便の良い立地です。最短の駅からは徒歩1分と駅から近いことも魅力です。OAフロア、個別空調、エレベータ4基を完備しています。また機械式の駐車場も完備しています。

物件No 0008636
住所 鹿児島県鹿児島市西千石町17-3
最寄駅
竣工年 1992年3月
規模 地上8階 地下1階
階数 坪数 賃料+共益費
(坪単価)
敷金・保証金 用途 入居日 詳細 お気に入り
追加
2階 24.39坪 相談 12ヶ月
事務所
即日 お問合せ お気に入り追加
3階 38.84坪 相談 12ヶ月
事務所
即日 お問合せ お気に入り追加
4階 33.59坪 相談 12ヶ月
事務所
2026年5月 お問合せ お気に入り追加
8階 23.69坪 相談 12ヶ月
事務所
即日 お問合せ お気に入り追加

担当者のコメント

鹿児島市電「高見馬場」電停より徒歩1分。
「高見馬場」交差点の目の前にあります、
大通り沿いに面するオフィスビルのご紹介です。
鹿児島の正統派オフィスビルです。
曲面を描いた外観は記憶に残るオフィスになります。
共用部分の管理も行き届いており快適なオフィス空間をご提供致します。
鹿児島エリアで物件をお探しのお客様は
是非一度お問い合わせください。

物件No 0044424
住所 東京都千代田区神田神保町3-5
最寄駅
竣工年 1990年12月
規模 地上9階 地下1階
階数 坪数 賃料+共益費
(坪単価)
敷金・保証金 用途 入居日 詳細 お気に入り
追加
3階 42.5坪 701,250円(税別)
(16,500円/坪)
5ヶ月
事務所
即日 お問合せ お気に入り追加

担当者のコメント

白を基調とした明るいエントランス
神保町駅から徒歩3分程
1フロアに2部屋ある物件です。1部屋を会議室に1部屋を執務スペースで使用すれば入居時の工事費を掛けずに音の漏れない会議室を利用する事が可能です。

物件No 0005494
住所 東京都港区赤坂7-10-20
最寄駅
竣工年 1985年11月
規模 地上8階 地下1階
階数 坪数 賃料+共益費
(坪単価)
敷金・保証金 用途 入居日 詳細 お気に入り
追加
1階
A101
157.14坪 3,928,500円(税別)
(25,000円/坪)
12ヶ月
事務所
即日 お問合せ お気に入り追加
2階 279.64坪 6,152,080円(税別)
(22,000円/坪)
12ヶ月
事務所
即日 お問合せ お気に入り追加
3階 241.51坪 5,313,220円(税別)
(22,000円/坪)
12ヶ月
事務所
即日 お問合せ お気に入り追加
4階 198.75坪 4,372,500円(税別)
(22,000円/坪)
12ヶ月
事務所
即日 お問合せ お気に入り追加
6階
A601
175坪 3,850,000円(税別)
(22,000円/坪)
12ヶ月
事務所
即日 お問合せ お気に入り追加
7階 122.67坪 2,698,740円(税別)
(22,000円/坪)
12ヶ月
事務所
即日 お問合せ お気に入り追加
8階 69.07坪 1,519,540円(税別)
(22,000円/坪)
12ヶ月
事務所
即日 お問合せ お気に入り追加

担当者のコメント

赤坂通りから一本入った立地です。特徴的な外観で目立ちます。設備も充実しているので快適にご利用できます。

物件No 0039031
住所 栃木県宇都宮市大通り2-2-3
最寄駅
竣工年 1993年7月
規模 地上9階
階数 坪数 賃料+共益費
(坪単価)
敷金・保証金 用途 入居日 詳細 お気に入り
追加
2階 15.17坪 相談 12ヶ月
事務所
即日 お問合せ お気に入り追加
5階 31.01坪 相談 12ヶ月
事務所
2026年5月 お問合せ お気に入り追加
9階 13.07坪 相談 相談
事務所
相談 お問合せ お気に入り追加

担当者のコメント

栃木にある明治安田生命宇都宮大工町ビルは、1993年7月に建てられた地上9階の建物です。新耐震構造かつ機械警備もあり安心です。また、24時間の使用可能となっています。事務所をお探しの方にはぴったりの物件です。
最寄り駅はJR東北本線(宇都宮線)宇都宮駅です。最短の駅からは徒歩8分と駅から近いことも魅力です。個別空調、エレベータ2基を完備しています。また機械式の駐車場も完備しています。

物件No 0039032
住所 栃木県宇都宮市馬場通り1-1-11
最寄駅
竣工年 1991年1月
規模 地上10階 地下2階
階数 坪数 賃料+共益費
(坪単価)
敷金・保証金 用途 入居日 詳細 お気に入り
追加
1階
22.2坪 相談 相談
事務所
即日 お問合せ お気に入り追加
3階 57.16坪 相談 相談
事務所
即日 お問合せ お気に入り追加

担当者のコメント

栃木にある宇都宮TDビルは、1991年1月に建てられた地上10階地下2階の建物です。新耐震構造かつ機械警備もあり安心です。また、24時間の使用可能となっています。事務所をお探しの方にはぴったりの物件です。
最寄り駅は東武宇都宮線東武宇都宮駅、JR東北本線(宇都宮線)宇都宮駅です。最短の駅からは徒歩7分と駅から近いことも魅力です。OAフロア、セントラル空調、エレベータ4基を完備しています。

物件No 0031807
住所 福岡県北九州市小倉北区堺町1-3-15
最寄駅
竣工年 1983年1月
規模 地上10階
階数 坪数 賃料+共益費
(坪単価)
敷金・保証金 用途 入居日 詳細 お気に入り
追加
6階
先行有
41.1坪 相談 12ヶ月
事務所
即日 お問合せ お気に入り追加

担当者のコメント

小倉エリアにある日本生命小倉堺町ビルは、1983年1月に建てられた地上10階の建物です。新耐震構造かつ機械警備もあり安心です。また、24時間の使用可能となっています。事務所をお探しの方にはぴったりの物件です。
最寄り駅は北九州高速鉄道小倉駅、JR鹿児島本線小倉駅、JR日豊本線小倉駅と交通の便の良い立地です。最短の駅からは徒歩10分と駅から近いことも魅力です。OAフロア、個別空調、エレベータ3基を完備しています。また機械式の駐車場も完備しています。

物件No 0039012
住所 大阪府大阪市北区中之島3-3-3
最寄駅
竣工年 2002年9月
規模 地上31階 地下2階
階数 坪数 賃料+共益費
(坪単価)
敷金・保証金 用途 入居日 詳細 お気に入り
追加
11階
1102
113.95坪 相談 相談
事務所
2026年4月 お問合せ お気に入り追加

担当者のコメント

中之島三井ビルディングは、大阪市北区中之島三丁目に位置し、中之島の高層オフィスビル群の一角を占める洗練されたオフィスビルです。耐震性能は一般的な高層ビルの1.3倍と、地震対策に優れており、BCP性能としては3回線受電システムを備え、災害時の信頼性も高く安心です。渡辺橋から徒歩1分の利便性の良い立地にあり、アクセス面でも優れています。駅直結ではないものの、敷地内に出入口があります。

ビルのデザインはシーザー・ぺリ氏によるもので、美しく独創的な外観が訪れる人々に強い印象を与えます。天井高は2800㎜と開放感があり、OAフロアの厚みも125㎜と業務に適したスペックです。また、床荷重500㎏/㎡、電気容量50VA/㎡と機能面でも高いパフォーマンスを誇ります。

ビル内の環境にも配慮が行き届いており、1階と2階にはリフレッシュスペースが設けられ、4階にはダイニング、カフェ&BAR、集中ブース、会議室など、多様なワークスタイルをサポートする施設が充実しています。機械警備と有人警備の併用により、セキュリティ面も安心です。

Copyright(C) Quick Consulting Co.,LTD. All right reserved.