こだわり条件で再検索

キーワード
坪数
(面積)
賃料+共益費
賃料+共益費
(坪当たり)
最寄駅
徒歩
築年数




用途





快適


安全


[]を含むの賃貸オフィス・賃貸事務所 6580 棟 ( 15984 区画)

物件No 0022665
住所 大阪府大阪市淀川区宮原4-3-3
最寄駅
竣工年 2003年7月
規模 地上8階 地下1階
階数 坪数 賃料+共益費
(坪単価)
敷金・保証金 用途 入居日 詳細 お気に入り
追加
5階 27.66坪 相談 12ヶ月
事務所
2026年3月 お問合せ お気に入り追加

担当者のコメント

MPR新大阪ビルは、新大阪駅から徒歩6分の賃貸オフィスビルです。ガラス張りの綺麗な外観が魅力的です。全体的に清潔感があり、貸室も天井が2700㎜と高く開放的です。

物件No 0050102
住所 大阪府大阪市淀川区宮原4-5-1
最寄駅
竣工年 2022年1月
規模 地上13階
階数 坪数 賃料+共益費
(坪単価)
敷金・保証金 用途 入居日 詳細 お気に入り
追加
5階 116.28坪 相談 12ヶ月
事務所
即日 お問合せ お気に入り追加

担当者のコメント

新大阪第2NKビルは、1フロア455坪の大規模オフィスビルです。快適性、省エネ性、防災性共に最高水準です。テナント様専用ラウンジと貸会議室など設備も充実しています。CASBEEウェルネスオフィス最高ランク認定。
・テナント専用貸会議室が21部屋
・テナント専用多目的ラウンジ
・防災(備蓄倉庫、非常用発電、制震構造)
・感染症対策(加湿機能、換気機能、抗ウイルス材、密回避、非接触)
・各フロア、男女それぞれに誰でもトイレ設置
・高い省エネ設計(CASBEE:Aランク)
・ウェルネスオフィス(CASBEEウェルネスオフィス:Sランク)

物件No 0045432
住所 埼玉県さいたま市北区宮原町1-853-8
最寄駅
竣工年 2008年1月
規模 地上6階
階数 坪数 賃料+共益費
(坪単価)
敷金・保証金 用途 入居日 詳細 お気に入り
追加
6階
601
65.07坪 相談 12ヶ月
事務所
店舗
相談 お問合せ お気に入り追加

担当者のコメント

ウェルネスキューブ大宮は、2008年1月に建てられた地上6階の建物です。新耐震構造かつ機械警備もあり安心です。また、24時間の使用可能となっています。事務所、店舗をお探しの方にはぴったりの物件です。
最寄り駅は埼玉新都市交通伊奈線加茂宮駅、JR東北本線(宇都宮線)土呂駅です。最短の駅からは徒歩9分と駅から近いことも魅力です。個別空調、エレベータ2基を完備しています。また平置きの駐車場も完備しています。

2404 etto

物件No 0062341
住所 広島県廿日市市宮島口1-11-8
最寄駅
竣工年 2020年3月
規模 地上2階
階数 坪数 賃料+共益費
(坪単価)
敷金・保証金 用途 入居日 詳細 お気に入り
追加
1階
1-8
10.33坪 相談 10ヶ月
店舗
即日 お問合せ お気に入り追加
1階
1-11
7.41坪 相談 10ヶ月
店舗
即日 お問合せ お気に入り追加
2階
2-3
30.34坪 相談 10ヶ月
店舗
即日 お問合せ お気に入り追加

担当者のコメント

広島市エリアにあるettoは、2020年3月に建てられた地上2階の建物です。新耐震構造かつ機械警備もあり安心です。店舗をお探しの方にはぴったりの物件です。
最寄り駅は広電2系統(宮島線)広電宮島口駅、JR山陽本線宮島口駅です。最短の駅からは徒歩3分と駅から近いことも魅力です。個別空調、エレベータ1基を完備しています。また駐車場も完備しています。

物件No 0063233
住所 神奈川県横浜市中区宮川町3-83
最寄駅
竣工年 1993年9月
規模 地上10階
階数 坪数 賃料+共益費
(坪単価)
敷金・保証金 用途 入居日 詳細 お気に入り
追加
3階
301
71.68坪 相談 10ヶ月
事務所
即日 お問合せ お気に入り追加

担当者のコメント

みなとみらい・桜木町エリアにあるIWASAKI BLDGは、1993年9月に建てられた地上10階の建物です。新耐震構造かつ機械警備もあり安心です。また、24時間の使用可能となっています。事務所をお探しの方にはぴったりの物件です。
最寄り駅は京急本線日ノ出町駅、JR京浜東北線桜木町駅です。最短の駅からは徒歩3分と駅から近いことも魅力です。エレベータ2基を完備しています。また機械式の駐車場も完備しています。

物件No 0017489
住所 神奈川県川崎市川崎区宮本町6
最寄駅
竣工年 1983年9月
規模 地上13階 地下1階
階数 坪数 賃料+共益費
(坪単価)
敷金・保証金 用途 入居日 詳細 お気に入り
追加
2階 188.86坪 相談 12ヶ月
事務所
即日 お問合せ お気に入り追加
3階 188.06坪 相談 12ヶ月
事務所
即日 お問合せ お気に入り追加
4階 188.06坪 相談 12ヶ月
事務所
即日 お問合せ お気に入り追加
5階 79.78坪 相談 12ヶ月
事務所
2026年3月 お問合せ お気に入り追加
6階 31.39坪 相談 12ヶ月
事務所
2026年3月 お問合せ お気に入り追加
6階 79.78坪 相談 12ヶ月
事務所
2026年3月 お問合せ お気に入り追加
7階 79.78坪 相談 12ヶ月
事務所
2026年3月 お問合せ お気に入り追加
7階 188.07坪 相談 12ヶ月
事務所
2026年3月 お問合せ お気に入り追加
8階 188.08坪 相談 12ヶ月
事務所
即日 お問合せ お気に入り追加

担当者のコメント

川崎駅エリアにある明治安田生命川崎ビルは、1983年9月に建てられた地上13階地下1階の建物です。新耐震構造かつ機械警備もあり安心です。また、24時間の使用可能となっています。事務所をお探しの方にはぴったりの物件です。
最寄り駅はJR東海道本線川崎駅です。最短の駅からは徒歩5分と駅から近いことも魅力です。OAフロア、個別空調、エレベータ3基を完備しています。また駐車場も完備しています。

物件No 0063839
住所 埼玉県さいたま市大宮区宮町1-109-1
最寄駅
竣工年 2008年9月
規模 地上9階
階数 坪数 賃料+共益費
(坪単価)
敷金・保証金 用途 入居日 詳細 お気に入り
追加
1階
先行有
91.2坪 相談 12ヶ月
店舗
2025年12月 お問合せ お気に入り追加

担当者のコメント

大宮駅周辺エリアにある大宮宮町ビルは、2008年9月に建てられた地上9階の建物です。新耐震構造かつ機械警備もあり安心です。また、24時間の使用可能となっています。店舗をお探しの方にはぴったりの物件です。
最寄り駅はJR京浜東北線大宮駅、JR埼京線大宮駅、JR高崎線大宮駅と交通の便の良い立地です。最短の駅からは徒歩5分と駅から近いことも魅力です。エレベータ1基を完備しています。

物件No 0000146
住所 埼玉県さいたま市大宮区宮町1-114-1
最寄駅
竣工年 1987年7月
規模 地上8階 地下2階
階数 坪数 賃料+共益費
(坪単価)
敷金・保証金 用途 入居日 詳細 お気に入り
追加
B1階 222.2坪 相談 相談
店舗
相談 お問合せ お気に入り追加
3階 52.76坪 相談 12ヶ月
事務所
2026年4月 お問合せ お気に入り追加
7階
A
71.87坪 相談 12ヶ月
事務所
即日 お問合せ お気に入り追加

担当者のコメント

ORE大宮ビルは、大宮駅から徒歩5分の大規模オフィスビルです。交差点に面したミラー張りの外観は良く目立ちます。2021年に共用部をリニューアルしています。周辺はお店も多く便利です。

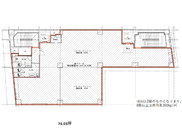
2409 W大宮

物件No 0062833
住所 埼玉県さいたま市大宮区宮町1-14
最寄駅
竣工年 2011年4月
規模 地上7階 地下1階
階数 坪数 賃料+共益費
(坪単価)
敷金・保証金 用途 入居日 詳細 お気に入り
追加
5階
先行有
74.03坪 1,480,600円(税別)
(20,000円/坪)
12ヶ月
事務所
即日 お問合せ お気に入り追加

担当者のコメント

大宮駅周辺エリアにあるW大宮は、2011年4月に建てられた地上7階地下1階の建物です。新耐震構造かつ機械警備もあり安心です。また、24時間の使用可能となっています。事務所をお探しの方にはぴったりの物件です。
最寄り駅はJR京浜東北線大宮駅、JR埼京線大宮駅、JR東北本線(宇都宮線)大宮駅と交通の便の良い立地です。最短の駅からは徒歩3分と駅から近いことも魅力です。OAフロア、個別空調、エレベータ2基を完備しています。

物件No 0056519
住所 茨城県水戸市宮町1-2-4
最寄駅
竣工年 1993年1月
規模 地上10階 地下3階
※レンタルオフィスの募集状況は流動的なため下記は仮表示です。最新の募集状況はお問合せ下さい。
※また、レンタルオフィスの面積は仮の数値です。実際の面積とは異なりますのでご注意ください
階数 坪数 賃料+共益費
(坪単価)
敷金・保証金 用途 入居日 詳細 お気に入り
追加
3階
1名用
3坪 相談 相談
レンタルオフィス
即日 お問合せ お気に入り追加
3階
2名用
6坪 相談 相談
レンタルオフィス
即日 お問合せ お気に入り追加

担当者のコメント

茨城にあるBIZcomfort水戸(水戸マイムビル)は、1993年1月に建てられた地上10階地下3階の建物です。新耐震構造かつ機械警備もあり安心です。レンタルオフィスをお探しの方にはぴったりの物件です。
最寄り駅はJR常磐線水戸駅、JR水郡線水戸駅、鹿島臨海鉄道大洗鹿島線水戸駅と交通の便の良い立地です。最短の駅からは徒歩1分と駅から近いことも魅力です。セントラル空調、エレベータ6基を完備しています。

Copyright(C) Quick Consulting Co.,LTD. All right reserved.