こだわり条件で再検索

坪数
(面積)
賃料+共益費
賃料+共益費
(坪当たり)
最寄駅
徒歩
築年数




用途





快適


安全


の賃貸オフィス・賃貸事務所 6210 棟 ( 15320 区画)

物件No 0001317
住所 神奈川県横浜市中区相生町6-104
最寄駅
竣工年 1993年8月
規模 地上10階 地下1階
階数 坪数 賃料+共益費
(坪単価)
敷金・保証金 用途 入居日 詳細 お気に入り
追加
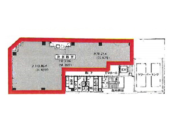
1階 39.17坪 相談 12ヶ月
事務所
即日 お問合せ お気に入り追加
5階 19.51坪 相談 12ヶ月
事務所
2026年7月 お問合せ お気に入り追加

担当者のコメント

3駅利用可能な立地です。分割された小規模区画で、水回りが共用部にあるのが嬉しいポイントです。営業所やスタートアップなど様々な業種におすすめです。

階数 坪数 賃料+共益費
(坪単価)
敷金・保証金 用途 入居日 詳細 お気に入り
追加
4階 23.97坪 相談 12ヶ月
事務所
2026年8月 お問合せ お気に入り追加

担当者のコメント

中区丸の内3丁目、カーテンウォール調のインテリジェントビル。
桜通線「丸の内」駅より徒歩6分アクセスで、官公庁アクセスも良く士業の方に人気です。
個別空調、OAフロア、駐車場完備とオフィス環境も整っております。

物件No 0060367
住所 福岡県福岡市西区横浜1-10-17
最寄駅
竣工年 1993年8月
規模 地上1階
階数 坪数 賃料+共益費
(坪単価)
敷金・保証金 用途 入居日 詳細 お気に入り
追加
1階 45.88坪 545,455円(税別)
(11,889円/坪)
5ヶ月
事務所
店舗
即日 お問合せ お気に入り追加

担当者のコメント

西区エリアにある横浜1丁目店舗は、1993年8月に建てられた地上1階の建物です。事務所、店舗をお探しの方にはぴったりの物件です。
個別空調を完備しています。また平置きの駐車場も完備しています。

階数 坪数 賃料+共益費
(坪単価)
敷金・保証金 用途 入居日 詳細 お気に入り
追加
4階
(先)セットアップ
62.04坪 1,116,720円(税別)
(18,000円/坪)
6ヶ月
事務所
即日 お問合せ お気に入り追加

担当者のコメント

複数駅から徒歩圏内と便利な立地です。エントランスは綺麗で清潔感があります。間取りは整形でレイアウトがしやすいです。

※レンタルオフィスの募集状況は流動的なため下記は仮表示です。最新の募集状況はお問合せ下さい。
※また、レンタルオフィスの面積は仮の数値です。実際の面積とは異なりますのでご注意ください
階数 坪数 賃料+共益費
(坪単価)
敷金・保証金 用途 入居日 詳細 お気に入り
追加
5階
20-25名用
50坪 相談 相談
レンタルオフィス
相談 お問合せ お気に入り追加
6階
10-14名用
28坪 相談 相談
レンタルオフィス
相談 お問合せ お気に入り追加
7階
4名用
8坪 相談 相談
レンタルオフィス
相談 お問合せ お気に入り追加

担当者のコメント

渋谷エリアにあるクロスコープ渋谷(ヒューリック渋谷一丁目ビル)は、1993年8月に建てられた地上7階地下2階の建物です。新耐震構造かつ機械警備もあり安心です。また、24時間の使用可能となっています。レンタルオフィスをお探しの方にはぴったりの物件です。
最寄り駅はJR山手線渋谷駅、JR埼京線渋谷駅、東京メトロ銀座線表参道駅、東京メトロ千代田線明治神宮前駅、JR山手線原宿駅と交通の便の良い立地です。最短の駅からは徒歩8分と駅から近いことも魅力です。OAフロア、エレベータ2基を完備しています。

物件No 0029232
住所 福岡県福岡市中央区長浜2-4-1
最寄駅
竣工年 1993年8月
規模 地上17階 地下1階
階数 坪数 賃料+共益費
(坪単価)
敷金・保証金 用途 入居日 詳細 お気に入り
追加
B1階
B1-C (倉庫)
14.88坪 相談 12ヶ月
事務所
倉庫・工場
即日 お問合せ お気に入り追加
B1階
B1-A (倉庫)
16.8坪 相談 12ヶ月
事務所
倉庫・工場
即日 お問合せ お気に入り追加
6階
B
86.93坪 相談 12ヶ月
事務所
即日 お問合せ お気に入り追加
12階 71.55坪 相談 12ヶ月
事務所
即日 お問合せ お気に入り追加
14階
A先行有
91.95坪 相談 12ヶ月
事務所
即日 お問合せ お気に入り追加

担当者のコメント

西鉄「赤坂」駅より徒歩8分。那の津通りに面した長浜のシンボル高層オフィスビルです。スタイリッシュな外観とレイアウト自在の形の整った貸室が特徴的なオフィスビルです。長浜エリアのシンボルビルで、事務所として必要な設備も整っています。清潔感のある気持ちの共用部も魅力のひとつです。

階数 坪数 賃料+共益費
(坪単価)
敷金・保証金 用途 入居日 詳細 お気に入り
追加
8階 32.49坪 258,800円(税別)
(7,966円/坪)
10ヶ月
事務所
即日 お問合せ お気に入り追加

担当者のコメント

堺筋線、京阪本線北浜駅徒歩5分の立地。1フロア1テナント物件で貸室形状も使いやすいオフィスビルになります。

物件No 0006715
住所 香川県高松市古新町8-1
最寄駅
竣工年 1993年8月
規模 地上11階 地下1階
階数 坪数 賃料+共益費
(坪単価)
敷金・保証金 用途 入居日 詳細 お気に入り
追加
1階 17.54坪 相談 12ヶ月
事務所
即日 お問合せ お気に入り追加
3階 65.12坪 相談 12ヶ月
事務所
即日 お問合せ お気に入り追加

担当者のコメント

香川にある高松スクエアビルは、1993年8月に建てられた地上11階地下1階の建物です。新耐震構造かつ機械警備もあり安心です。また、24時間の使用可能となっています。事務所をお探しの方にはぴったりの物件です。
最寄り駅はJR予讃線高松駅です。最短の駅からは徒歩8分と駅から近いことも魅力です。OAフロア、個別空調、エレベータ2基を完備しています。また機械式の駐車場も完備しています。

物件No 0027994
住所 東京都品川区西五反田2-24-4
最寄駅
竣工年 1993年8月
規模 地上10階
階数 坪数 賃料+共益費
(坪単価)
敷金・保証金 用途 入居日 詳細 お気に入り
追加
2階
セットアップ
56.73坪 1,474,980円(税別)
(26,000円/坪)
6ヶ月
事務所
即日 お問合せ お気に入り追加

担当者のコメント

目黒川近くの物件です。セットアップオフィスになっているので移転時にかかる費用と時間を削減できます。

物件No 0016305
住所 東京都千代田区神田和泉町1-8-11
最寄駅
竣工年 1993年7月
規模 地上9階 地下1階
階数 坪数 賃料+共益費
(坪単価)
敷金・保証金 用途 入居日 詳細 お気に入り
追加
5階 52.02坪 相談 8ヶ月
事務所
即日 お問合せ お気に入り追加

担当者のコメント

岩本町・秋葉原エリアにあるサン・センタービルは、1993年7月に建てられた地上9階地下1階の建物です。新耐震構造かつ機械警備もあり安心です。また、24時間の使用可能となっています。事務所をお探しの方にはぴったりの物件です。
最寄り駅はJR山手線秋葉原駅、JR中央・総武線秋葉原駅、東京メトロ日比谷線秋葉原駅と交通の便の良い立地です。最短の駅からは徒歩5分と駅から近いことも魅力です。個別空調、エレベータ1基を完備しています。

Copyright(C) Quick Consulting Co.,LTD. All right reserved.