こだわり条件で再検索

キーワード
坪数
(面積)
賃料+共益費
賃料+共益費
(坪当たり)
最寄駅
徒歩
築年数




用途





快適


安全


[]を含むの賃貸オフィス・賃貸事務所 6702 棟 ( 16406 区画)

物件No 0013573
住所 宮城県仙台市青葉区花京院1-1-6
最寄駅
竣工年 2008年3月
規模 地上9階
階数 坪数 賃料+共益費
(坪単価)
敷金・保証金 用途 入居日 詳細 お気に入り
追加
5階
503
18.95坪 相談 10ヶ月
事務所
2026年4月 お問合せ お気に入り追加

担当者のコメント

デザイン性の高い貸事務所・店舗
交通は最寄りJR仙台駅で徒歩5分と至便の物件
駅前通りに面し、仙台駅から続くデッキを降りてすぐの好立地です。お洒落なガラス張りで視認性も確保できます。物件設備も個別空調、OAフロア、機械警備が完備です。業種業態相談可能なので、お問い合わせ下さい。

物件No 0029653
住所 福岡県福岡市中央区薬院1-14-5
最寄駅
竣工年 2008年3月
規模 地上8階
階数 坪数 賃料+共益費
(坪単価)
敷金・保証金 用途 入居日 詳細 お気に入り
追加
2階 51.53坪 相談 12ヶ月
事務所
即日 お問合せ お気に入り追加
4階 163.44坪 相談 12ヶ月
事務所
2026年3月 お問合せ お気に入り追加
6階
申込有
47.73坪 相談 12ヶ月
事務所
即日 お問合せ お気に入り追加

担当者のコメント

MG薬院ビルは2008年3月竣工、新耐震基準のハイグレード賃貸オフィスです。西鉄大牟田線薬院駅から徒歩3分の閑静な住宅街に位置する為、静かな環境で、お仕事に集中出来ます。基準階面積が326坪あり、まとまった面積を希望されるテナント様には特にお勧め。薬院では貴重なグレードの高い大型オフィスビルです。

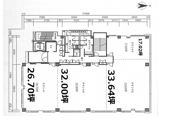
物件No 0033005
住所 愛知県名古屋市中区錦1-7-26
最寄駅
竣工年 2008年3月
規模 地上8階 地下1階
階数 坪数 賃料+共益費
(坪単価)
敷金・保証金 用途 入居日 詳細 お気に入り
追加
5階
1フロア
77.78坪 相談 8ヶ月
事務所
2026年4月 お問合せ お気に入り追加

担当者のコメント

外観はガラス張りで存在感のある物件。
エントランスは高級感があり、貸室は1フロア1テナントで気兼ねなく使用できます。周辺には公園や学校があり、コンビニも近く至便な環境です。

物件No 0003821
住所 東京都港区芝4-4-20
最寄駅
竣工年 2008年3月
規模 地上9階 地下3階
階数 坪数 賃料+共益費
(坪単価)
敷金・保証金 用途 入居日 詳細 お気に入り
追加
3階 58.14坪 1,453,500円(税別)
(25,000円/坪)
12ヶ月
事務所
即日 お問合せ お気に入り追加

担当者のコメント

日比谷通り角地、かっこいい全面ガラス張りの物件です。採光が取りやすく窓面も大きく室内は開放感があります。エントランスも綺麗で清潔感があります。

物件No 0020137
住所 大阪府大阪市中央区東心斎橋1-19-20
最寄駅
竣工年 2008年3月
規模 地上5階 地下1階
階数 坪数 賃料+共益費
(坪単価)
敷金・保証金 用途 入居日 詳細 お気に入り
追加
B1階
B-101
50.3坪 503,000円(税別)
(10,000円/坪)
12ヶ月
店舗
即日 お問合せ お気に入り追加

担当者のコメント

ローズハウス東心斎橋は、大阪市中央区東心斎橋1丁目に位置する貸店舗ビルです。心斎橋駅から徒歩3分、店舗の並ぶ鰻谷北通に面した物件です。

階数 坪数 賃料+共益費
(坪単価)
敷金・保証金 用途 入居日 詳細 お気に入り
追加
1階 32.12坪 相談 12ヶ月
店舗
即日 お問合せ お気に入り追加

担当者のコメント

市ケ谷駅目の前の築浅物件です。立地、設備、清潔感、3拍子揃った物件です。加えて、縦長のお部屋ですが窓面が広く明るいのも特長です。貸室形状も、扉の位置、水周りの位置的にレイアウト効率が良さそうです。

階数 坪数 賃料+共益費
(坪単価)
敷金・保証金 用途 入居日 詳細 お気に入り
追加
4階 19.3坪 相談 5ヶ月
事務所
2025年12月 お問合せ お気に入り追加

担当者のコメント

2008年竣工中央通り沿いワンフロア専有物件。
小川町駅、淡路駅、秋葉原駅、岩本町駅が徒歩5分圏内
約20坪のワンフロア専有物件です。神田駅や御茶ノ水駅へも徒歩でアクセスすることができ、6駅を使うことが出来ます。
多くの路線が使用できる為従業員様の通勤には非常に便利です。

物件No 0024519
住所 東京都中央区銀座8-9-15
最寄駅
竣工年 2008年3月
規模 地上12階 地下1階
階数 坪数 賃料+共益費
(坪単価)
敷金・保証金 用途 入居日 詳細 お気に入り
追加
7階 82.98坪 相談 12ヶ月
店舗
即日 お問合せ お気に入り追加

担当者のコメント

銀座エリアにあるJEWEL BOX GINZAは、2008年3月に建てられた地上12階地下1階の建物です。新耐震構造かつ機械警備もあり安心です。また、24時間の使用可能となっています。店舗をお探しの方にはぴったりの物件です。
最寄り駅はJR山手線新橋駅、JR京浜東北線新橋駅、東京メトロ銀座線銀座駅、東京メトロ日比谷線東銀座駅と交通の便の良い立地です。最短の駅からは徒歩3分と駅から近いことも魅力です。エレベータ3基を完備しています。

階数 坪数 賃料+共益費
(坪単価)
敷金・保証金 用途 入居日 詳細 お気に入り
追加
3階
71.13坪 相談 12ヶ月
事務所
2025年12月 お問合せ お気に入り追加
8階
1フロア
237.28坪 相談 12ヶ月
事務所
2026年1月 お問合せ お気に入り追加

担当者のコメント

錦の中心に位置するハイグレードオフィスビル。
住所は中区錦2丁目、駅徒歩5分圏内のアクセス。
ビル設備も充実しており、周辺環境も整っております。
全てにおいてグレード感、高級感のある仕様となっております。

物件No 0013583
住所 宮城県仙台市青葉区花京院2-1-65
最寄駅
竣工年 2008年3月
規模 地上14階
階数 坪数 賃料+共益費
(坪単価)
敷金・保証金 用途 入居日 詳細 お気に入り
追加
2階 29.61坪 相談 相談
店舗
2026年2月 お問合せ お気に入り追加
4階 73.79坪 相談 相談
事務所
即日 お問合せ お気に入り追加
4階 29.61坪 相談 相談
事務所
即日 お問合せ お気に入り追加

担当者のコメント

広瀬通駅・仙台駅・匂当台駅エリアにあるいちご花京院ビルは、2008年3月に建てられた地上14階の建物です。新耐震構造かつ機械警備もあり安心です。また、24時間の使用可能となっています。店舗、事務所をお探しの方にはぴったりの物件です。
最寄り駅はJR東北本線仙台駅、JR仙山線仙台駅、JR仙石線仙台駅、JR常磐線仙台駅と交通の便の良い立地です。最短の駅からは徒歩7分と駅から近いことも魅力です。OAフロア、個別空調、エレベータ2基を完備しています。また機械式の駐車場も完備しています。

Copyright(C) Quick Consulting Co.,LTD. All right reserved.