こだわり条件で再検索

キーワード
坪数
(面積)
賃料+共益費
賃料+共益費
(坪当たり)
最寄駅
徒歩
築年数




用途





快適


安全


[]を含むの賃貸オフィス・賃貸事務所 6249 棟 ( 15393 区画)

物件No 0052923
住所 広島県広島市中区国泰寺町1-3-11
最寄駅
竣工年 1977年3月
規模 地上6階
階数 坪数 賃料+共益費
(坪単価)
敷金・保証金 用途 入居日 詳細 お気に入り
追加
2階
203
21.25坪 127,273円(税別)
(5,989円/坪)
760,000円
事務所
即日 お問合せ お気に入り追加

担当者のコメント

広島市中区エリアにあるタカミビルは、1977年3月に建てられた地上6階の建物です。旧耐震構造です。事務所をお探しの方にはぴったりの物件です。
最寄り駅は広電1系統(宇品線)中電前駅、広電3系統(己斐線)市役所前駅、広電7系統(都心線)袋町駅と交通の便の良い立地です。最短の駅からは徒歩3分と駅から近いことも魅力です。また駐車場も完備しています。

物件No 0052892
住所 東京都世田谷区玉川2-16-6
最寄駅
竣工年 2021年7月
規模 地上4階
階数 坪数 賃料+共益費
(坪単価)
敷金・保証金 用途 入居日 詳細 お気に入り
追加
3階
302
69.72坪 相談 12ヶ月
事務所
2026年7月 お問合せ お気に入り追加

担当者のコメント

睦ビル二子玉川は、2021年7月に建てられた地上4階の建物です。新耐震構造かつ機械警備もあり安心です。また、24時間の使用可能となっています。事務所をお探しの方にはぴったりの物件です。
最寄り駅は東急大井町線二子玉川駅、東急田園都市線二子玉川駅です。最短の駅からは徒歩6分と駅から近いことも魅力です。OAフロア、個別空調、エレベータ2基を完備しています。

物件No 0052871
住所 神奈川県横浜市西区高島1-2-81
最寄駅
竣工年 2021年11月
規模 地上16階 地下2階
階数 坪数 賃料+共益費
(坪単価)
敷金・保証金 用途 入居日 詳細 お気に入り
追加
14階 115.43坪 相談 12ヶ月
事務所
即日 お問合せ お気に入り追加

担当者のコメント

横浜駅周辺(西区エリア)にあるLG Yokohama Innovation Centerは、2021年11月に建てられた地上16階地下2階の建物です。新耐震構造かつ機械警備もあり安心です。また、24時間の使用可能となっています。事務所をお探しの方にはぴったりの物件です。
最寄り駅はみなとみらい線新高島駅、横浜市営地下鉄ブルーライン高島町駅、JR京浜東北線横浜駅と交通の便の良い立地です。最短の駅からは徒歩2分と駅から近いことも魅力です。OAフロア、個別空調、エレベータ8基を完備しています。また機械式の駐車場も完備しています。

物件No 0052869
住所 東京都渋谷区神宮前1-9-18
最寄駅
竣工年 1973年11月
規模 地上7階 地下1階
階数 坪数 賃料+共益費
(坪単価)
敷金・保証金 用途 入居日 詳細 お気に入り
追加
6階 75坪 相談 10ヶ月
事務所
即日 お問合せ お気に入り追加

担当者のコメント

原宿・代々木・初台エリアにあるパトリアビルは、1973年11月に建てられた地上7階地下1階の建物です。旧耐震構造で機械警備もあります。また、24時間の使用可能となっています。事務所をお探しの方にはぴったりの物件です。
最寄り駅は東京メトロ副都心線明治神宮前駅、東京メトロ千代田線明治神宮前駅、JR山手線原宿駅と交通の便の良い立地です。最短の駅からは徒歩1分と駅から近いことも魅力です。個別空調、エレベータ1基を完備しています。

物件No 0052789
住所 東京都品川区上大崎3-5-2
最寄駅
竣工年 2020年10月
規模 地上9階 地下1階
階数 坪数 賃料+共益費
(坪単価)
敷金・保証金 用途 入居日 詳細 お気に入り
追加
B1階 24.98坪 672,728円(税別)
(26,931円/坪)
8ヶ月
店舗
相談 お問合せ お気に入り追加
8階 25.24坪 636,364円(税別)
(25,213円/坪)
8ヶ月
店舗
即日 お問合せ お気に入り追加

担当者のコメント

重飲食可能

1406 KSビル

物件No 0052803
住所 広島県広島市中区八丁堀11-10
最寄駅
竣工年 1974年3月
規模 地上9階 地下1階
階数 坪数 賃料+共益費
(坪単価)
敷金・保証金 用途 入居日 詳細 お気に入り
追加
4階
402
28.46坪 285,000円(税別)
(10,014円/坪)
3ヶ月
事務所
相談 お問合せ お気に入り追加

担当者のコメント

広島市中区エリアにあるKSビルは、1974年3月に建てられた地上9階地下1階の建物です。旧耐震構造で機械警備もあります。事務所をお探しの方にはぴったりの物件です。
最寄り駅は広電1系統(宇品線)八丁堀駅、広電1系統(宇品線)立町駅、広電1系統(宇品線)紙屋町東駅と交通の便の良い立地です。最短の駅からは徒歩2分と駅から近いことも魅力です。個別空調、エレベータ2基を完備しています。

物件No 0052754
住所 東京都中央区東日本橋2-16-4
最寄駅
竣工年 1988年5月
規模 地上9階
階数 坪数 賃料+共益費
(坪単価)
敷金・保証金 用途 入居日 詳細 お気に入り
追加
5階
B
40.33坪 相談 12ヶ月
事務所
2026年6月 お問合せ お気に入り追加

担当者のコメント

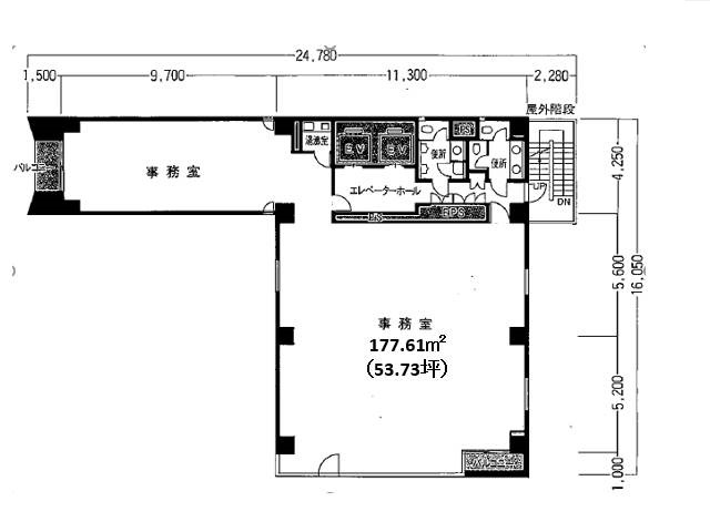
Jプロ東日本橋ビルは、東日本橋駅から徒歩3分の賃貸オフィスビルです。複数路線利用可能な立地と、独特の貸室形状が魅力です。小部屋側を会議室や役員室にすることで、高い利便性と面積効率が得られます。

物件No 0052757
住所 広島県広島市中区大手町4-2-25
最寄駅
竣工年 2005年9月
規模 地上5階
階数 坪数 賃料+共益費
(坪単価)
敷金・保証金 用途 入居日 詳細 お気に入り
追加
2階 21.58坪 225,000円(税別)
(10,426円/坪)
6ヶ月
事務所
店舗
即日 お問合せ お気に入り追加

担当者のコメント

広島市中区エリアにある祐里メゾンビルは、2005年9月に建てられた地上5階の建物です。新耐震構造で安心です。また、24時間の使用可能となっています。事務所、店舗をお探しの方にはぴったりの物件です。
最寄り駅は広電1系統(宇品線)市役所前駅、広電7系統(都心線)中電前駅、広電3系統(己斐線)鷹野橋駅と交通の便の良い立地です。最短の駅からは徒歩2分と駅から近いことも魅力です。個別空調、エレベータ1基を完備しています。

階数 坪数 賃料+共益費
(坪単価)
敷金・保証金 用途 入居日 詳細 お気に入り
追加
6階 27.83坪 相談 10ヶ月
事務所
2026年4月 お問合せ お気に入り追加

担当者のコメント

神田・小川町エリアにある南部ビルは、1990年1月に建てられた地上6階の建物です。新耐震構造かつ機械警備もあり安心です。また、24時間の使用可能となっています。事務所をお探しの方にはぴったりの物件です。
最寄り駅は東京メトロ東西線竹橋駅、東京メトロ丸ノ内線大手町駅、東京メトロ半蔵門線大手町駅、都営三田線神保町駅、JR山手線神田駅と交通の便の良い立地です。最短の駅からは徒歩4分と駅から近いことも魅力です。OAフロア、個別空調、エレベータ1基を完備しています。

物件No 0052688
住所 北海道帯広市大通南10-18
最寄駅
竣工年 1993年4月
規模 地上7階
階数 坪数 賃料+共益費
(坪単価)
敷金・保証金 用途 入居日 詳細 お気に入り
追加
1階 81.33坪 731,970円(税別)
(9,000円/坪)
12ヶ月
店舗
即日 お問合せ お気に入り追加
3階 24.72坪 222,480円(税別)
(9,000円/坪)
12ヶ月
店舗
即日 お問合せ お気に入り追加

担当者のコメント

帯広東京海上日動ビルは、1993年4月に建てられた地上7階の建物です。新耐震構造かつ機械警備もあり安心です。また、24時間の使用可能となっています。店舗をお探しの方にはぴったりの物件です。
最寄り駅はJR根室本線帯広駅です。最短の駅からは徒歩7分と駅から近いことも魅力です。個別空調を完備しています。また駐車場も完備しています。

Copyright(C) Quick Consulting Co.,LTD. All right reserved.