MiRi(ミリー)スクエア大宮
| 物件名 | MiRi(ミリー)スクエア大宮 | ||
|---|---|---|---|
| 住所 | 埼玉県さいたま市大宮区大門町2-93 | ||
| 最寄駅 | |||
| 竣工年 | 2025年11月 | ||
| 規模 | 地上9階 | ||
| 空調 | 個別空調 | OAフロア | |
| EV | 1 基 | トイレ | 男女別・室外 |
| 駐車場 | 無し | 24時間使用 | 使用可 |
| 耐震 | 新耐震基準 | 機械警備 | 有り |
募集概要
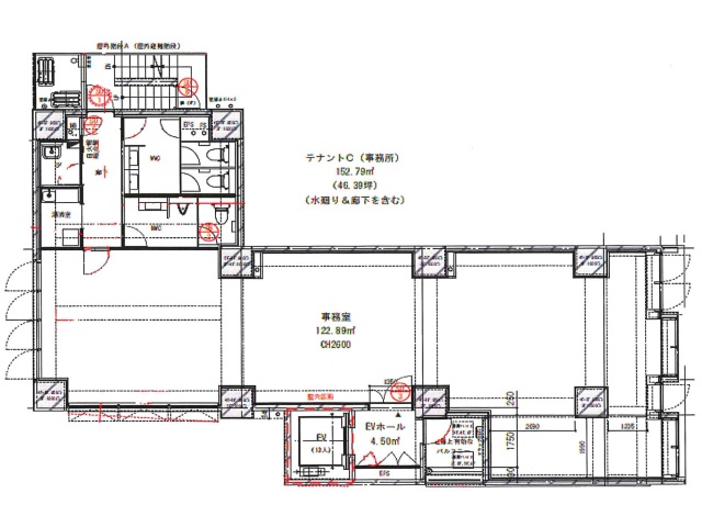
| 階数 | 6階 |
|---|---|
| 坪数 | 46.21坪 |
| 用途 | 事務所 , 店舗 |
| 月額(賃料+共益費) (税別) | 1,386,320円 |
| 坪単価(賃料+共益費) (税別) | 30,000円/坪 |
| 賃料(税別) |
1,293,900円 (28,000円/坪) |
| 共益費(税別) |
92,420円 (2,000円/坪) |
| 敷金 | 10ヶ月 |
| 礼金 | 1ヶ月 |
| 償却 | 無し |
| 入居可能日 | 2025年12月 |
| 空室確認日 | 2025/11/19 |
その他空室情報
| 階数 | 坪数 |
賃料 (税別) |
共益費 (税別) |
敷金・保証金 | 入居日 | 詳細 |
お気に入り 追加 |
|---|---|---|---|---|---|---|---|
| 2階 | 41.74坪 |
1,377,400円 (33,000円/坪) |
83,480円 (2,000円/坪) |
10ヶ月 | 2025年12月 |
|
|
|
3階
申込有
|
46.21坪 |
1,293,900円 (28,000円/坪) |
92,420円 (2,000円/坪) |
10ヶ月 | 2025年12月 |
|
|
| 4階 | 46.21坪 |
1,293,900円 (28,000円/坪) |
92,420円 (2,000円/坪) |
10ヶ月 | 2025年12月 |
|
|
| 5階 | 46.21坪 |
1,293,900円 (28,000円/坪) |
92,420円 (2,000円/坪) |
10ヶ月 | 2025年12月 |
|
|
| 7階 | 46.21坪 |
1,293,900円 (28,000円/坪) |
92,420円 (2,000円/坪) |
10ヶ月 | 2025年12月 |
|
|
| 8階 | 46.21坪 |
1,293,900円 (28,000円/坪) |
92,420円 (2,000円/坪) |
10ヶ月 | 2025年12月 |
|
|
| 9階 | 46.21坪 |
1,293,900円 (28,000円/坪) |
92,420円 (2,000円/坪) |
10ヶ月 | 2025年12月 |
|
|









