グローバルビュー浦和
| 物件名 | グローバルビュー浦和 | ||
|---|---|---|---|
| 住所 | 埼玉県さいたま市浦和区高砂2-1-19 | ||
| 最寄駅 | |||
| 竣工年 | 1998年9月 | ||
| 規模 | 地上12階 地下1階 | ||
| 空調 | 個別空調 | OAフロア | |
| EV | トイレ | 調査中 | |
| 駐車場 | 有り | 24時間使用 | 調査中 |
| 耐震 | 新耐震基準 | 機械警備 | 調査中 |
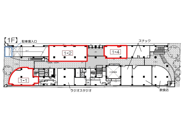
募集概要
| 階数 |
1階
1
|
|---|---|
| 坪数 | 42.15坪 |
| 用途 | 店舗 |
| 月額(賃料+共益費) (税別) | 1,053,750円 |
| 坪単価(賃料+共益費) (税別) | 25,000円/坪 |
| 賃料(税別) |
1,053,750円 (25,000円/坪) |
| 共益費(税別) | 無し |
| 敷金 | 6ヶ月 |
| 礼金 | 無し |
| 償却 | 無し |
| 入居可能日 | 即日 |
| 空室確認日 | 2025/10/23 |
その他空室情報
| 階数 | 坪数 |
賃料 (税別) |
共益費 (税別) |
敷金・保証金 | 入居日 | 詳細 |
お気に入り 追加 |
|---|---|---|---|---|---|---|---|
|
1階
2 申込有
|
60.03坪 |
960,480円 (16,000円/坪) |
無し | 6ヶ月 | 即日 |
|
|
|
1階
4 申込有
|
28.01坪 |
448,160円 (16,000円/坪) |
無し | 6ヶ月 | 即日 |
|
|
|
2階
2 申込有
|
52.18坪 |
730,520円 (14,000円/坪) |
無し | 6ヶ月 | 即日 |
|
|









