関電不動産茅場町ビル
| 物件名 | 関電不動産茅場町ビル | ||
|---|---|---|---|
| 住所 | 東京都中央区茅場町2-8-8(仮住居表示)日本橋茅場町2-4-3、10 | ||
| 最寄駅 | |||
| 竣工年 | 2025年10月 | ||
| 規模 | 地上9階 | ||
| 空調 | 個別空調 | OAフロア | OAフロア |
| EV | 1 基 | トイレ | 男女別・室内 |
| 駐車場 | 無し | 24時間使用 | 使用可 |
| 耐震 | 新耐震基準 | 機械警備 | 有り |
募集概要
| 階数 |
6階
申込有
|
|---|---|
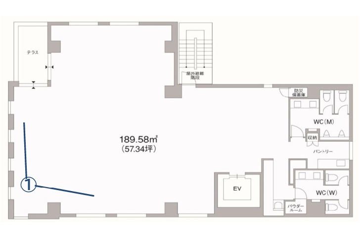
| 坪数 | 57.34坪 |
| 用途 | 事務所 |
| 月額(賃料+共益費) (税別) | 相談 |
| 坪単価(賃料+共益費) (税別) | 相談 |
| 賃料(税別) | 相談 |
| 共益費(税別) | 相談 |
| 敷金 | 相談 |
| 礼金 | 無し |
| 償却 | 無し |
| 入居可能日 | 2025年11月 |
| 空室確認日 | 2025/09/10 |
その他空室情報
| 階数 | 坪数 |
賃料 (税別) |
共益費 (税別) |
敷金・保証金 | 入居日 | 詳細 |
お気に入り 追加 |
|---|---|---|---|---|---|---|---|
|
5階
セットアップ先行有
|
57.34坪 | 相談 | 相談 | 相談 | 2025年12月 |
|
|









