テトラビルディング
| 物件名 | テトラビルディング | ||
|---|---|---|---|
| 住所 | 愛知県名古屋市中区栄3-35-23 | ||
| 最寄駅 | |||
| 竣工年 | 2022年5月 | ||
| 規模 | 地上10階 | ||
| 空調 | 個別空調 | OAフロア | OAフロア |
| EV | 1 基 | トイレ | 男女別・室外 |
| 駐車場 | 無し | 24時間使用 | 使用可 |
| 耐震 | 新耐震基準 | 機械警備 | 無し |
募集概要
| 階数 |
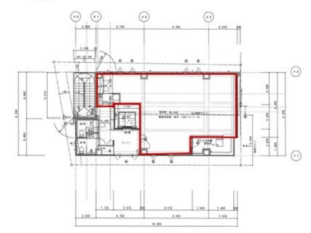
2階
1フロア
|
|---|---|
| 坪数 | 25.74坪 |
| 用途 | 事務所 , 店舗 |
| 月額(賃料+共益費) (税別) | 347,490円 |
| 坪単価(賃料+共益費) (税別) | 13,500円/坪 |
| 賃料(税別) |
347,490円 (13,500円/坪) |
| 共益費(税別) | 賃料に含む |
| 敷金 | 6ヶ月 |
| 礼金 | 無し |
| 償却 | 2ヶ月 |
| 入居可能日 | 即日 |
| 空室確認日 | 2026/04/21 |









