キリンドプラザ帝塚山
| 物件名 | キリンドプラザ帝塚山 | ||
|---|---|---|---|
| 住所 | 大阪府大阪市住之江区粉浜1-1-1 | ||
| 最寄駅 | |||
| 竣工年 | 2015年11月 | ||
| 規模 | 地上3階 | ||
| 空調 | OAフロア | ||
| EV | 1 基 | トイレ | |
| 駐車場 | 24時間使用 | ||
| 耐震 | 新耐震基準 | 機械警備 | |
募集概要
| 階数 | 3階 |
|---|---|
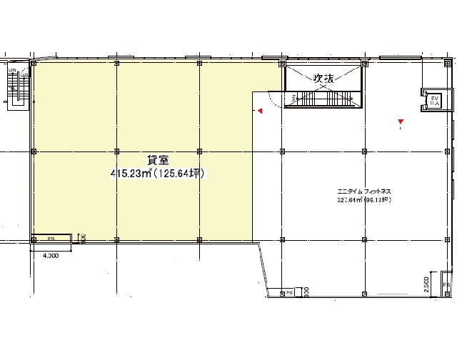
| 坪数 | 125.64坪 |
| 用途 | 店舗 |
| 月額(賃料+共益費) (税別) | 1,256,400円 |
| 坪単価(賃料+共益費) (税別) | 10,000円/坪 |
| 賃料(税別) |
1,256,400円 (10,000円/坪) |
| 共益費(税別) | 賃料に含む |
| 敷金 | 12円 |
| 礼金 | 無し |
| 償却 | |
| 入居可能日 | 2026年2月 |
| 空室確認日 | 2025/11/06 |
その他空室情報
| 階数 | 坪数 |
賃料 (税別) |
共益費 (税別) |
敷金・保証金 | 入居日 | 詳細 |
お気に入り 追加 |
|---|---|---|---|---|---|---|---|
| 3階 | 99.13坪 |
991,300円 (10,000円/坪) |
賃料に含む | 12ヶ月 | 2026年1月 |
|
|









