KEビル
| 物件名 | KEビル | ||
|---|---|---|---|
| 住所 | 兵庫県神戸市中央区下山手通2-1-1 | ||
| 最寄駅 | |||
| 竣工年 | 1991年10月 | ||
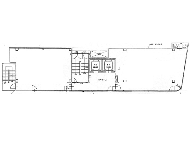
| 規模 | 地上7階 地下1階 | ||
| 空調 | 無し | OAフロア | スケルトン |
| EV | 2 基 | トイレ | |
| 駐車場 | 無し | 24時間使用 | 使用可 |
| 耐震 | 新耐震基準 | 機械警備 | |
募集概要
| 階数 |
7階
先行有り
|
|---|---|
| 坪数 | 50坪 |
| 用途 | 店舗 |
| 月額(賃料+共益費) (税別) | 785,000円 |
| 坪単価(賃料+共益費) (税別) | 15,700円/坪 |
| 賃料(税別) |
725,000円 (14,500円/坪) |
| 共益費(税別) |
60,000円 (1,200円/坪) |
| 敷金 | 10ヶ月 |
| 礼金 | 無し |
| 償却 | 無し |
| 入居可能日 | 即日 |
| 空室確認日 | 2026/02/25 |
その他空室情報
| 階数 | 坪数 |
賃料 (税別) |
共益費 (税別) |
敷金・保証金 | 入居日 | 詳細 |
お気に入り 追加 |
|---|---|---|---|---|---|---|---|
|
5階
先行有り
|
50坪 |
650,000円 (13,000円/坪) |
60,000円 (1,200円/坪) |
10ヶ月 | 即日 |
|
|
|
6階
先行有り
|
50坪 |
725,000円 (14,500円/坪) |
60,000円 (1,200円/坪) |
10ヶ月 | 即日 |
|
|









