徳山御幸通ビル

物件名 徳山御幸通ビル
住所 山口県周南市御幸通1-5
最寄駅
竣工年 1982年3月
規模 地上9階
空調 個別空調 / セントラル空調 OAフロア OAフロア
EV 2 基 トイレ 男女別・室外
駐車場 有り 24時間使用 使用可
耐震 新耐震基準 機械警備 有り

募集概要

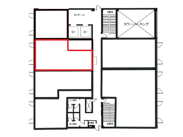
階数 7階
2
坪数 16.49坪
用途 事務所
月額(賃料+共益費) (税別) 相談
坪単価(賃料+共益費) (税別) 相談
賃料(税別) 相談
共益費(税別) 賃料に含む
敷金 12ヶ月
礼金 無し
償却 無し
入居可能日 相談
空室確認日 2025/10/17

物件詳細PDF

  • お客様用
  • 業者様用

お問い合わせはこちら

更に詳細な資料情報をご希望の方はこちら

がついているものは必須項目です
物件名 徳山御幸通ビル 7階 2 16.49坪
物件住所 山口県周南市御幸通1-5
■お問合せ内容
お問合せ内容
備考欄
■ご希望条件について教えてください
立地
ご希望の面積 ※1㎡=0.3025坪
ご希望の面積がお決まりの方は単位を選んでからご記入ください
ご予算感 ※共益費込みの月額賃料(税別)
ご予算感がお決まりの方は単位を選んでからご記入ください
ご入居希望時期
その他のご質問・ご要望など
■物件探しの目的についてお教えください
用途
業態(店舗選択のみ)
その他用途
目的
その他目的
■物件探しの目的についてお教えください
貴社名 ご担当者名  
電話番号
メールアドレス メールアドレス
(再入力)
郵便番号
都道府県/市区町村/番地
建物名/階数
確認画面へ進む

同エリアの物件

  • 山口神田ビル 山口県山口市神田町5-11 湯田温泉

  • 大同生命徳山ビル 山口県周南市本町1-3 徳山

  • 徳山駅前218ビル 山口県周南市御幸通2-18 徳山

  • 近鉄徳山ビル 山口県周南市有楽町23 徳山

Copyright(C) Quick Consulting Co.,LTD. All right reserved.