雲竜フレックスビル東館
| 物件名 | 雲竜フレックスビル東館 | ||
|---|---|---|---|
| 住所 | 愛知県名古屋市中区新栄2-1-9 | ||
| 最寄駅 | |||
| 竣工年 | 1969年11月 | ||
| 規模 | 地上10階 地下1階 | ||
| 空調 | 個別空調 / セントラル空調 | OAフロア | タイルカーペット |
| EV | 1 基 | トイレ | 男女別・室外 |
| 駐車場 | 有り | 24時間使用 | 使用可 |
| 耐震 | 旧耐震基準 | 機械警備 | 無し |
募集概要
| 階数 |
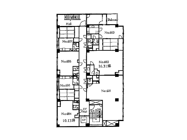
6階
602
|
|---|---|
| 坪数 | 16.31坪 |
| 用途 | 事務所 |
| 月額(賃料+共益費) (税別) | 相談 |
| 坪単価(賃料+共益費) (税別) | 相談 |
| 賃料(税別) | 相談 |
| 共益費(税別) | 賃料に含む |
| 敷金 | 8ヶ月 |
| 礼金 | 無し |
| 償却 | 無し |
| 入居可能日 | 相談 |
| 空室確認日 | 2026/04/16 |
その他空室情報
| 階数 | 坪数 |
賃料 (税別) |
共益費 (税別) |
敷金・保証金 | 入居日 | 詳細 |
お気に入り 追加 |
|---|---|---|---|---|---|---|---|
|
3階
301
|
23坪 | 相談 | 賃料に含む | 8ヶ月 | 相談 |
|
|
|
3階
304
|
23.3坪 | 相談 | 賃料に含む | 8ヶ月 | 相談 |
|
|
|
4階
403
|
15.29坪 | 相談 | 賃料に含む | 8ヶ月 | 相談 |
|
|
|
6階
604
|
10.13坪 | 相談 | 賃料に含む | 8ヶ月 | 相談 |
|
|
|
7階
706
|
9.53坪 | 相談 | 賃料に含む | 8ヶ月 | 相談 |
|
|
|
7階
705
|
9.53坪 | 相談 | 賃料に含む | 8ヶ月 | 即日 |
|
|
|
7階
707
|
9.53坪 | 相談 | 賃料に含む | 8ヶ月 | 即日 |
|
|
|
9階
902
|
15.68坪 | 相談 | 賃料に含む | 8ヶ月 | 相談 |
|
|









