名古屋若宮ビル
| 物件名 | 名古屋若宮ビル | ||
|---|---|---|---|
| 住所 | 愛知県名古屋市中区栄5-28-12 | ||
| 最寄駅 | |||
| 竣工年 | 1989年11月 | ||
| 規模 | 地上12階 地下3階 | ||
| 空調 | 個別空調 | OAフロア | OAフロア |
| EV | 2 基 | トイレ | 男女別・室外 |
| 駐車場 | 有り | 24時間使用 | 使用可 |
| 耐震 | 新耐震基準 | 機械警備 | 有り |
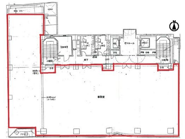
募集概要
| 階数 |
2階
1フロア
|
|---|---|
| 坪数 | 153.65坪 |
| 用途 | 事務所 |
| 月額(賃料+共益費) (税別) | 2,151,100円 |
| 坪単価(賃料+共益費) (税別) | 14,000円/坪 |
| 賃料(税別) |
2,151,100円 (14,000円/坪) |
| 共益費(税別) | 賃料に含む |
| 敷金 | 10ヶ月 |
| 礼金 | 無し |
| 償却 | 無し |
| 入居可能日 | 即日 |
| 空室確認日 | 2026/03/04 |
その他空室情報
| 階数 | 坪数 |
賃料 (税別) |
共益費 (税別) |
敷金・保証金 | 入居日 | 詳細 |
お気に入り 追加 |
|---|---|---|---|---|---|---|---|
|
5階
C
|
25.72坪 |
360,080円 (14,000円/坪) |
賃料に含む | 10ヶ月 | 相談 |
|
|
|
5階
A
|
32.5坪 |
455,000円 (14,000円/坪) |
賃料に含む | 10ヶ月 | 相談 |
|
|









