愛知建設業会館ビル

物件名 愛知建設業会館ビル
住所 愛知県名古屋市中区栄3-28-21
最寄駅
竣工年 1992年3月
規模 地上8階 地下1階
空調 個別空調 OAフロア Pタイル
EV 1 基 トイレ 男女別・室外
駐車場 無し 24時間使用 使用不可
耐震 新耐震基準 機械警備 無し

募集概要

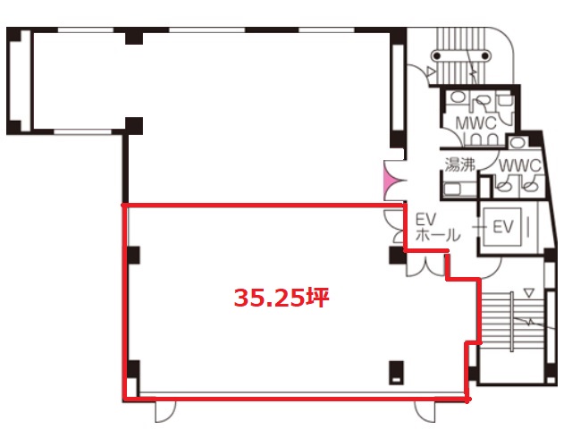
階数 7階
坪数 35.05坪
用途 事務所
月額(賃料+共益費) (税別) 350,500円
坪単価(賃料+共益費) (税別) 10,000円/坪
賃料(税別) 245,350円
(7,000円/坪)
共益費(税別) 105,150円
(3,000円/坪)
敷金 12ヶ月
礼金 無し
償却 無し
入居可能日 即日
空室確認日 2025/10/02

物件詳細PDF

  • お客様用
  • 業者様用

お問い合わせはこちら

更に詳細な資料情報をご希望の方はこちら

がついているものは必須項目です
物件名 愛知建設業会館ビル 7階 35.05坪
物件住所 愛知県名古屋市中区栄3-28-21
■お問合せ内容
お問合せ内容
備考欄
■ご希望条件について教えてください
立地
ご希望の面積 ※1㎡=0.3025坪
ご希望の面積がお決まりの方は単位を選んでからご記入ください
ご予算感 ※共益費込みの月額賃料(税別)
ご予算感がお決まりの方は単位を選んでからご記入ください
ご入居希望時期
その他のご質問・ご要望など
■物件探しの目的についてお教えください
用途
業態(店舗選択のみ)
その他用途
目的
その他目的
■物件探しの目的についてお教えください
貴社名 ご担当者名  
電話番号
メールアドレス メールアドレス
(再入力)
郵便番号
都道府県/市区町村/番地
建物名/階数
確認画面へ進む

同エリアの物件

  • サンシャイン伏見ビル 愛知県名古屋市中区栄2-1-21 伏見

  • OAKビル 愛知県名古屋市中区錦2-14-12 伏見

  • 愛織会館 愛知県名古屋市中区栄1-10-32 伏見

  • 藤田ビル 愛知県名古屋市中区栄1-5-8 伏見

Copyright(C) Quick Consulting Co.,LTD. All right reserved.